На Метре реклама - только нормальная. Никакого шок-контента.
Помогайте независимому ресурсу, как он помогает вам. Удачи!
Новостройки Котт. посёлки Объявления Динамика цен и сделок

Продажа квартиры: Екатеринбург, ул. Сыромолотова, 16 (ЖБИ)

  • опубликовано 14.11.2022 , обновлено 23.10.2025
  • 43
Кадастровый номер:66:41:0705006:9533
Рынок:вторичный
Срок сдачи: 1982 года
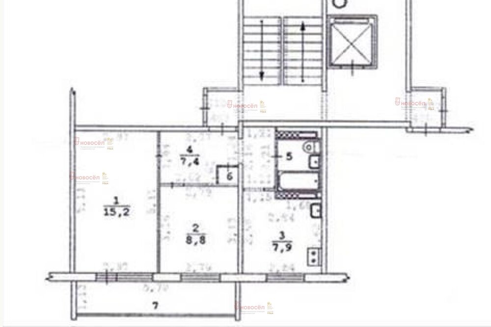
Количество комнат:2
Общая площадь:42 м2
Жилая площадь:26 м2
Площадь кухни:8 м2
Этаж/Этажность дома:5 / 9
Санузел:совмещенный
Отделка:евроремонт
Год постройки:1982
Состояние:хорошее
Цена:
4 290 000
Объявление снято с публикации
Коммунальные платежи:оплачиваются отдельно
Ипотека:возможна

Объект № 166070. Предлагаю рассмотреть покупку аккуратной двухкомнатной квартиры на комфортном 5 этаже в доме улучшенной планировки. Квартира чистая, ухоженная с огромной лоджией и видом на школьный стадион. Комнаты раздельные, светлые, правильной формы, оставим всю мебель новому собственнику. Квартира без обременений и долгов, 1 взрослый собственник, встречный вариант подобран, авансирован. Ждем на просмотр. ***Гарантийный сертификат «Защита собственности» по данному объекту в подарок***

Объявление снято с публикации

Ипотечный калькулятор

лет
%
Сумма кредита
4290000 ₽
Платеж
22 540 ₽

История предложений в этом доме

объявление снято с публикации в продаже комнат площадь этаж цена,
Екатеринбург, ул. Сыромолотова, 16 (ЖБИ) - фото квартиры 28 июня 2025 90 дн. 3 62.2 5/9 5 800 000
Екатеринбург, ул. Сыромолотова, 16 (ЖБИ) - фото квартиры 7 июня 2025 90 дн. 1 33.7 1/9 3 650 000
Екатеринбург, ул. Сыромолотова, 16 (ЖБИ) - фото квартиры 1 июля 2025 90 дн. 1 33.7 1/9 4 000 000
Екатеринбург, ул. Сыромолотова, 16 (ЖБИ) - фото квартиры 5 марта 2025 90 дн. 2 43 1/9 4 600 000
Екатеринбург, ул. Сыромолотова, 16 (ЖБИ) - фото квартиры 13 июля 2024 90 дн. 3 63.6 7/9 5 500 000
Екатеринбург, ул. Сыромолотова, 16 (ЖБИ) - фото квартиры 1 июля 2024 90 дн. 2 47.3 3/9 5 700 000
Екатеринбург, ул. Сыромолотова, 16 (ЖБИ) - фото квартиры 2 октября 2023 90 дн. 3 77.5 6/9 6 650 000
Екатеринбург, ул. Сыромолотова, 16 (ЖБИ) - фото квартиры 17 мая 2023 90 дн. 2 42.6 8/9 4 350 000
Екатеринбург, ул. Сыромолотова, 16 (ЖБИ) - фото квартиры 3 ноября 2022 90 дн. 3 62 8/9 5 090 000
Екатеринбург, ул. Сыромолотова, 16 (ЖБИ) - фото квартиры 17 декабря 2022 90 дн. 4 80 1/9 6 100 000
Екатеринбург, ул. Сыромолотова, 16 (ЖБИ) - фото квартиры 12 июля 2022 90 дн. 3 62.6 2/9 5 000 000
Екатеринбург, ул. Сыромолотова, 16 (ЖБИ) - фото квартиры 4 сентября 2022 90 дн. 4 77.8 9/9 6 400 000
Екатеринбург, ул. Сыромолотова, 16 (ЖБИ) - фото квартиры 15 июня 2022 90 дн. 3 62.6 2/9 5 190 000
Екатеринбург, ул. Сыромолотова, 16 (ЖБИ) - фото квартиры 24 мая 2022 90 дн. 3 62.6 2/9 5 290 000
Екатеринбург, ул. Сыромолотова, 16 (ЖБИ) - фото квартиры 13 мая 2021 90 дн. 2 47.3 3/9 3 920 000
Екатеринбург, ул. Сыромолотова, 16 (ЖБИ) - фото квартиры 10 апреля 2021 90 дн. 2 48 5/9 4 060 000
Екатеринбург, ул. Сыромолотова, 16 (ЖБИ) - фото квартиры 20 января 2022 90 дн. 3 63.6 9/9 4 950 000
Екатеринбург, ул. Сыромолотова, 16 (ЖБИ) - фото квартиры 14 мая 2021 90 дн. 2 48 8/9 3 450 000
Екатеринбург, ул. Сыромолотова, 16 (ЖБИ) - фото квартиры 21 января 2021 90 дн. 2 47.3 4/9 4 100 000
Екатеринбург, ул. Сыромолотова, 16 (ЖБИ) - фото квартиры 26 декабря 2020 90 дн. 3 63 6/9 4 500 000
Екатеринбург, ул. Сыромолотова, 16 (ЖБИ) - фото квартиры 6 декабря 2020 90 дн. 1 33.2 6/9 3 250 000
Екатеринбург, ул. Сыромолотова, 16 (ЖБИ) - фото квартиры 31 октября 2020 90 дн. 4 80 3/9 4 210 000
Екатеринбург, ул. Сыромолотова, 16 (ЖБИ) - фото квартиры 2 февраля 2021 90 дн. 3 64 2/9 4 050 000
Екатеринбург, ул. Сыромолотова, 16 (ЖБИ) - фото квартиры 11 ноября 2020 90 дн. 4 79 9/9 5 320 000
Екатеринбург, ул. Сыромолотова, 16 (ЖБИ) - фото квартиры 20 августа 2020 90 дн. 2 48 7/9 3 400 000
Екатеринбург, ул. Сыромолотова, 16 (ЖБИ) - фото квартиры 4 августа 2020 90 дн. 3 64 4/9 4 450 000
Екатеринбург, ул. Сыромолотова, 16 (ЖБИ) - фото квартиры 19 августа 2020 90 дн. 3 63 5/9 4 490 000
Екатеринбург, ул. Сыромолотова, 16 (ЖБИ) - фото квартиры 16 сентября 2020 90 дн. 3 64 7/9 3 850 000
Екатеринбург, ул. Сыромолотова, 16 (ЖБИ) - фото квартиры 2 февраля 2022 90 дн. 3 63 2/9 3 800 000
Екатеринбург, ул. Сыромолотова, 16 (ЖБИ) - фото квартиры 22 августа 2020 90 дн. 3 63 8/9 4 000 000

Похожие предложения о продаже квартир в Екатеринбурге (ЖБИ)

  • 2-к квартира, Сиреневый, 11

    • 44 м2
    • 4/9 этаж
    • Состояние: удовлетворительное
    4 400 000 ₽ (100000 ₽/м2)
    Доброго времени!!!! Продаю двухкомнатную квартиру на 4:этаже, без ремонта, чистая, окна поменяны. Чистая продажа или обмен на такой же примерно вариант район Верх- Исетский, Юго-западный.Подробности по телефону, звоните, договоримся.Прописанных нет.Обременений, ограничений нет.Задолженности по коммунальным платежам нет.Соседи очень хорошие. ID объекта в нашей базе: 5024
    размещено: 14.12.2025 , обновлено: 15.12.2025
  • 2-к квартира, Сыромолотова, 26/1

    • 48 м2
    • 8/16 этаж
    • Состояние: удовлетворительное
    5 200 000 ₽ (108300 ₽/м2)
    Продается замечательная двухкомнатная квартира на 8 этаже 16-этажного дома в центре микрорайона ЖБИ.Площадь 48 метров + лоджия 8 кв.м. КВАРТИРА с удобной планировкой: Светлая, просторная. Комната раздельные. Посередине квадратная кухня – 7 метров. Санузел раздельный. Установлены приборы учета ХВС, ГВС, электроэнергии. ДОМ: блочный, теплый. Звукоизоляция хорошая. На этаже мало квартир. РАЙОН: Кировский, ЖБИ. До центра легко добраться на машине за 15 минут, рядом озеро Шарташ, парк. Удобный выезд на Тюменский тракт. Район развит – очень хорошая инфраструктура. Рядом с домом много магазинов, три детских сада и школа. Район спокойный, зеленый. ЮРИДИЧЕСКАЯ ЧИСТОТА: Квартира покупалась более 5 лет назад. Документы готовы. ID объекта в нашей базе: 9371
    размещено: 13.12.2025 , обновлено: 15.12.2025
  • 2-к квартира, Сиреневый, 11

    • 43 м2
    • 9/9 этаж
    • Состояние: удовлетворительное
    4 750 000 ₽ (110500 ₽/м2)
    Вашему вниманию - в продаже ВЫГОДНАЯ ДВУШКА на ЖБИ! ПРЕИМУЩЕСТВА: + Закрытый двор от посторонних машин+ 9 этаж - чище воздух, никакого шума и пыли+ Последний этаж - никто не топает и не затопит+ Убран газ - установлена электроплита+ Чистая продажа - быстрый выход на сделку+ Никаких обременений, долгов и детских долей+ Не нужно переплачивать за чужой старый ремонт+ БЕСПЛАТНО оформлю ипотеку и полное сопровождение сделки! ИНФРАСТРУКТУРА В ШАГЕ: Школы №: 151, 164, Мед колледжДет сады №: 313, 144, 101, 453, 41Автобусы №: 61, 80, 49Трамваи №: 8, 12, 13Спортивная школа "Виктория", Клуб "Ратиборец", а так же множество различных секций по единоборствам, танцам и тдЗвоните! ID объекта в нашей базе: 12398
    размещено: 12.11.2025 , обновлено: 14.12.2025
  • 2-к квартира, Сыромолотова, 23

    • 42 м2
    • 1/5 этаж
    • Состояние: хорошее
    4 700 000 ₽ (111900 ₽/м2)
    Объект № 194767. Продается 2-комнатная квартира на первом этаже с готовыми арендаторами – идеальная инвестиция! Ищете выгодное вложение средств или хотите обеспечить себе стабильный пассивный доход? Представляем вашему вниманию уникальное предложение – 2-комнатная квартира на первом этаже, которая уже приносит прибыль! Эта квартира – не просто жилье, а готовый бизнес-проект. Она расположена на первом этаже, что делает ее привлекательной для различных видов коммерческой деятельности, а также удобной для проживания. Но главное преимущество – наличие надежных арендаторов, которые уже сейчас обеспечивают вам стабильный доход. ***Гарантийный сертификат «Защита собственности» по данному объекту в подарок***
    размещено: 16.10.2025 , обновлено: 6.12.2025
  • 2-к квартира, Бетонщиков, 6

    • 38.6 м2
    • 1/3 этаж
    • Состояние: хорошее
    3 300 000 ₽ (85500 ₽/м2)
    В продаже две комфортные комнаты 24,2 кв.м и 14,4 м.кв в трехкомнатной квартире. Двор тихий, спокойный, есть детская площадка. Место для парковки всегда найдется. Транспорт, школы, садики, магазины в пешей доступности. Ждем на просмотр. Торг уместен. ID объекта в нашей базе: 9893
    размещено: 23.06.2025 , обновлено: 11.12.2025

    2-к квартира, Панельная, 11/а

    • 45 м2
    • 3/5 этаж
    • Состояние: удовлетворительное
    4 500 000 ₽ (100000 ₽/м2)
    Объект № 193872. Предлагаем двухкомнатную квартиру с изолированными комнатами. Дом в тихом, зелёном месте, но в окружении всей необходимой инфраструктуры. Один взрослый собственник, документы готовы к сделке, в квартире никто не прописан. Ждём на просмотр. ***Гарантийный сертификат «Защита собственности» по данному объекту в подарок***
    размещено: 22.08.2025 , обновлено: 13.10.2025

    2-к квартира, Сиреневый, 21

    • 43 м2
    • 6/9 этаж
    • Состояние: удовлетворительное
    4 700 000 ₽ (109300 ₽/м2)
    Объект № 193781. Предлагаю двухкомнатную квартиру 43/ 28/ 9 м.кв, на 6 этаже в 9 -этажном доме, на ЖБИ. В квартире требуется ремонт. Окна расположены не на парковку. Дом расположен в спальном районе, рядом озеро Шарташ и парк. Вся транспортная развязка. Во дворе всегда есть парковочные места, лифт новый. Квартира освобождена. Без ограничений и обременений, все выписаны, собственник один- взрослый, в собственности более 10 лет, ключи на сделке. Приглашаем на просмотр. ***Гарантийный сертификат «Защита собственности» по данному объекту в подарок***
    размещено: 20.08.2025 , обновлено: 2.12.2025

    2-к квартира, Панельная, 17/а

    • 47.4 м2
    • 11/16 этаж
    • Состояние: хорошее
    4 850 000 ₽ (102300 ₽/м2)
    Объект № 192386. Предлагается к продаже 2-комнатная квартира. Комнаты раздельные, большая лоджия. В подъезде выполнен ремонт, заменен лифт, современная детская площадка. Удобная транспортная доступность. Развитая инфраструктура. Рядом детские сады и школы. Один взрослый собственник. ***Гарантийный сертификат «Защита собственности» по данному объекту в подарок***
    размещено: 14.07.2025 , обновлено: 10.12.2025

    2-к квартира, Владимира Высоцкого, 6

    • 48.3 м2
    • 9/9 этаж
    • Состояние: хорошее
    5 550 000 ₽ (114900 ₽/м2)
    Объект № 192800. Продается уютная и светлая 2-комнатная квартира в спокойном районе. Данная квартира - отличный выбор для тех, кто ценит комфорт и гармонию. Комнаты расположены на разные стороны: утром наполняется солнечным светом спальная комната, а после обеда - светлая кухня и гостиная. Раздельный санузел, установлены счетчики на воду и электроэнергию. Просторная застекленная лоджия с солнечной стороной создаст уютное место для отдыха или работы. Само состояние квартиры - хорошее: тёплая, светлая, с натяжными потолками и качественными межкомнатными дверями. В квартире остается кухонный гарнитур, мебель, посудомоечная и стиральная машины - всё для вашего удобства. Подъезд чистый и ухоженный, установлен новый лифт. В районе царит тишина и спокойствие, доброжелательные соседи. Дом расположен вдали от шумных дорог, в тихом спальном районе. Двор с прекрасным озеленением, имеется современный корт с искусственным газоном, зимой здесь открыт каток. Также есть детские и спортивные площадки, парковочных мест достаточно. Вся необходимая инфраструктура в шаговой доступности: детские сады, школы, гимназия №45, супермаркеты, остановки автобусов и трамваев. В 10 - 15 минутах ходьбы - Лесопарк Каменные Платки и озеро Шартaш, где можно приятно провести время на природе, прогуляться или покататься на велосипеде. Один взрослый собственник, квартира без обременений и долгов. Всё проверено и готово к сделке! Возможен обмен на 1-комнатную квартиру в доме не старше 2010 года. Приглашаем на просмотр! ***Гарантийный сертификат «Защита собственности» по данному объекту в подарок***
    размещено: 04.07.2025 , обновлено: 5.12.2025

    2-к квартира, Сыромолотова, 21

    • 53 м2
    • 6/9 этаж
    • Состояние: плохое
    5 020 000 ₽ (94700 ₽/м2)
    В продаже квартира под ремонт. Поменяли окна, двери входные, батареи и трубы, счетчики. ID объекта в нашей базе: 2120
    размещено: 17.06.2025 , обновлено: 7.12.2025

    2-к квартира, Сыромолотова, 25

    • 44.3 м2
    • 3/5 этаж
    • Состояние: хорошее
    4 300 000 ₽ (97100 ₽/м2)
    Внесен аванс. Прекрасная двухкомнатная квартира в теплом кирпичном доме в тихом околоцентральном районе города. Большой метраж квартиры, потолки 2,65 метра. Комнаты удобной формы для размещения мебели. Состояние квартиры жилое. Пластиковые окна, ванная в кафеле, новые трубы, сантехника. Отличная шумоизоляция, застекленный балкон. Удобный 3 этаж. Хорошие соседи. Большой зеленый двор. Много парковочных мест. Отличное расположение дома. Удобная транспортная развязка. В двух минутах остановка общественного транспорта, можно легко уехать в любую точку города. Рядом различные магазины, аптеки, салоны красоты, пункты выдачи маркетплейсов, во дворе имеется водомат. Также рядом ЦКБ №7 и несколько медицинских центров. Детский садик во дворе. В микрорайоне несколько общеобразовательных школ, а также гимназия № 176 по прописке. В 10 минутах ходьбы природный парк Каменные палатки с зимними и летними активностями, пляжами и оздоровительными зонами. Через дорогу большой торговый центр.Квартира без обременений, один взрослый собственник без финансовых и иных проблем. Понравился наш вариант, а на покупку не хватает средств? Мы согласуем ипотеку дешевле, чем в банке. У Вас обмен и своя недвижимость еще не продана? Предложите ее нам, возможно, мы сможем ее выкупить, поменять на нашу квартиру или поможем быстро продать Вашу. ID объекта в нашей базе: 6456
    размещено: 05.03.2025 , обновлено: 16.12.2025

    2-к квартира, 40-летия Комсомола, 32/г

    • 50 м2
    • 24/25 этаж
    • Состояние: хорошее
    5 100 000 ₽ (102000 ₽/м2)
    Объект № 186851. Продается 2-комнатная квартира в ЖK Oлимп. Общей площадью 50 м2, кухня-гостиная 18.6 м2, жилая комната 14,4 м2, санузел 4.1 м2, лоджия квадратная 3 м2. Пластиковые окна, застекленная лоджия, на полу ламинат, установлена качественная сейф-дверь. Квартира в хорошем состоянии. Из окон открывается шикарный вид! Имеется функциональная гардеробная. В комплексе подземный паркинг, 3 лифта Оtis. Жилой комплекс находится в мкр. ЖБИ Кировского района г. Екатеринбурга. Рядом хорошо развитая инфраструктура, магазины и торговые центры, в 3 минутах остановка общественного транспорта. От ЖК идет прямой выезд на дублёр Сибирского тракта. Много парковочных мест во дворе. ***Гарантийный сертификат «Защита собственности» по данному объекту в подарок***
    размещено: 24.09.2024 , обновлено: 13.12.2025

Новостройки Екатеринбург, мкр-н. ЖБИ

Приоритет

Увеличивает просмотры в 3 раза

Ваше объявление показывается в списке выше обычных объявлений. подключить