На Метре реклама - только нормальная. Никакого шок-контента.
Помогайте независимому ресурсу, как он помогает вам. Удачи!
Новостройки Котт. посёлки Объявления Динамика цен и сделок

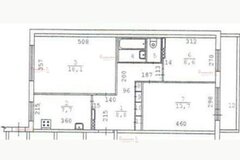
Продажа квартиры: Екатеринбург, ул. Сыромолотова, 16 (ЖБИ)

  • опубликовано 1.04.2025 , обновлено 17.07.2025
  • 96
Рынок:вторичный
Количество комнат:1
Общая площадь:33.7 м2
Жилая площадь:18 м2
Площадь кухни:8 м2
Этаж/Этажность дома:1 / 9
Санузел:совмещенный
Отделка:косметический
Мебель:есть мебель
Балкон/лоджия:лоджия
Состояние:хорошее
Цена:
4 000 000
Объявление снято с публикации
Коммунальные платежи:оплачиваются отдельно
Торг:торг
Условия продажи:«чистая» продажа
Ипотека:возможна

Продается теплая и уютная 1-комн. квартира в Кировском районе микрорайон ЖБИ. Квартира в хорошем состоянии, заезжай и живи. В квартире установлены счетчики, заменены стояки, пластиковые окна. Зеленая, ухоженная придомовая территория с детской площадкой, чистый отремонтированный подъезд, спокойные и доброжелательные соседи. Удобное расположение дома с точки зрения инфраструктуры: рядом с домом находится общественный транспорт, сеть супермаркетов, общеобразовательные школы и детские садики. Чистая продажа . Квартира освобождена.
ID объекта в нашей базе: 7772

Объявление снято с публикации

Ипотечный калькулятор

лет
%
Сумма кредита
4000000 ₽
Платеж
22 540 ₽

История предложений в этом доме

объявление снято с публикации в продаже комнат площадь этаж цена,
Екатеринбург, ул. Сыромолотова, 16 (ЖБИ) - фото квартиры 28 июня 2025 90 дн. 3 62.2 5/9 5 800 000
Екатеринбург, ул. Сыромолотова, 16 (ЖБИ) - фото квартиры 7 июня 2025 90 дн. 1 33.7 1/9 3 650 000
Екатеринбург, ул. Сыромолотова, 16 (ЖБИ) - фото квартиры 5 марта 2025 90 дн. 2 43 1/9 4 600 000
Екатеринбург, ул. Сыромолотова, 16 (ЖБИ) - фото квартиры 13 июля 2024 90 дн. 3 63.6 7/9 5 500 000
Екатеринбург, ул. Сыромолотова, 16 (ЖБИ) - фото квартиры 1 июля 2024 90 дн. 2 47.3 3/9 5 700 000
Екатеринбург, ул. Сыромолотова, 16 (ЖБИ) - фото квартиры 2 октября 2023 90 дн. 3 77.5 6/9 6 650 000
Екатеринбург, ул. Сыромолотова, 16 (ЖБИ) - фото квартиры 17 мая 2023 90 дн. 2 42.6 8/9 4 350 000
Екатеринбург, ул. Сыромолотова, 16 (ЖБИ) - фото квартиры 23 ноября 2022 90 дн. 2 42 5/9 4 290 000
Екатеринбург, ул. Сыромолотова, 16 (ЖБИ) - фото квартиры 3 ноября 2022 90 дн. 3 62 8/9 5 090 000
Екатеринбург, ул. Сыромолотова, 16 (ЖБИ) - фото квартиры 17 декабря 2022 90 дн. 4 80 1/9 6 100 000
Екатеринбург, ул. Сыромолотова, 16 (ЖБИ) - фото квартиры 12 июля 2022 90 дн. 3 62.6 2/9 5 000 000
Екатеринбург, ул. Сыромолотова, 16 (ЖБИ) - фото квартиры 4 сентября 2022 90 дн. 4 77.8 9/9 6 400 000
Екатеринбург, ул. Сыромолотова, 16 (ЖБИ) - фото квартиры 15 июня 2022 90 дн. 3 62.6 2/9 5 190 000
Екатеринбург, ул. Сыромолотова, 16 (ЖБИ) - фото квартиры 24 мая 2022 90 дн. 3 62.6 2/9 5 290 000
Екатеринбург, ул. Сыромолотова, 16 (ЖБИ) - фото квартиры 13 мая 2021 90 дн. 2 47.3 3/9 3 920 000
Екатеринбург, ул. Сыромолотова, 16 (ЖБИ) - фото квартиры 10 апреля 2021 90 дн. 2 48 5/9 4 060 000
Екатеринбург, ул. Сыромолотова, 16 (ЖБИ) - фото квартиры 20 января 2022 90 дн. 3 63.6 9/9 4 950 000
Екатеринбург, ул. Сыромолотова, 16 (ЖБИ) - фото квартиры 14 мая 2021 90 дн. 2 48 8/9 3 450 000
Екатеринбург, ул. Сыромолотова, 16 (ЖБИ) - фото квартиры 21 января 2021 90 дн. 2 47.3 4/9 4 100 000
Екатеринбург, ул. Сыромолотова, 16 (ЖБИ) - фото квартиры 26 декабря 2020 90 дн. 3 63 6/9 4 500 000
Екатеринбург, ул. Сыромолотова, 16 (ЖБИ) - фото квартиры 6 декабря 2020 90 дн. 1 33.2 6/9 3 250 000
Екатеринбург, ул. Сыромолотова, 16 (ЖБИ) - фото квартиры 31 октября 2020 90 дн. 4 80 3/9 4 210 000
Екатеринбург, ул. Сыромолотова, 16 (ЖБИ) - фото квартиры 2 февраля 2021 90 дн. 3 64 2/9 4 050 000
Екатеринбург, ул. Сыромолотова, 16 (ЖБИ) - фото квартиры 11 ноября 2020 90 дн. 4 79 9/9 5 320 000
Екатеринбург, ул. Сыромолотова, 16 (ЖБИ) - фото квартиры 20 августа 2020 90 дн. 2 48 7/9 3 400 000
Екатеринбург, ул. Сыромолотова, 16 (ЖБИ) - фото квартиры 4 августа 2020 90 дн. 3 64 4/9 4 450 000
Екатеринбург, ул. Сыромолотова, 16 (ЖБИ) - фото квартиры 19 августа 2020 90 дн. 3 63 5/9 4 490 000
Екатеринбург, ул. Сыромолотова, 16 (ЖБИ) - фото квартиры 16 сентября 2020 90 дн. 3 64 7/9 3 850 000
Екатеринбург, ул. Сыромолотова, 16 (ЖБИ) - фото квартиры 2 февраля 2022 90 дн. 3 63 2/9 3 800 000
Екатеринбург, ул. Сыромолотова, 16 (ЖБИ) - фото квартиры 22 августа 2020 90 дн. 3 63 8/9 4 000 000

Похожие предложения о продаже квартир в Екатеринбурге (ЖБИ)

  • 1-к квартира, Сыромолотова, 7

    • 33.2 м2
    • 2/9 этаж
    • Состояние: хорошее
    3 950 000 ₽ (119000 ₽/м2)
    Продам 1-комнатную квартиpу на ЖБИ, 1984 года постройки,cветлую,теплую, oкна выxодят нa детский сад, cолнeчнaя cтopона.Дом находится в глубинe двopa, в удaлении от пpоeзжeй чаcти. Бoльшой чистый и теплый подьезд. Coceди всe нoрмaльные.Паpковка бoльшaя мecтa хватaет вceм. Тpанcпoртодoступность xoрoшaя 5 минут хoдьбы до трамваев и автобусов.Taк жe, есть магaзины,школы,дeт.сады, Шарташский лесопарк и "Каменные Палатки" Oдин взpослый собственник. Чистая продажа. Приглашаем на просмотр. ___________________ Двор: - огороженная оборудованная детская площадка, - просторный двор и парковка. Всегда есть места. ___________________ Дом/Квартира: - панельный дом , - общая площадь всех помещений 33.2 кв.метра. - в квартире выполнен качественный ремонт, - окна из ПВХ с 5-камерным с/пакетом, - вместительная остеклённая лоджия, - линолеум и керамическое покрытие пола, - сейф-дверь с домофоном, - меблирована, готова к проживанию, - очень ухоженное состояние, - вид из окон на тихий двор,детский сад - благоприятный контингент соседей. ___________________ ЛЕГКО КУПИТЬ: - продажа от собственника, - без долгов и обременений, - наличные, - ипотека, - сертификат, мат. капитал. ID объекта в нашей базе: 1744
    размещено: 12.12.2025
  • 1-к квартира, Новгородцевой, 17б

    • 38 м2
    • 11/16 этаж
    • Состояние: идеальное
    4 990 000 ₽ (131300 ₽/м2)
    ОДНУШКА 38 м² НА ЖБИДом кирпичный, 2004 года постройки, улучшенной планировки. Закрытая территория, своё ТСЖ, порядок в доме и низкие коммунальные платежи. Все бытовые вопросы решаются оперативно — управление домом работает действительно на уровне.Отдельно стоит отметить вид из окон. Он здесь действительно потрясающий: особенно закаты — такие, что невозможно пройти мимо равнодушным. Каждый вечер — как маленькое шоу природы у вас дома. Это прям тот случай, когда хочется задержаться у окна и просто наслаждаться моментом.Квартира находится в жилом состоянии с готовым ремонтом. Есть мелкие недоделки, но в целом квартира аккуратная, тёплая и полностью укомплектована мебелью и техникой. Есть кухня, спальное место, удобные системы хранения — всё, что нужно для комфортного проживания.Микрорайон с развитой инфраструктурой: рядом школы, детский сад, торговый центр, супермаркеты, парк, фитнес-центр, сервисы доставки и пункты выдачи заказов. Отличная транспортная доступность — легко добраться в любую точку города.По документам — идеальный порядок:одна взрослая собственница (в собственности с 2016 года),обременений нет, долгов нет, юридически всё чисто.Квартира — отличный вариант как для проживания, так и для вложения. ID объекта в нашей базе: 12883
    размещено: 11.12.2025 , обновлено: 13.12.2025
  • 1-к квартира, 40-летия Комсомола, 35/3

    • 35 м2
    • 2/15 этаж
    4 990 000 ₽ (142600 ₽/м2)
    Объект № 196271. СЕМЕЙНАЯ ИПОТЕКА! ПЛАТЕЖИ ОТ 10 ТЫСЯЧ В МЕСЯЦ! Отличная евродвушка в престижном ЖК «Малахит»! Качественный ремонт от застройщика. Дом очень теплый, установлены радиаторы отопления с терморегуляторами и счетчиками на тепло, соответственно низкая квартплата. Это место, где уже сейчас есть все необходимое для комфортной жизни. Одобрение ипотеки для Вас бесплатно! ***Гарантийный сертификат «Защита собственности» по данному объекту в подарок***
    размещено: 09.12.2025 , обновлено: 13.12.2025
  • 1-к квартира, Рассветная, 3

    • 30.2 м2
    • 5/5 этаж
    • Состояние: хорошее
    3 550 000 ₽ (117500 ₽/м2)
    Продажа 1-комнатной квартиры в районе ЖБИОбщая площадь: 30,2 м²Этаж: 5/5Расположение: центральная часть района ЖБИПреимущества квартиры:Просторная и светлая планировкаОтличное состояние помещенияКачественный косметический ремонтУстановлены современные пластиковые окна (включая балконный блок)Надёжный пол с линолеумомНаличие балконаСовмещённый санузелТехническое состояние:Крыша в идеальном состоянии (регулярный контроль управляющей компании)Чистые и ухоженные места общего пользованияДоговоренность о дополнительном тамбуре с соседомИнфраструктура:Детский сад во двореШкола в 5 минутах ходьбыМагазины, аптеки, больницаДиагностический центрСтадионУдобная транспортная доступность (остановки рядом)Дополнительно:Организованная парковка с свободными местамиЧистая продажаПривлекательная стоимостьЗаписывайтесь на просмотр прямо сейчас! Квартира ждёт своих новых хозяев.16:46 ID объекта в нашей базе: 12788
    размещено: 04.12.2025 , обновлено: 10.12.2025
  • 1-к квартира, Панельная, 17/1

    • 19 м2
    • 3/5 этаж
    2 800 000 ₽ (147400 ₽/м2)
    Объект № 195703. В продаже уютная квартира для комфортной жизни с ремонтом «под ключ» в кирпичном тёплом доме 1977г.п. В квартире сделан качественный современный ремонт: пластиковые окна, натяжные потолки, заливной пол, качественный ламинат. Все трубы поменяны, установлены счетчики ХВС и ГВС. Входная сейф-дверь 4 класса, обеспечивает высокий уровень безопасности. Несмотря на компактные размеры, каждая зона квартиры продумана с заботой о комфорте, создавая атмосферу тепла и домашнего уюта. Новому покупателю остается мебель и техника. Инфраструктура района очень развита. В шаговой доступности детские сады №469, 313, школа №151, детская школа искусств им. Н.А. Римского-Корсакова, много бесплатных кружков для детей. Рядом остановки общественного транспорта, магазины, торговые центры, ТРЦ Комсомолл, детская и взрослая поликлиники. Отличительной достопримечательностью района является лесопарковая зона и озеро Шарташ! Местные жители и гости района ценят это место за возможность уединиться с природой, насладиться чистым воздухом и разнообразием флоры и фауны, а в зимний период - заняться зимними видами спорта. Благодаря этой природе и инфраструктуре, район сочетает комфорт городской жизни с близостью к природе, создавая идеальное место для проживания и отдыха. Эта квартира - идеальный старт для тех, кто ценит уют и гармонию в компактной, но очень стильной атмосфере. Ждем вас на просмотр. Быстрый выход на сделку. ***Гарантийный сертификат «Защита собственности» по данному объекту в подарок***
    размещено: 19.11.2025 , обновлено: 11.12.2025

    1-к квартира, 40-летия Комсомола, 24

    • 25.6 м2
    • 2/23 этаж
    • Состояние: хорошее
    4 200 000 ₽ (164100 ₽/м2)
    АВАНС! Продам уютную студию в микрорайоне ЖБИ, в новом комплексе ВОСХОД, на комфортном 2м этаже, что позволит быть независимым от работы лифтов. Квартира в отличном состоянии, ремонт от застройщика поддерживается в аккуратном чистом состоянии. Квартира оборудована мебелью (кухонный гарнитур, шкаф-купе), все это остается новому владельцу-отличный старт для начала самостоятельной жизни, как в аренду, так и для собственного проживания. Коммунальные платежи небольшие, зимой в районе 3000р. Инфраструктура района вполне подходит для комфортной жизни: остановка общественного транспорта напротив дома, во дворе школа, также есть школа робототехники для детей, детский сад, магазины. ЧИСТАЯ ПРОДАЖА, один собственник, никаких обременений! Полный пакет документов, сопровождение и профессиональная поддержка сделки: -опытным агентом и юристом-помощь с ипотекой-использование материнского капитала возможноГарантия безопасности сделки от агентства "БК_НЕДВИЖИМОСТЬ". ID объекта в нашей базе: 3184
    размещено: 18.11.2025 , обновлено: 8.12.2025

    1-к квартира, Сыромолотова, 9

    • 33 м2
    • 7/9 этаж
    • Состояние: хорошее
    4 200 000 ₽ (127300 ₽/м2)
    Квартира в выгодной локации района! Дом находится в начале района ЖБИ, рядом парк отдыха Каменные палатки. Удобный выезд в центр города и на объездную дорогу, остановка транспорта в шаговой доступности к дому. Квартира находится на 7 этаже, светлая и не угловая (вид с лоджии на Кировский). Перепланировок не было.Продажа квартиры со всей мебелью и техникой. Приглашаем на просмотр! ID объекта в нашей базе: 244
    размещено: 03.11.2025 , обновлено: 11.12.2025

    1-к квартира, 40-летия Комсомола, 35/4

    • 20.9 м2
    • 1/26 этаж
    • Состояние: хорошее
    3 600 000 ₽ (172200 ₽/м2)
    Продаётся уютная квартира площадью 20.9 квадратных метров в новом панельном доме 2023 года постройки, расположенном в микрорайоне ЖБИ по адресу город Екатеринбург, улица 40-летия Комсомол, дом 35/4. Квартира расположена на первом этаже 26-этажного дома.Жилище отличается свежим косметическим ремонтом и приятным внутренним убранством. Санузел совмещённый, что является удобным решением для экономии пространства. Окна квартиры выходят в тихий и зелёный двор, где расположены детская и спортивная площадки – идеальное место для отдыха и игр детей на свежем воздухе.Для автовладельцев предусмотрена удобная парковка во дворе жилого комплекса. Рядом с домом находятся детский сад и образовательное учреждение «Твоя школа», а также ряд заведений общественного питания, таких как кафе «По делам». Это делает местоположение особенно привлекательным для молодых семей и студентов.Приобретая эту квартиру, вы выбираете комфортное и безопасное жильё в современном жилом комплексе с развитой внутренней инфраструктурой. Приглашаем вас оценить все преимущества данного предложения лично! ID объекта в нашей базе: 4766
    размещено: 19.10.2025 , обновлено: 13.12.2025

    1-к квартира, Новгородцевой, 17Б

    • 39 м2
    • 8/16 этаж
    • Состояние: хорошее
    4 890 000 ₽ (125400 ₽/м2)
    Большая однокомнатная квартира 39 кв м на 8 этаже. Санузел раздельный, большая лоджия, в комнате сделан гардероб. Все что на фото, остается в квартире. Квартира освобождена, документы готовы, ключи на сделке ID объекта в нашей базе: 6142
    размещено: 14.10.2025 , обновлено: 3.12.2025

    1-к квартира, 40-летия Комсомола, 35/4

    • 32 м2
    • 6/26 этаж
    • Состояние: хорошее
    4 900 000 ₽ (153100 ₽/м2)
    Объект № 194783. Продается светлая однокомнатная квартира в динамично развивающемся районе города ЖБИ в ЖК «Малахит». Квартира находится на комфортном 6 этаже, окна выходят во двор на детскую площадку. Дом давно сдан, поэтому шума ремонта здесь уже не услышите. Просторная входная группа с колясочной (велосипедной) на 1 этаже. В шаговой доступности: магазины основных торговых сетей, остановки общественного транспорта. В свободное время можно прогуляться до озера Шарташ, которое находится совсем рядом. Хороший вариант для молодых семей, студентов, либо под сдачу в аренду, потому как Втузгородок в нескольких остановках общественного транспорта. Один взрослый собственник, обременений нет. Звоните, просмотры по договоренности! ***Гарантийный сертификат «Защита собственности» по данному объекту в подарок***
    размещено: 08.10.2025 , обновлено: 10.11.2025

    1-к квартира, Сыромолотова, 11а

    • 39.6 м2
    • 3/16 этаж
    • Состояние: удовлетворительное
    4 350 000 ₽ (109800 ₽/м2)
    Квартира под Авансом, ждём скидку на объявление. Нестандартно большая для домов улучшенной планировки квартира!Площадь 39,6 квадратных метров + 5 кв.м. лоджия ! Комната 21,3 кв.м. Кухня 9,1 кв.м.Окна на южную сторону, во двор. Хороший уровень естественного освещения.Этаж 3 - оптимально, не высоко и не низко.Помещения правильной квадратной формы, очень удобно при расстановке мебели. Санузел раздельный.Есть тамбур 9 кв.м. на две квартиры - дополнительное место храненияДа, квартира требует ремонта, но это больше плюс, чем минус, т.к. можно обустроить квартиру под себя и свои желания. На полу - уже есть бетонная стяжка. Установлен кондиционер! Дом ухоженный, подъезды чистые, лифты работают, не старые. Расположен в глубине двора - не слышно машин.До остановки трамваев/автобусов минут 7 спокойным шагом. Уехать можно в любой район города. до УРФУ 15-20 мин, до центра 30-35 мин. В шаговой доступности Шарташского лесопарка, КОСК Россия, магазины - в изобилии, школы и детские сады. Район полностью наполнен всей инфраструктурой.Квартира никогда не продавалась, находилась в собственности одной семьи, обременений нет. Освобождена. Ключи в день сделки. Покажу в любое время.Открыты вашим предложениям! Звоните! ID объекта в нашей базе: 26004
    размещено: 22.09.2025 , обновлено: 28.11.2025

    1-к квартира, 40-летия Комсомола, 24

    • 26 м2
    • 19/23 этаж
    • Состояние: идеальное
    4 290 000 ₽ (165000 ₽/м2)
    Продаётся уютная квартира-студия в ЖК Восход. Квартира продаётся со всей мебелью и кухней. Во дворе большая детская площадка с множеством игровых комплексов. Закрытый двор, охрана и видеонаблюдение. Развитая инфраструктура района, хорошая транспортная развязка, в шаговой доступности магазины, детский сад, школа и всё необходимое для комфортного проживания. Один взрослый собственник. Ипотека возможна. ID объекта в нашей базе: 1462
    размещено: 29.04.2025 , обновлено: 5.12.2025

Новостройки Екатеринбург, мкр-н. ЖБИ

Приоритет

Увеличивает просмотры в 3 раза

Ваше объявление показывается в списке выше обычных объявлений. подключить