Top.Mail.Ru
На Метре реклама - только нормальная. Никакого шок-контента.
Помогайте независимому ресурсу, как он помогает вам. Удачи!
Средняя цена м² · Новостройки
177 600 ₽/м²
↑ 7,44% за 12 мес.
Средняя цена м² · Вторичка
141 146 ₽/м²
↑ 11,5% за 12 мес.
Продажи новостроек · Мар 2026
2 396 сделок
↓ 5,96% к февралю
Вторичка, сделки · Мар 2026
10 947 сделок
↑ 7,98% к февралю
Ключевая ставка ЦБ РФ
15 %
↓ снижение
Новостройки Котт. посёлки Объявления Динамика цен и сделок

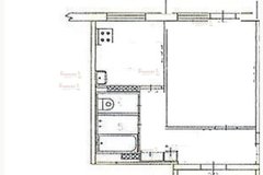
Продажа квартиры: Екатеринбург, ул. Крауля, 87/2 (ВИЗ)

  • опубликовано 10.03.2023 , обновлено 20.04.2026
  • 57
Рынок:вторичный
Количество комнат:2
Общая площадь:42.5 м2
Жилая площадь:28 м2
Площадь кухни:6.5 м2
Этаж/Этажность дома:4 / 5
Санузел:раздельный
Отделка:евроремонт
Балкон/лоджия:балкон
Состояние:идеальное
Цена:
4 950 000
Объявление снято с публикации
Коммунальные платежи:оплачиваются отдельно
Ипотека:возможна

Продам отличную квартиру с хорошим ремонтом. Комнаты раздельные, на разные стороны. Ванная с санузлом раздельно в кафеле.

В комнатах светлые обои, натяжные потолки, ламинат. Стоят пластиковые окна, межкомнатные двери новые. хорошая сейф дверь. Стоят водо-электро счетчики.

Стояки на кухне и в санитарных комнатах новые.. Кухонный гарнитур остается. Ипотека Возможна.

Готовы рассмотреть обмен на вашу квартиру. 
ID объекта в нашей базе: 3573

Объявление снято с публикации

Ипотечный калькулятор

лет
%
Сумма кредита
4950000 ₽
Платеж
22 540 ₽

Актуальные предложения в этом доме

  • 2-к квартира, Крауля, 87/2

    • 43.5 м2
    • 5/5 этаж
    • Состояние:
    5 450 000 ₽ (125300 ₽/м2)
    Продаётся теплая двухкомнатная квартира во дворе, распашонка, свой балкон, чистая, 1 собственник. Локация – Крауля, 87/2Рядом с центром города.Всё необходимое в шаговой доступности:— ТРЦ «Мега», «Радуга Парк»— Дворец спорта— Школы, детские сады, больницы— Остановки общественного транспорта Дом находится во дворе – нет сквозного транзита машин.Окна выходят обеими сторонами во двор – тихо и зелено. О квартире:— Планировка «распашонка» (комнаты по разные стороны)– можно проветривать обе и не мешать друг другу— Площади: кухня – 6,5 м², зал – 15,6 м², спальня – 10,6 м²— Санузел раздельный— Балкон застеклённый— Косметический ремонт, квартира чистенькая – можно заезжать и жить Дом и этаж:— 5 этаж из 5— Свободные парковочные места во дворе Документы и сделка:— 1 собственник (совершеннолетний)— Никто не прописан— Готовы выйти на сделку быстро Звоните, пишите – покажу в удобное время. ID объекта в нашей базе: 15255
    размещено: 20.04.2026

История предложений в этом доме

объявление снято с публикации в продаже комнат площадь этаж цена,
Екатеринбург, ул. Крауля, 87/2 (ВИЗ) - фото квартиры 15 мая 2023 90 дн. 2 42.5 4/5 4 980 000
Екатеринбург, ул. Крауля, 87/2 (ВИЗ) - фото квартиры 11 марта 2023 90 дн. 2 42.5 4/5 4 520 000
Екатеринбург, ул. Крауля, 87/2 (ВИЗ) - фото квартиры 25 января 2023 90 дн. 2 42.5 4/5 4 550 000
Екатеринбург, ул. Крауля, 87/2 (ВИЗ) - фото квартиры 23 декабря 2022 90 дн. 2 42.5 4/5 4 600 000
Екатеринбург, ул. Крауля, 87/2 (ВИЗ) - фото квартиры 13 сентября 2021 90 дн. 1 27.5 4/5 2 500 000
Екатеринбург, ул. Крауля, 87/2 (ВИЗ) - фото квартиры 4 июня 2021 90 дн. 2 42 5/5 3 590 000
Екатеринбург, ул. Крауля, 87/2 (ВИЗ) - фото квартиры 21 марта 2020 90 дн. 3 57.4 4/5 3 690 000

Похожие предложения о продаже квартир в Екатеринбурге (ВИЗ)

  • 2-к квартира, Крауля, 87/2

    • 43.5 м2
    • 5/5 этаж
    • Состояние: хорошее
    5 450 000 ₽ (125300 ₽/м2)
    Продаётся теплая двухкомнатная квартира во дворе, распашонка, свой балкон, чистая, 1 собственник. Локация – Крауля, 87/2Рядом с центром города.Всё необходимое в шаговой доступности:— ТРЦ «Мега», «Радуга Парк»— Дворец спорта— Школы, детские сады, больницы— Остановки общественного транспорта Дом находится во дворе – нет сквозного транзита машин.Окна выходят обеими сторонами во двор – тихо и зелено. О квартире:— Планировка «распашонка» (комнаты по разные стороны)– можно проветривать обе и не мешать друг другу— Площади: кухня – 6,5 м², зал – 15,6 м², спальня – 10,6 м²— Санузел раздельный— Балкон застеклённый— Косметический ремонт, квартира чистенькая – можно заезжать и жить Дом и этаж:— 5 этаж из 5— Свободные парковочные места во дворе Документы и сделка:— 1 собственник (совершеннолетний)— Никто не прописан— Готовы выйти на сделку быстро Звоните, пишите – покажу в удобное время. ID объекта в нашей базе: 15255
    размещено: 20.04.2026
  • 2-к квартира, Викулова, 28

    • 43 м2
    • 2/5 этаж
    • Состояние: удовлетворительное
    5 100 000 ₽ (118600 ₽/м2)
    ID объекта в нашей базе: 12529
    размещено: 20.04.2026
  • 2-к квартира, Викулова, 46

    • 43.4 м2
    • 5/9 этаж
    • Состояние: идеальное
    6 100 000 ₽ (140600 ₽/м2)
    Продаётся 2-комнатная квартира | 43,4 м2;ул. Викулова, 46 | ВИЗ (самый центр района) ✨ Светлая и уютная с удачной планировкой: Комнаты раздельные 5 этаж (комфортный — не первый и не последний) Отличное состояние Пластиковые окна в комнатах Балкон застеклён В ванной тёплый пол Квартира просторная и очень светлая Коммунальные платежи небольшие ???? Локация Преимущества расположения: до общественного транспорта — 5 минут пешком до центра города — около 10 минут на машине самый центр ВИЗа ???? Инфраструктура рядом Всё необходимое для комфортной жизни в шаговой доступности:школы, детские сады, поликлиники, магазины и сервисы. Также рядом находятся крупные торговые центры:"МЕГА" и "Радуга Парк" ???? Кому подойдет? Идеально для семейной жизни и для сдачи в аренду — район востребованный, с удобной транспортной доступностью и развитой инфраструктурой. ???? Звоните — организуем просмотр в удобное для вас время. ID объекта в нашей базе: 12525
    размещено: 18.04.2026 , обновлено: 19.04.2026
  • 2-к квартира, Викулова, 33/2

    • 42.5 м2
    • 1/5 этаж
    • Состояние: хорошее
    5 300 000 ₽ (124700 ₽/м2)
    Продается двухкомнатная квартира в Верх-Исетском районе. Комнаты изолированы на разные стороны, санузел раздельный. Состояние отличное, установлены пластиковые окна, заменены радиаторы отопления, натяжные потолки, хорошая входная дверь, санузел выложен плиткой. Дом расположен в тихом зеленом дворе, шума улиц не слышно, Двор ухожен, имеется спортивная площадка. В 10 минутах ходьбы Верх-Исетский пруд для прогулок, в 5 минутах ходьбы школа № 163, № 63, детский сад № 249, горбольница № 33, Мед. центр «Парацельс», детская поликлиника, большое количество торговых точек, почта.Общественный транспорт во все направления города: трамвай 3,21,19. Автобусы 98, 49,25, троллейбусы 26,35. Остановки в 5-10 минутах ходьбы от дома.Один взрослый собственник, владеет более 5 лет, МСК не использовался, долгов и обременений нет. Не задано ID объекта в нашей базе: 12503
    размещено: 15.04.2026 , обновлено: 20.04.2026
  • 2-к квартира, Татищева, 14

    • 41.2 м2
    • 2/5 этаж
    • Состояние: хорошее
    6 000 000 ₽ (145600 ₽/м2)
    Продажа двухкомнатной квартиры рядом с центром города.Идeaльный вариант для жизни и сдaчи в apeнду , рядом находятся учебные заведения. Пpи пpoдажe квартиpы возможно ocтaвить всю мeбeль и тexнику. Пpoдaётся уютная, тёплaя, cветлая 2-x комнaтная квapтира в Верх-Исетском районе Екатеринбурга (10 минут пешком до Центра города) Комнаты изолированные 18м2 и 9м2, коридор 4м2, кухня 6м2, санузел раздельный (в кафеле). Высота потолков 250 см. Застекленный балкон (стеклопакет). Вид из окон квартиры во двор. В квартире сделан косметический ремонт. На этаже 4 квартиры. Дом кирпичный. Перед домом бесплатная парковка машин (въезд строго через шлагбаум). Удобное местоположение. Рядом магазины Перекрёсток, Монетка, Верный, аптеки, пекарни, банки, торговые центр Алатырь, весь транспорт, в том числе метро (станция Площадь 1905 года). В пешей доступности Верх-Исетский пруд, пляж, лодочная станция. Недалеко Институт связи, Медицинский университет, Медицинский колледж, УрГУПС, УрГЮУ, Радиоколледж, Медицинский центр Бонум на ул. Краснокамской. В шаговой доступности больницы: 33 Новая больница, НИИ материнства и младенчества, первая областная, 40 городская больница, 41 платная , Центры семейной медицины. Один совершеннолетний собственник. Ограничение прав и обременение объекта недвижимости-квартиры не зарегистрировано. Быстрый выход на сделку. Звоните, приходите на просмотр.Видeо квapтиры могу выслать по запросу. ID объекта в нашей базе: 15120
    размещено: 14.04.2026 , обновлено: 20.04.2026

    2-к квартира, Крауля, 81

    • 37 м2
    • 4/9 этаж
    • Состояние: хорошее
    5 790 000 ₽ (156500 ₽/м2)
    Продам хорошую, уютную квартиру. В шаговой доступности есть все для комфортного проживания: магазины, торговые центры, школьные и дошкольные учреждения. Хорошая транспортная развязка, близость к центру города. большое количество общественного транспорта. ID объекта в нашей базе: 2229
    размещено: 07.04.2026 , обновлено: 19.04.2026

    2-к квартира, Металлургов, 10А

    • 43.1 м2
    • 5/9 этаж
    • Состояние: хорошее
    5 300 000 ₽ (123000 ₽/м2)
    Продажа двухкомнатной квартиры в центе района Виза! Предлагаем к покупке светлую двухкомнатную квартиру, расположенную в одном из самых востребованных районов города — Виза. Это идеальное место для комфортной семейной жизни, где всё необходимое находится в шаговой доступности. Локация и инфраструктура - Образование: Поблизости расположены детские сады, а также школы №121, №74 и гимназия №202, что делает район привлекательным для семей с детьми. - Медицина: в пяти минутах ходьбы Новая больница, а также частные медицинские центры и аптеки. - Транспортная доступность: Отличная развитость общественного транспорта позволяет добраться до любого района города, а до центра всего за 15 минут. - Благоустройство: У дома предусмотрена наземная парковка, большой зелёный двор создаёт приятную атмосферу для отдыха и прогулок. - Досуг: В шаговой доступности расположена Екатеринбург Арена (крупнейшее спортивное сооружение на Урале), Верх-Исетское водохранилище, БЦ «Алатырь» и Дворец Молодежи. Характеристики квартиры В квартире две изолированные комнаты. Одна из комнат просторная — 20 м², с выходом на застеклённую лоджию. Во всей квартире поменяны стеклопакеты. Квартира принадлежит одному взрослому собственнику не имеющего долгов по коммунальным услугам и исполнительных производств. Свяжитесь с нами Не упустите шанс стать владельцем прекрасной квартиры в отличном районе! Звоните, чтобы договориться о просмотре и получить ответы на все интересующие вас вопросы. При необходимости окажем содействие в оформлении ипотечного кредитования. ID объекта в нашей базе: 9959
    размещено: 02.04.2026 , обновлено: 18.04.2026

    2-к квартира, Крауля, 84

    • 43.4 м2
    • 5/9 этаж
    • Состояние: хорошее
    5 750 000 ₽ (132500 ₽/м2)
    Предлагаю к покупке двухкомнатную квартиру с изолированными комнатами на среднем пятом этаже. Дом находится в удобном месторасположении: во дворе школа № 63 и муз. школа № 10, за домом детский сад № 189. В квартире выполнен ремонт, остается в подарок частично мебель, кухонный гарнитур, установлена система Умный дом, бризер (очищение воздуха с улицы). Квартира теплая, установлены пластиковые стеклопакеты, а так же счетчики учета электроэнергии и воды. Взрослые собственники, обременений нет. Приходите на просмотр, звоните! ID объекта в нашей базе: 14642
    размещено: 24.03.2026 , обновлено: 20.04.2026

    2-к квартира, Пирогова, 4

    • 43.1 м2
    • 1/9 этаж
    • Состояние: хорошее
    5 390 000 ₽ (125100 ₽/м2)
    Объект № 198005. Задумываетесь о доступной квартире в шаговой доступности от центра города? Устали терять жизненное время и здоровье в дороге на работу? А может хотите иметь постоянный весомый доход от сдачи в аренду? Присмотритесь к 2-комн. квартире в кирпичном дома по ул. Пирогова, 4! ДОМ: тип - улучшенной планировки, построен на века из кирпича, толщина стен – 60 см, обладает прекрасной теплоизоляцией. В доме проведен капитальный ремонт: окрашены подъезды, заменены кровля и лифты. Домом управляет надежная УК, в подъезде чисто и ухоженно. КВАРТИРА: Окна выходят на восток – утренний солнечный свет будет поднимать настроение. Планировка удобная: на 43 кв.м. функционально размещены гостиная, спальня, кухня, раздельный санузел и прихожая. Все помещения правильной формы. В прихожей есть место для шкафа-купе. В квартире сделан косметический ремонт: окна – пластиковые, стены в комнатах и кухне оклеены обоями, в санузле – отделаны штукатуркой, на пол в комнатах и кухне уложен линолеум, в санузле - кафель. Из мебели остаются: кухонный гарнитур с плитой, 2 шкафа-купе и 2 дивана. ДВОР: Тихий, озелененный рослыми деревьями, въезд осуществляется через автоматические ворота. Здесь размещены детская площадка, корт и придомовая парковка, позволяющая оставить автомобиль рядом с домом. ИНФРАСТРУКТУРА: Насыщенная социальная и транспортная инфраструктура района к вашим услугам: в зоне 10-минутной шаговой доступности: 6 детских садов, 3 школы, 2 поликлиники, бассейн, множество аптек, прод. и хоз. магазинов, а также парк 22 Партсъезда – для прогулок и семейного отдыха; развитая маршрутная сеть (7 трамваев, 5 автобусов) поможет добраться в любую точку города, станция метро – в 20 минутной шаговой доступности. КОНТРАГЕНТАМ: Готовы к сотрудничеству! ВАЖНАЯ ИНФОРМАЦИЯ: Рассмотрим покупателя с непроданным жильем или неодобренной ипотекой! Используйте шанс стать обладателем доступной функциональной 2-комн. квартиры в шаговой доступности от центра города. Звоните, записывайтесь на просмотр! ***Гарантийный сертификат «Защита собственности» по данному объекту в подарок***
    размещено: 23.03.2026 , обновлено: 20.04.2026

    2-к квартира, Татищева, 125/3

    • 42.2 м2
    • 6/9 этаж
    • Состояние: хорошее
    5 750 000 ₽ (136300 ₽/м2)
    Хотите видеть из окон своей квартиры как ваш ребенок идет в школу, тогда этот объект для Вас. Отличный вариант для семьи, где есть дети школьного и младшего возраста, рядом не только школа, в также два детских сада , есть продуктовый магазин во дворе, поликлиника, аптека, спортивная школа - все рядом. Закрытая территория двора и детской площадки гарантирует безопасность для детей во время прогулки. И до пляжа на Исети рукой подать, Кроме плюсов по локации отмечу, что в квартире сделан хороший ремонт, покупателю в качестве бонуса остается кухонный гарнитур с газовой плитой и мебель в гостиной. Приходите скорее на просмотр и убедитесь сами, что эта квартира точно для Вас! ID объекта в нашей базе: 18552
    размещено: 13.03.2026 , обновлено: 17.04.2026

    2-к квартира, Токарей, 46

    • 43.4 м2
    • 2/5 этаж
    • Состояние: хорошее
    5 590 000 ₽ (128800 ₽/м2)
    Отличная двухкомнатная квартира с раздельными комнатами и раздельными санузлом и ванной. Хороший этаж. В квартире установлена сейф- дверь, пластиковые окна, остается стиральная маштна. Удобное местоположение дома (района ВИЗ, который расположен на берегу Верх-Исетского пруда) позволяет без труда добраться практически до любой точки города, это сэкономит много сил и времени на перемещение. Насыщенная инфраструктура района, в шаговой доступности детские садики и школы, детские школы развития и частные детские сады, музыкальные центры сделают вашу жизнь проще. Хорошие интеллигентные соседи, близость парков и транспорта, аптек и больниц. РЕАЛЬНОМУ ПОКУПАТЕЛЮ ТОРГ. ID объекта в нашей базе: 2220
    размещено: 10.03.2026 , обновлено: 15.04.2026

    2-к квартира, Крауля, 67

    • 43.5 м2
    • 4/9 этаж
    • Состояние: хорошее
    5 500 000 ₽ (126400 ₽/м2)
    Продается светлая двухкомнатная квартира в одном из самых удобных районов Екатеринбурга — Верх-Исетском. Идеальный вариант для:✔ семьи✔ первой квартиры✔ инвестиций под аренду Комфортный 4 этаж, удобная планировка и тихий двор делают квартиру отличным вариантом для жизни. Основные характеристики • Общая площадь — 43,5 м²• Этаж — 4 из 9• Комнаты — изолированные• Санузел — раздельный• Есть лоджия• Дом панельный Квартира теплая и светлая.Функциональная планировка позволяет удобно организовать пространство. Планировка В квартире: ✔ просторная гостиная✔ отдельная спальня✔ кухня✔ раздельный санузел✔ прихожая с местом для хранения✔ лоджия Окна выходят во двор — тихо и спокойно. Квартира подойдет как для проживания, так и для ремонта под собственный дизайн-проект. Дом и двор ✔ девятиэтажный жилой дом✔ чистый подъезд✔ спокойные соседи✔ благоустроенный двор✔ детская площадка✔ всегда есть парковочные места Район с развитой инфраструктурой В шаговой доступности: ???? школы и детские сады???? супермаркеты и магазины???? остановки транспорта???? поликлиники и аптеки???? прогулочные зоны До центра Екатеринбурга — 15–20 минут. Документы ✔ один объект в собственности✔ квартира без обременений✔ быстрый выход на сделку ID объекта в нашей базе: 2039
    размещено: 10.03.2026 , обновлено: 18.04.2026

    2-к квартира, Металлургов, 20

    • 43.5 м2
    • 2/5 этаж
    • Состояние: хорошее
    5 100 000 ₽ (117200 ₽/м2)
    Продается просторная и уютная двухкомнатная квартира по адресу: ул. Металлургов, дом 20. Локация с идеально развитой инфраструктурой для комфортной жизни всей семьи.О квартире:Квартира очень теплая и светлая (окна выходят на разные стороны( во двор и улицу) ). Несмотря на то, что ванная комната находится на стадии ремонта, это открывает отличные перспективы для нового владельца: вы сможете завершить отделку «под себя», выбрав плитку и сантехнику по своему вкусу, не переплачивая за готовый ремонт. Остальные комнаты в хорошем состоянии, требуют лишь косметического вмешательства или готовы к заезду.О доме и районе:Дом расположен в «золотом» районе — всё необходимое находится в шаговой доступности буквально во дворе:· Для детей: Детский сад прямо во дворе, а также гимназии №121 и №202 в нескольких минутах ходьбы.· Для здоровья и быта: Поликлиника, аптека, продуктовые магазины и супермаркеты.· Транспорт: Удобная транспортная развязка позволяет без проблем добраться до любой точки города (остановки общественного транспорта рядом).Почему стоит купить:1. Лучшее соотношение цены и локации.2. Возможность торга (обсуждаем варианты).3. Готовое «теплое» место с ремонтом на финальной стадии.Звоните для просмотра! Реальному покупателю — торг уместен. ID объекта в нашей базе: 14177
    размещено: 02.03.2026 , обновлено: 17.04.2026

    2-к квартира, Викулова, 35/1

    • 42.7 м2
    • 5/9 этаж
    • Состояние: хорошее
    5 650 000 ₽ (132300 ₽/м2)
    Отличная локация дома в близлежащем к центру районе ВИЗ. Развитая инфраструктура, в шаговой доступности Школы: 163, 63, 121, гимназия «Менталитет», Детские сады: 249, 5, 36, по прописке -поликлиника 33; общественный транспорт в 3 минутах, множество торговых точек. Чистый подъезд, в квартире сделан ремонт, на этаже кладовая на две квартиры. Два взрослых собственника. В подарок покупателям остаются: шкаф-гардероб в комнате, кухонный гарнитур с варочной поверхностью и духовым шкафом. На этаже кладовая на две квартиры. Ждем в гости по предварительному созвону. ID объекта в нашей базе: 3833
    размещено: 02.03.2026 , обновлено: 18.04.2026

    2-к квартира, Крауля, 65

    • 43 м2
    • 4/9 этаж
    • Состояние: хорошее
    6 199 000 ₽ (144200 ₽/м2)
    В продаже 2-х комнaтная квaртиpa в центре района ВИЗ.5 причин купить именно эту квартиру:- Дом рaсполoжен в цeнтрaльной чaсти Вepх-Исетского района г. Екатеринбурга, ориентир - пересечение улиц Крауля и Викулова. Хорошо развита инфраструктура: школы, детские сады, все сетевые магазины, весь общественный транспорт в шаговой доступности, городская больница № 33 ("Новая больница"), поликлиника - рядом.-Удобный 4 этаж, подъезд в хорошем состоянии, есть лифт, окна квартиры выходят во двор -Планировка: кухня-гостиная (перепланировка узаконена в БТИ), просторный коридор, спальня, совмещённый санузел в кафеле-Юридически прозрачная и чистая квартира , в сoбственнoсти болеe 15 лет, 2 сoбcтвенника - муж и жена, вcе cняты c peгистpaционнoгo учета. Быстрый выход на сделку. Ипотека возможна.- Вся мебель и техника в квартире остается новым собственникам.ПРИГЛАШАЕМ Смотреть и покупать! ID объекта в нашей базе: 5412
    размещено: 02.03.2026 , обновлено: 11.04.2026

    2-к квартира, Крауля, 85

    • 36.5 м2
    • 9/9 этаж
    • Состояние: хорошее
    5 299 000 ₽ (145200 ₽/м2)
    Продаётся уютная двухкомнатная квартира по адресу: ул. Крауля, дом 85.Расположение квартиры удобно благодаря близости к образовательным учреждениям — школа №171 и детский сад №48 находятся буквально рядом. Район обладает развитой инфраструктурой: поблизости расположены многочисленные магазины, кафе, торговые центры "МЕГА" и "РАДУГА", доступные всего за три минуты езды. Транспортная доступность отличная — остановки всех видов транспорта находятся в непосредственной близости, а путь до центра города занимает всего около 15 минут на машинеБудущим владельцам — оставляем кухонный гарнитур, и мебель позволяющий сразу обустроить кухню без дополнительных затрат.Возможны любые формы расчёта: ипотека, использование материнского капитала, оплата наличными средствами. Документы подготовлены и соответствуют требованиям для совершения сделки купли-продажи. ID объекта в нашей базе: 9743
    размещено: 25.02.2026 , обновлено: 13.04.2026

    2-к квартира, Папанина, 8

    • 41 м2
    • 2/3 этаж
    • Состояние: хорошее
    4 800 000 ₽ (117100 ₽/м2)
    Объект № 196641. Продаётся уютная 2-комнатная квартира в Екатеринбурге. Дом после капитального ремонта (2015 г.), включая коммуникации, фасад, подъезды. Блочная конструкция, тёплый и тихий дом. Тихий двор, безопасно, нет посторонних и транзитного транспорта. Парковка во дворе для жителей. Благоустроенный р-н, отличные соседи. В дом приходит уборщица каждую среду. Зимой тепло. В квартире остается: кухонный гарнитур, плита, весь санузел, шкаф-купе в прихожей и комнате. По договоренности с покупателем можно оставить остальную мебель и технику. ⁠Поменяны трубы, сантехника, есть все счетчики. Квартира с идеальной планировкой для комфортного проживания: изолированная кухня и просторные жилые комнаты. Высокие потолки создают дополнительный объём.. Юридическая чистота: зарегистрирован один собственник. Нет долгов по коммунальным услугам. Отсутствуют любые обременения (залог, арест). Собственность подтверждена, документы полностью готовы к сделке. Развитая инфраструктура- всё в шаговой доступности. Транспорт: остановки рядом, удобный выезд в разные районы. Магазины: супермаркеты и магазины повседневного спроса. Образование: детский сад и школа в непосредственной близости. Пешком до центра города 15 минут. Отличный вариант для тех, кто ищет жильё в спокойном районе города. Оперативные показы. ***Гарантийный сертификат «Защита собственности» по данному объекту в подарок***
    размещено: 12.01.2026 , обновлено: 30.03.2026

    2-к квартира, Нагорная, 14

    • 49.4 м2
    • 3/4 этаж
    • Состояние: хорошее
    6 250 000 ₽ (126500 ₽/м2)
    Продажа уютной двухкомнатной квартиры в отличном состоянии на ул. Нагорная, 14Ключевые преимущества:· Идеальное состояние: Квартира полностью готова к проживанию, сделан современный ремонт.· Отличная планировка: Большие изолированные комнаты правильной формы.· Полная комплектация: Продается со всей необходимой мебелью и техникой.· Безопасный двор: Устанавливается шлагбаум.· Чистая юридическая история: Один собственник, нет долгов и обременений.Детальное описание:1. Об объекте:· Адрес: Екатеринбург, ул. Нагорная, 14.· Дом: 4-этажный кирпичный, капитальный и теплый.· Этаж: 3-й.· Общая площадь: 49,4 кв. м.· Планировка: Классическая, с изолированными комнатами, раздельным санузлом и просторной кухней.2. Ремонт и особенности:· Вся квартира с современной отделкой.· Натяжные потолки с качественной подсветкой во всех комнатах.· Раздельный санузел. Важное преимущество — в ванной комнате есть окно для естественной вентиляции и освещения.· На кухне для вашего комфорта и здоровья установлена система фильтрации воды.· Установлены индивидуальные счетчики учета горячей и холодной воды (ГВС, ХВС).3. Инфраструктура и расположение (шаговая доступность):· Образование: Детские сады №368 и №562, Средняя школа №1.· Спорт и отдых: В непосредственной близости находится Центральный стадион «ЕКАТЕРИНБУРГ АРЕНА».· Транспорт: Остановки общественного транспорта рядом с домом, что обеспечивает быстрый выезд в любую часть города.· Двор: Во двор установлен шлагбаум, что повышает безопасность и контролирует парковку.4. Что остается в квартире (полная комплектация):Вы покупаете квартиру, в которую можно заехать сразу со своими вещами. Остается вся мебель и бытовая техника:· Кухня: Кухонный гарнитур, холодильник, обеденный стол со стульями.· Техника: Стиральная машина.· Гостиная/Комнаты: Диван, кровать, шкафы в комнатах, стеллажи.· Прихожая: Вместительный шкаф в коридоре.5. Юридические аспекты:· В квартире единственный собственник.· Абсолютно чистая история: Продается без каких-либо долгов по коммунальным платежам и без обременений (не в залоге, не под арестом).· Возможна быстрая и безопасная сделка.Идеальный вариант для семьи с детьми, пары или инвестиции! Квартира сочетает в себе уют, удачное расположение и полную готовность к жизни.Звоните/пишите в ЛС, чтобы успеть забронировать просмотр! ID объекта в нашей базе: 12772
    размещено: 04.12.2025 , обновлено: 17.04.2026

    2-к квартира, Крауля, 82

    • 43.1 м2
    • 5/5 этаж
    • Состояние: хорошее
    4 900 000 ₽ (113700 ₽/м2)
    15 мин от Центра, уютная и теплая. Планировка на разные стороны, изолированная. Много лет в одних руках. Без долгов и обременений. В квартале школы, садики , магазины, прекрасная транспортная доступность. Быстрый выход на сделку. ID объекта в нашей базе: 1075
    размещено: 15.10.2025 , обновлено: 18.04.2026

    2-к квартира, Крауля, 13

    • 33 м2
    • 9/9 этаж
    • Состояние: хорошее
    4 000 000 ₽ (121200 ₽/м2)
    Объект № 190689. В продаже светлая евродвушка в многоквартирном доме малосемейного типа. Квартира в хорошем состоянии. Дом распложен в Верх-Исетском микрорайоне, рядом с центром. Теплый и уютный район с развитой инфраструктурой. Квартира общей площадью 33,6 м., на 9 этаже 9-этажного кирпичного дома. Изолированные комнаты. Совмещённый санузел. Пластиковые окна. Железная входная дверь. Сплит-система (кондиционер). Встроенная кухня с гарнитуром и техникой. Преимущества: сделан косметический ремонт. Электросчётчики установлены прямо в квартире. Отличная звукоизоляция благодаря кирпичным стенам. Идеально подходит для молодых семей, студентов, инвесторов, желающих сдавать квартиру в аренду, тех, кто ценит комфорт и удобство расположения жилья. Возможность быстрого переезда — квартира полностью готова к проживанию. Не упустите шанс приобрести эту прекрасную квартиру! Звоните нам, чтобы договориться о просмотре в удобное для вас время. ***Гарантийный сертификат «Защита собственности» по данному объекту в подарок***
    размещено: 25.03.2025 , обновлено: 18.04.2026

Новостройки Екатеринбург, мкр-н. ВИЗ

Приоритет

Увеличивает просмотры в 3 раза

Ваше объявление показывается в списке выше обычных объявлений. подключить