На Метре реклама - только нормальная. Никакого шок-контента.
Помогайте независимому ресурсу, как он помогает вам. Удачи!
Новостройки Котт. посёлки Объявления Динамика цен и сделок

Продажа квартиры: Екатеринбург, ул. Мира, 47 (Втузгородок)

  • опубликовано 11.01.2024 , обновлено 3.10.2025
  • 64
  •  
Рынок:вторичный
Срок сдачи:2 квартал 2022 года
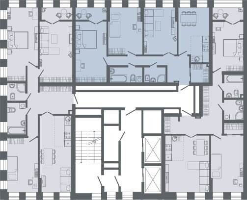
Количество комнат:3
Общая площадь:87.6 м2
Жилая площадь:46.53 м2
Площадь кухни:15 м2
Этаж/Этажность дома:16 / 25
Отделка:предчистовая
Год постройки:2022
Балкон/лоджия:лоджия
Цена:
20 303 000
Коммунальные платежи:оплачиваются отдельно
Ипотека:возможна

Компаунд «Проспект Мира» – флагманский проект компании «Первостроитель», финалист премии Urban Awards, входит в ТОП 5 жилых комплексов России по версии Единого ресурса застройщика.

Это закрытый комплекс с развитой инфраструктурой, фонтаном, зонами отдыха, детскими площадками, спортивными зонами и двухуровневым паркингом. Дом по адресу ул. Мира, 47 представлена тремя жилыми секциями от 5 до 25 жилых этажей. В одной из секций разместится центральная входная группа с лобби и зоной рецепции. В доме просторные холлы с зонами ожидания и колясочные. Безопасность обеспечивается круглосуточным видеонаблюдением.

На территории компаунда расположен мультифункциональный центр, в котором расположены собственные бизнесы застройщика: фитнес-клуб с 24-х метровым бассейном и СПА зоной, ресторанный комплекс, бильярдный клуб и отель.

Особое внимание в проекте уделено внутреннему дворовому пространству: во дворе выполнен ландшафтный дизайн с оригинальными клумбами, деревьями, кустарниками и вечерней подсветкой

Квартиры отличаются продуманными планировками (от 42 до 147 м²) и высокими потолками (от 2,75 до 3,5 м). Дома имеют класс энергоэффективности А и целый ряд энергоэффективных решений:

- повышенную теплоизоляцию наружных стен,
- специальные оконные конструкции,
- сохраняющие тепло зимой и не нагревающие комнаты летом,
- уникальную для многоквартирных домов систему приточно-вытяжной вентиляции с рекуперацией воздуха, что даёт постоянное обновление воздуха

В квартирах выполнена качественная предчистовая отделка White box. В группу компаний «Первостроитель» входит ремонтное подразделение, которое по желанию жителей быстро и качественно выполнит как базовый, так и индивидуальный ремонт, используя проверенные трендовые материалы.

Первостроитель 263 — Девелоперская компания «Первостроитель»

показать телефон

Ипотечный калькулятор

лет
%
Сумма кредита
20303000 ₽
Платеж
22 540 ₽

История предложений в этом доме

объявление снято с публикации в продаже комнат площадь этаж цена,
23 сентября 2025 90 дн. 1 42.2 17/27 11 281 000
18 июля 2025 90 дн. 3 74 8/27 15 293 000
Екатеринбург, ул. Мира, 47/7 (Втузгородок) - фото квартиры 22 июля 2025 90 дн. 1 42.2 13/26 12 590 000
Екатеринбург, ул.Мира, 47 (Втузгородок) - фото квартиры 16 августа 2025 90 дн. 3 73.9 15/25 18 890 000
Екатеринбург, ул. Мира, 47 (Втузгородок) - фото квартиры 16 августа 2025 90 дн. 2 73.9 15/25 18 890 000
Екатеринбург, ул. Мира, 47/7 (Втузгородок) - фото квартиры 22 июля 2025 90 дн. 2 42.2 13/26 12 590 000
5 марта 2025 90 дн. 3 74.17 7/27 14 453 000
Екатеринбург, ул. Мира, 47, Компаунд Проспект Мира (Втузгородок) - фото квартиры 30 апреля 2025 90 дн. 1 45.5 7/30 8 700 000
14 февраля 2025 90 дн. 1 42.31 8/27 9 952 000
Екатеринбург, ул. Мира, 47/7 (Втузгородок) - фото квартиры 22 февраля 2025 90 дн. 3 101 21/24 21 261 000
Екатеринбург, ул. Мира, 47 (Втузгородок) - фото квартиры 6 декабря 2024 90 дн. 2 84.5 12/25 17 974 000
29 октября 2024 90 дн. 2 61.79 25/27 13 342 000
Екатеринбург, ул. Мира, 47 (Втузгородок) - фото квартиры 9 апреля 2025 90 дн. 2 84.5 14/25 26 361 000
14 августа 2025 90 дн. 1 45.4 7/27 10 702 000
14 августа 2025 90 дн. 0 35.6 7/27 9 026 000
18 июля 2025 90 дн. 1 45.8 17/27 11 539 000
27 февраля 2025 90 дн. 1 47.51 17/27 11 127 000
18 июля 2025 90 дн. 1 54.2 17/27 13 195 000
18 июля 2025 90 дн. 0 34.5 16/27 9 496 000
18 июля 2025 90 дн. 1 45.4 15/27 11 233 000
18 июля 2025 90 дн. 1 47.1 15/27 11 465 000
3 июля 2025 90 дн. 1 45.4 13/27 11 102 000
18 июля 2025 90 дн. 1 53.9 13/27 12 622 000
18 июля 2025 90 дн. 1 45.9 22/27 11 881 000
18 июля 2025 90 дн. 0 34.6 22/27 9 931 000
18 июля 2025 90 дн. 1 53.9 22/27 13 616 000
18 июля 2025 90 дн. 1 46 21/27 11 817 000
18 июля 2025 90 дн. 1 47 21/27 12 075 000
18 июля 2025 90 дн. 1 54.4 21/27 13 528 000
18 июля 2025 90 дн. 1 45.9 26/27 12 144 000

Похожие предложения о продаже квартир в Екатеринбурге (Втузгородок)

  • 3-к квартира, Блюхера, 40А

    • 81.1 м2
    • 19/31 этаж
    • Состояние: идеальное
    15 700 000 ₽ (193600 ₽/м2)
    Продается просторная 4е-квартира в стильном парк-квартале «Современник»! Фактически квартира площадью 86,1 кв.м ИНФРАСТРУКТУРА >В шаговой доступности гимназии №47, №35, №108, 3 школы, 5 детских садов. >В самом комплексе супермаркеты «Пятерочка», «Перекресток», «Жизнь-март», аптеки, пекарня, пункты выдачи >В окружении парк имени Блюхера, Дендрологический и Основинский парки >До лесопарка «Шарташ» — 18 минут пешком >Быстрый выезд в три загородных направления >15 минут до центра на машине >В 2х минутах ходьбы трамвайная и автобусные остановки ДВОР >Собственный большой закрытый двор-парк с площадками для детей разных возрастов и зонами отдыха для взрослых >Спортивные зоны и амфитеатр >Впечатляет масштабами, озеленением и благоустройством >Ландшафтный свет по всей территории БЕЗОПАСНОСТЬ >Круглосуточное видеонаблюдение по периметру >Охрана ДОМ >Монолитно-кирпичный > Наша секция сдана в эксплуатацию в этом году >Стильный фасад >Современный дизайнерский холл с мягкими зонами ожидания >Быстрые малошумные лифты (2 грузовых и 2 пассажирских) КВАРТИРА > С тремя полноценными по размеру спальнями и просторной кухней-гостиной (20,7 кв.м) > Идеально подойдет семье с детьми и любящими просторный комфорт > Окна на две стороны света > С Двумя сан узлами > Ниши под шкафы/гардеробные > С выполненным ремонтом: виниловые обои, влагостойкий ламинат, межкомнатные двери белого цвета, плитка на полу в СУ > Высота потолков 2,7м > Увеличенные оконные проемы > Установлен новый кухонный гарнитур > Застекленная теплая лоджия, которая не входит в общую площадь квартиры Приходите и посмотрите все сами! Вам здесь понравится! Звоните! ID объекта в нашей базе: 11673
    размещено: 01.10.2025 , обновлено: 2.10.2025
  • 3-к квартира, Педагогическая, 28

    • 114.6 м2
    • 7/25 этаж
    • Состояние: хорошее
    20 500 000 ₽ (178900 ₽/м2)
    Продам квартиру в новом доме во Втузгородке. Квартира находится в жилом комплексе комфорт класса ЖК "Коперник". Прекрасный дом с закрытой территорией, детской площадкой и с подземным паркингом. Дом очень теплый с качественной шумо- и звукоизоляцией. В квартире очень комфортная и грамотная планировка: все помещения правильной прямоугольной формы, одна из комнат является мастер-спальней со своим полноценным совмещенным санузлом. Кроме этого в квартире есть еще раздельный санузел. Планировкой предусмотрены две большие лоджии и очень просторная и оборудованная гардеробная комната. Большинство окон квартиры и одна из лоджий выходит во двор. У нас сделан современный ремонт в приятных светлых тонах. В стоимость квартиры входит кухонный гарнитур со встроенной техникой (холодильник, духовой шкаф, варочная поверхность, микроволновая печь, посудомойка и вытяжка), современная и новая мебель в коридоре, большой вместительный шкаф, этажерка и письменный стол в детской комнате, мебель в санузлах, а также два кондиционера. Все в рабочем и идеальном состоянии. В квартире приятная энергетика, приходите на просмотр и вам захочется здесь остаться. Квартира освобождена, возможен быстрый выход на сделку. Просмотры по предварительной договоренности в любое время. Также у собственников заключен договор аренды на два парковочных места, одно из которых оплачено на год вперед. ID объекта в нашей базе: 26010
    размещено: 22.09.2025 , обновлено: 3.10.2025
  • 3-к квартира, Мира, 41

    • 95.5 м2
    • 15/25 этаж
    • Состояние: идеальное
    17 500 000 ₽ (183200 ₽/м2)
    Продаётся стильная 3-комнатная квартира 95,5 м² + панорамный балкон 5 м²Продаём светлую, просторную квартиру со свежим дизайнерским ремонтом! Идеальный вариант для семьи, готова к заселению!Планировка: Просторная гостиная с электрическим камином, эргономичная кухня, уютная спальня, солнечная детская, два санузла (керамогранит, двойная раковина), вместительная кладовка. Тёплые полы в прихожей, коридоре, кухне, санузлах. Сделана дополнительная звукоизоляция. 15-й этаж, красивый вид из окон на город. Перепланировка согласована.Остаётся всё:- Кухонный гарнитур с техникой Bosch/Electrolux (индукционная плита, духовка, микроволновка, посудомоечная машина).- Кондиционер, встроенная гардеробная в спальне, комод с туалетным столиком, 2 прикроватные тумбочки, 2 встроенных шкафа в прихожей и коридоре, полностью оборудованная кладовка.Дом комфорт-класса:- Энергоэффективный, с собственной котельной (стабильное отопление и горячая вода).- Низкая квартплата, двухфазная очистка воды.- Подземный паркинг, пассажирский и два грузовых лифта (один едет в паркинг).- Отзывчивая управляющая компания, чистый подъезд, приличные соседи.Район:- Тихое место без шумных магистралей, рядом прогулочные зеленые аллеи.- Рядом: 3 детских сада (государственные), 3 частных сада, 3 школы, магазины (Магнит, Пятёрочка, Монетка), Жизньмарт, Поль Бейкери, Симпл Кофе, ресторан Мёд, фитнес-клуб.- Удобная транспортная доступность: остановки рядом, также выезд на объездную дорогу (с нее можно быстро доехать до любого района города)Юридическая чистота:- Долгов, арестов, обременений нет. Материнский капитал не использовался.- Квартира приобреталась в 2018г у застройщика за наличные- Взрослые собственники (супруги), детских долей нет, быстрый выход на сделку.Почему стоит купить:- Готовая квартира с ремонтом, мебелью и техникой — заезжай и живи!Готовы обсуждать условия с серьёзными покупателями! Звоните для просмотра или вопросов. ID объекта в нашей базе: 25809
    размещено: 12.09.2025 , обновлено: 2.10.2025
  • 3-к квартира, Библиотечная, 27

    • 89.4 м2
    • 8/12 этаж
    • Состояние: идеальное
    18 200 000 ₽ (203600 ₽/м2)
    Уникальное предложение в ЖК «Базилик» для большой дружной семьи. Полноценная 3-х комнатная квартира улучшенной планировки, уютная, светлая, теплая, с просторной кухней-гостиной 22м. Три большие спальни, два санузла, три балкона (на кухне и в комнатах) один из которых утеплен. Теплый пол в кухне, в коридоре (кафель, грязная зона), в санузлах. Счетчики на отопление, показания приборов учета всех ком услуг передаются автоматически в УК. В квартире профессионалами выполнен качественный дизайнерский ремонт по индивидуальному проекту, использованы импортные отделочные материалы высокого качества. Квартира в состоянии заезжай и живи. Новому собственнику остается кухонный гарнитур из натурального массива с итальянскими фасадами, встроенная бытовая техника марки Тека, производство Германия (холодильник, духовой шкаф, варочная поверхность, вытяжка, микроволновая печь, посудомоечная машина), обеденный стол, стулья. В коридоре расположены два вместительных шкафа для хранения одежды. Встроенный шкаф в спальне родителей, встроенная мебель в детской (бельевой шкаф, письменный стол, стеллаж для книг и навесные полки). Окна выходят на разные стороны, что обеспечивает комфортный микроклимат и естественное освещение в течение всего дня. Комфортный 8 этаж в 12-ти этажном доме. Дом малонаселенный, всего на 74 квартиры, на площадке 4 квартиры, первый этаж нежилой. Дружные спокойные соседи. Чистый ухоженный подъезд. Управляющая компания, видеонаблюдение, охрана располагается на 1-ом этаже. Закрытая территория двора, современная детская и спортивная площадки, наземная закрытая парковка во дворе. Также имеется подземный паркинг, готовы рассмотреть продажу парковочного места в нем. Один взрослый собственник, без долгов и обременений, квартира приобреталась от застройщика. Продажа в связи с необходимостью увеличения жилой площади. Помощь в одобрении ипотеки. Торг обсуждается ID объекта в нашей базе: 1476
    размещено: 21.05.2025 , обновлено: 1.08.2025
  • 3-к квартира, Раевского, 22

    • 100.2 м2
    • 13/16 этаж
    • Состояние: хорошее
    15 500 000 ₽ (154700 ₽/м2)
    Если Вы хотите стать счастливым обладателем тихой, уютной 3-комнатной квартиры в самом сердце Пионерского, то Вы обратились по правильному адресу улица Раевского, дом 22 это именно то, что Вам нужно! Развитая инфраструктура района обеспечивает комфортное проживание современного человека в мегаполисе. Все, что необходимо для удобства в повседневной жизни, найдете в непосредственной близости от дома. Дом находится в глубине района, окна квартиры выходят разные стороны, в том числе на тихий уютный двор, поэтому всегда тихо и спокойно. Квартира расположена на комфортном 13 этаже, 16 этажного дома. В секции четыре квартиры на этаже. Общая площадь квартиры 100,2 кв.м. Квартира состоит из трех изолированных комнат (метражи комнат: 20,7; 13,6; 15,4), очень просторной кухни площадью 20,1 м.кв. и свободной прихожей; двух санузлов (в плитке). В квартире имеется большая лоджия (с панорамным остеклением). Квартира очень тихая и теплая, коммунальные платежи невысокие. Взрослые собственники. Подробности по телефону. Приглашаем на просмотр. Звоните, не упустите свой шанс. ID объекта в нашей базе: 611
    размещено: 30.01.2024 , обновлено: 3.10.2025

Новостройки Екатеринбург, мкр-н. Втузгородок

Приоритет

Увеличивает просмотры в 3 раза

Ваше объявление показывается в списке выше обычных объявлений. подключить