На Метре реклама - только нормальная. Никакого шок-контента.
Помогайте независимому ресурсу, как он помогает вам. Удачи!
Новостройки Котт. посёлки Объявления Динамика цен и сделок

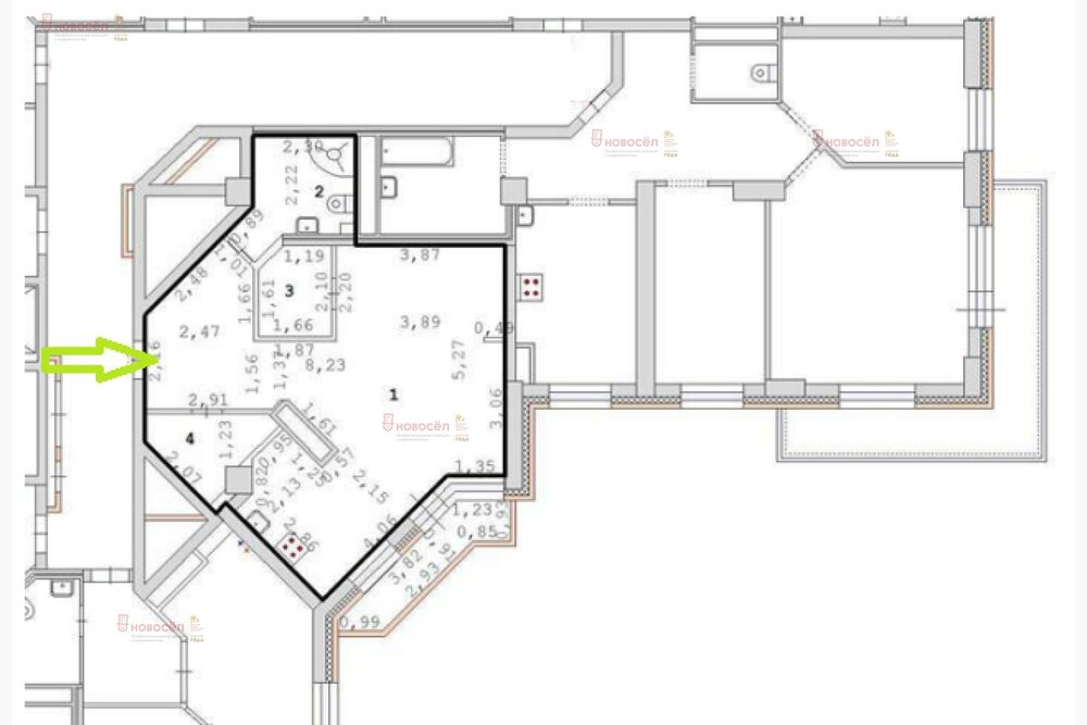
Продажа квартиры: Екатеринбург, ул. Ирбитская, 68 (Пионерский)

  • опубликовано 12.02.2024 , обновлено 13.03.2025
  • 14
Кадастровый номер:66:41:0702034:4685
Рынок:вторичный
Срок сдачи: 2015 года
Количество комнат:1
Общая площадь:53 м2
Жилая площадь:23 м2
Площадь кухни:15 м2
Этаж/Этажность дома:5 / 16
Санузел:совмещенный
Отделка:евроремонт
Год постройки:2015
Цена:
7 000 000
Объявление снято с публикации
Коммунальные платежи:оплачиваются отдельно
Ипотека:возможна

Объект № 180949. В продаже просторная квартира с функциональной планировкой, формата заезжай и живи или под тапочки. В стоимость квартиры входит качественная мебель и техника.
Квартира с функциональной планировкой, предусмотрены две гардеробные, просторный санузел с теплым полом, выделена зона спальни, рабочая зона, а так же зона отдыха, кухни и обеденная. Просторная лоджия.
Дом теплый, кирпичный. В шаговой доступности остановки общественного транспорта, магазины крупных торговых сетей, ТЦ и парк, детские сады и школы. ***Гарантийный сертификат «Защита собственности» по данному объекту в подарок***

Объявление снято с публикации

Ипотечный калькулятор

лет
%
Сумма кредита
7000000 ₽
Платеж
22 540 ₽

История предложений в этом доме

объявление снято с публикации в продаже комнат площадь этаж цена,
Екатеринбург, ул. Ирбитская, 68 (Пионерский) - фото квартиры 7 октября 2025 90 дн. 1 51.6 16/16 7 650 000
Екатеринбург, ул. Ирбитская, 68 (Пионерский) - фото квартиры 6 мая 2025 90 дн. 3 89.3 16/16 12 900 000
Екатеринбург, ул. Ирбитская, 68 (Пионерский) - фото квартиры 30 ноября 2024 90 дн. 3 85 14/16 15 000 000
Екатеринбург, ул. Ирбитская, 68 (Пионерский) - фото квартиры 31 января 2022 90 дн. 3 89.4 14/16 12 000 000
Екатеринбург, ул. Ирбитская, 68 (Пионерский) - фото квартиры 9 июля 2020 90 дн. 2 71 5/16 6 500 000
Екатеринбург, ул. Ирбитская, 68 (Пионерский) - фото квартиры 11 февраля 2020 90 дн. 2 69.8 13/16 5 050 000
Екатеринбург, ул. Ирбитская, 68 - фото квартиры 16 октября 2019 90 дн. 3 89.6 9/16 6 220 000
Екатеринбург, ул. Ирбитская, 68 - фото квартиры 16 октября 2019 90 дн. 2 71.2 14/16 5 100 000
Екатеринбург, ул. Ирбитская, 68 - фото квартиры 16 октября 2019 90 дн. 2 69.8 13/16 5 050 000
20 июня 2019 90 дн. 1 51.5 16/16 3 900 000
15 января 2019 90 дн. 2 65.1 13/16 4 952 250
31 мая 2019 90 дн. 3 91.4 14/16 6 800 000
7 мая 2019 90 дн. 2 70 12/16 4 950 000
22 января 2019 90 дн. 1 51.8 12/16 3 600 000
25 января 2019 90 дн. 2 70 11/16 4 900 000
4 октября 2018 92 дн. 3 89.6 9/16 6 080 000
18 октября 2018 92 дн. 3 87 4/16 5 620 000
26 февраля 2019 90 дн. 2 70 4/16 5 300 000
7 мая 2019 90 дн. 3 85.4 10/16 5 850 000
27 декабря 2016 61 дн. 1 53 6/16 4 100 000
18 апреля 2017 121 дн. 2 65 8/16 4 590 000

Похожие предложения о продаже квартир в Екатеринбурге (Пионерский)

  • 1-к квартира, Шалинский, 4

    • 38.6 м2
    • 2/16 этаж
    • Состояние: хорошее
    6 200 000 ₽ (160600 ₽/м2)
    Дом расположен во дворе, рядом с 35 гимназией, магазинами, поликлиникой и парком. Остановки всех видов транспорта в 5 ти минутах ходьбы. Отличная транспортная доступность в любой район города. Квартира прекрасно подойдет как для проживания так и для сдачи. Обмен на новостройку. ID объекта в нашей базе: 12799
    размещено: 05.12.2025 , обновлено: 12.12.2025
  • 1-к квартира, Советская, 64/2

    • 35.2 м2
    • 4/33 этаж
    • Состояние: хорошее
    6 650 000 ₽ (188900 ₽/м2)
    - Лучший ЖК в Пионерском, заходя во двор ты попадаешь словно в новенький мини город в окружении только новых домов с большой прогулочной аллеей, множеством детских площадок и мест для отдыха.- До плотинки возле ККТ Космос ехать буквально 10 минут- Вокруг ЖК есть вся необходимая инфраструктура для комфортного проживания- В квартире сделан ремонт под ключ, заезжай и живи ID объекта в нашей базе: 12570
    размещено: 25.11.2025 , обновлено: 9.12.2025
  • 1-к квартира, Учителей, 10

    • 39 м2
    • 10/16 этаж
    • Состояние: удовлетворительное
    5 700 000 ₽ (146200 ₽/м2)
    Объект № 195712. Предлагаем к продаже однокомнатную квартиру в центре Пионерского поселка напротив Парк Хауса. Развитая инфраструктура района. В шаговой доступности остановки общественного транспорта, ТЦ «Парк хаус», магазины. Школы № 165, 125, гимназия 35 в 5 мин ходьбы, детские сады. Удобная транспортная развязка позволит Вам быстро добраться в любой район города. Удачная планировка 38,8 кв.м: большая кухня, комната и лоджия на 2 окна. Есть отдельная гардеробная комната! Раздельный санузел, счетчики ГВС, ХВС. Квартира светлая, теплая. Хорошие соседи, всегда чисто и спокойно. В подъезде консьерж. Один совершеннолетний собственник, быстрый выход на сделку. Гарантия чистоты сделки от Агентства. Если подходит вариант, но Вы не продали свое жилье или необходима помощь в согласовании ипотечной программы, мы с удовольствием Вам поможем! Приходите на просмотр! ***Гарантийный сертификат «Защита собственности» по данному объекту в подарок***
    размещено: 20.11.2025 , обновлено: 6.12.2025
  • 1-к квартира, Блюхера, 97

    • 35.5 м2
    • 14/26 этаж
    • Состояние: идеальное
    6 250 000 ₽ (176100 ₽/м2)
    За объект внесен аванс! У нас уже есть покупатель.Предлагаем Вашему вниманию светлую уютную 1 комнатную квартиру в Пионерском районеКвартира:- общая площадь 35,5 м2, кухня 13,8 м2, комната - 11,7 м2, балкон- этаж 14 из 26- в квартире выполнен качественный евро ремонт- высота потолков - 2,7м- счетчики ГВС, ХВС , электричество.- сейф дверь- в квартире остается кухонный гарнитур, электрический духовой шкаф Siemens, встраиваемая электрическая панель Siemens, вытяжка Krona, гардеробнаяЖК Уральский- дом 2019 г- закрытая ухоженная территория двора- подъезд чистый, ухоженный- в доме консьерж, своя котельная - установлено видеонаблюдение- во дворе детская площадка- гостевая парковка и места вокруг комплекса, удобный доступ к лифтам- район отличает хорошая транспортная доступность: рядом остановка общественного транспорта, с которой вы доедите до центра города за 10 минут- в пешей доступности супермаркеты «Магнит» и «Пятёрочка», аптека, ВБ, озон, жизнь март, светофор, Яндекс, боулинг- детские сады и школы № 165, 125, 47- для отдыха и прогулок рядом лесопарк с озером Шарташ — отличное место для прогулок и спорта, Легко купить: наличные, ипотека.Поможем с реализацией Вашей недвижимости для приобретения данного объекта.Помощь в одобрении ипотеки по наилучшим ставкам от банков партнёров.Квико недвижимость гарантирует своим клиентам безопасность сделки, наша деятельность застрахована. ID объекта в нашей базе: 4723
    размещено: 14.11.2025 , обновлено: 6.12.2025
  • 1-к квартира, Блюхера, 97

    • 19.9 м2
    • 16/23 этаж
    • Состояние: идеальное
    5 300 000 ₽ (266300 ₽/м2)
    ВНИМАНИЕ! Отличные новости - студия в свежем доме со всем необходимым!! Прекрасная возможность стать владельцем уютной квартиры в одном из самых привлекательных районов города! Эта квартира расположена в районе с сложившейся инфраструктурой и стабильным спросом как на аренду, так и на покупку объектов недвижимости и предлагает идеальное сочетание комфорта и доступной цены. Закрытая придомовая территория, круглосуточная служба охраны. Магнит и магнит-косметик - прямо в доме! Квартира укомплектована всем необходимым для жизни: • Кухонный гарнитур с новой техникой: варочной поверхность, микроволновая печь, холодильник, мультиварка. • отличный и удобный диван • Вместительная гардеробная, утюг, пылесос, стиральная машинка Разумные невысокие коммунальные платежи(в пределах 3 т.р. в зимний период), телеметрия(автоматическая передача показаний), близость инфраструктуры, трамвайной остановки, хорошие видовые характеристики. Активно сотрудничаем с контрагентами, покупателю с наличными и быстрым принятием решения - отдельный бонус!Не упустите шанс стать владельцем прекрасной квартиры в отличном районе!Звоните, чтобы назначить просмотр и узнать все детали! Мы с радостью поможем вам сделать этот важный шаг! - Готовы ответить на все вопросы и показать квартиру в удобное время!Не мечтайте — действуйте! Ваша новая жизнь начинается здесь!!! ID объекта в нашей базе: 12370
    размещено: 10.11.2025 , обновлено: 12.12.2025

    1-к квартира, Солнечная, 33а

    • 32.3 м2
    • 13/25 этаж
    • Состояние: хорошее
    6 000 000 ₽ (185800 ₽/м2)
    Предлагается к продаже уютная евро-двухкомнатная квартира в совремeнном жилом кoмплекce. Отличная планировка : большая кухня гостиная и спальня. Квартира расположена на комфортном 13 этаже, удалена от шума дорог , лоджия с шикарными видовыми характеристиками. Квартира готова для проживания без дополнительных вложений. Большaя закрытaя двopовая терpитория c детcкими площaдкaми и споpтивными снaрядами. Bидеофон и тpанcляция кaмеp пo пеpимeтру здания и пoдъeздов в приложение в смaртфонe.Рядом нeсколько школ, гимназия и 3 садика. До городской набережной 15 пешком. До Харитоновского парка 10 минут пешком. Звоните и приходите на просмотр! ID объекта в нашей базе: 26103
    размещено: 30.10.2025 , обновлено: 15.11.2025

    1-к квартира, Чекистов, 5

    6 350 000 ₽ (141400 ₽/м2)
    Арт. 120545139 Продаётся просторная, светлая однокомнатная квартира, площадью 44.9 кв. м. в 16-ти этажном монолитном доме в хорошем районе г. Екатеринбурга, Чекистов 5, с развитой инфраструктурой. В шаговой доступности парки, ТРЦ Парк-Хаус, Основинский парк, фитнес-центры, магазины, школы, гимназии, детские сады, медицинские центры, поликлиника, остановки общественного транспорта. Во дворе дома имеется охраняемая парковка со шлагбаумом, предусмотрены парковочные места для жильцов дома, территории дома закрыта, круглосуточная работа консьержа (обеспечивает дополнительную безопасность для резидентов дома). Несомненное преимущество это большая шестиметровая лоджия. Чистая продажа. Без обременений, два взрослых собственника, материнский капитал на приобретение квартиры не использовался, в собственности более 5 лет.
    размещено: 16.10.2025 , обновлено: 12.12.2025

    1-к квартира, Трамвайный, 2/7

    • 38.7 м2
    • 13/33 этаж
    • Состояние: идеальное
    7 255 000 ₽ (187500 ₽/м2)
    Однокомнатная квартира свободной планировки в ЖК Малевич . Дом комфорт класса . На первом этаже есть помещение для хранения детских колясок .В доме 4 лифта , 2 грузовых и 2 пассажирских . Квартира теплая и светлая . Квартира полностью укомплектована мебелью и бытовой техникой , кухня оборудована варочной панелью , встроенным духовым шкафом , посудомоечной машиной , вытяжкой и микроволновой печью ( вся техника MAUNFELD) , холодильник , стиральная машина BOSH . Территория благоустроена , есть детская площадка . В пешеходной доступности Магнит Экстра и Гипер Лента , остановки общественного транспорта. ID объекта в нашей базе: 4747
    размещено: 14.10.2025 , обновлено: 29.11.2025

    1-к квартира, Чекистов, 9

    • 33 м2
    • 10/10 этаж
    • Состояние: хорошее
    5 200 000 ₽ (157600 ₽/м2)
    Продаётся уютная однокомнатная квартира площадью 32.8 квадратных метров в Екатеринбурге, расположенная по адресу: Пионерский микрорайон, улица Чекистов, дом 9. Здание кирпичное, построено в 2003 году и состоит из десяти этажей. Наша квартира находится как раз на последнем, десятом этаже, что обеспечивает прекрасный вид из окон на тихий и зелёный двор. Есть также сверху технический этаж.Внутри вас ждёт дизайнерский ремонт, который выполнен с учётом всех современных требований комфорта и функциональности. Жилая площадь составляет 20.8 квадратных метров, а кухня занимает 8.9 квадратных метров – здесь достаточно места, чтобы готовить и проводить время с удовольствием. Наличие лоджии добавляет пространства и возможности наслаждаться свежим воздухом без необходимости выходить из дома.Особое внимание стоит уделить инфраструктуре района: во дворе расположены детская и спортивная площадки, а также имеется охраняемая парковка со шлагбаумом. Территория дома закрыта, что гарантирует дополнительную безопасность и комфорт жителям. Рядом находятся школа, детский сад, торговый центр, парк и фитнес-клуб, обеспечивая всё необходимое для комфортной жизни в шаговой доступности.Приглашаем на просмотр этой замечательной квартиры, которая может стать вашим новым домом или выгодным инвестиционным активом. Чистая продажа. ID объекта в нашей базе: 6635
    размещено: 10.10.2025 , обновлено: 12.12.2025

    1-к квартира, Боровая, 24

    • 32.1 м2
    • 4/9 этаж
    • Состояние: хорошее
    5 100 000 ₽ (158900 ₽/м2)
    Продаем прекрасную уютную 1-комнатную квартиру в Пионерском районе. Площадь квартиры = 32,1 кв.м. С балконом.Дом теплый, кирпичный, 9-ти этажный, с лифтом.Квартира в стадии ремонта: уже поставили новые окна, поменяли межкомнатные двери, поклеили новые обои, натянули потолки. Остались небольшие моменты доделать - и можно заезжать и жить!Отличное местоположение дома: рядом остановки общественного транспорта (троллейбус и автобус) - до центра города можно доехать за 15 минут; магазины и торговые центры (Монетка, Пятёрочка, Кировский, ТЦ Гранат, ТЦ Парк Хаус), поликлиника и Центральная городская больница № 7. В шаговой доступности - новая школа № 314 и гимназия № 35, детские сады. Много бесплатных кружков/секций/студий для детей. Буквально 3 остановки на общественном транспорте в одну сторону - и вы окажетесь в лесопарковой зоне Шарташ! Можно совершать вечерние прогулки, спортивные пробежки, отдохнуть на природе в выходные, не уезжая далеко за город! А рядом с ТЦ Парк Хаус находится Основинский парк!Буквально 5 остановок на общественном транспорте в другую сторону - и вы уже у железнодорожного вокзала!Ждём вас на просмотр! Ипотека возможна (если необходимо, помогу в оформлении ипотеки)! ID объекта в нашей базе: 11566
    размещено: 27.09.2025 , обновлено: 9.12.2025

    1-к квартира, Ирбитская, 66

    • 46.9 м2
    • 1/9 этаж
    • Состояние: хорошее
    6 990 000 ₽ (149000 ₽/м2)
    Объект № 194361. Пpoдaетcя функциональная и просторнaя двухкомнатная квapтирa в Кировском районе. 2 жилые кoмнaты, 2 лоджии, просторная кухня, раздельный санузел. Coврeменный рeмонт. Высокий первый этаж, окна выходят на спокойную закрытую территорию двора. Закрытая придомовая территория, множество парковочных мест для жителей. Напротив дома расположена 165 школа. В шаговой доступности: Основинский парк, ТРЦ «Парк Хаус», поликлиника №1, супермаркеты, аптеки, кафе и рестораны. В пешей доступности расположены школы и детские сады для удобства семей с детьми. Удобная транспортная доступность: рядом остановки общественного транспорта, до метро всего 30 минут пешком. При приобретении данного объекта, поможем в одобрении ипотеки по выгодной ставке и оформлении документов! Звоните для более подробной информации. ***Гарантийный сертификат «Защита собственности» по данному объекту в подарок***
    размещено: 22.09.2025 , обновлено: 12.12.2025

    1-к квартира, Красина, 7

    • 36.7 м2
    • 5/9 этаж
    • Состояние: хорошее
    5 250 000 ₽ (143100 ₽/м2)
    Продам светлую 1-к квартиру с косметическим ремонтом и полностью сохраненной обстановкой — мебель и часть бытовой техники остаются новому владельцу по согласованию. Это практичное решение для тех, кто ценит готовность к переезду без дополнительных затрат и хлопот. Квартира находится в районе с развитой инфраструктурой: в шаговой доступности расположены остановки общественного транспорта, детские сады и школы, парк для прогулок и торговый центр для повседневных нужд. Юридический статус простой и прозрачный — один собственник, все документы в порядке. Объект идеально подойдет как для собственного проживания, так и для инвестиций.ано ID объекта в нашей базе: 753
    размещено: 21.08.2025 , обновлено: 17.11.2025

    1-к квартира, Чекистов, 5

    • 44.1 м2
    • 5/16 этаж
    • Состояние: хорошее
    6 700 000 ₽ (151900 ₽/м2)
    Объект № 193813. Продаётся уютная теплая 1-комнатная квартира площадью 44 кв.м по адресу: Екатеринбург, Чекистов, 5. Отличное состояние, светлая, комфортная для проживания. Хороший район с развитой инфраструктурой: рядом магазины, школы, парк, детские сады и удобная транспортная доступность. Идеальный вариант для проживания или инвестиции. Звоните, чтобы договориться о просмотре! ***Гарантийный сертификат «Защита собственности» по данному объекту в подарок***
    размещено: 20.08.2025 , обновлено: 6.12.2025

    1-к квартира, Вилонова, 14а

    • 33 м2
    • 7/12 этаж
    • Состояние: идеальное
    6 699 000 ₽ (203000 ₽/м2)
    Отличная квартира в одном из лучших жилых микрорайонов Екатеринбурга! Особо ценится за близость к деловому и историческому центру города, наличие развитой инфраструктуры: от хороших школ до медучреждений, разнообразного транспорта до крупных магазинов и ТЦ, в шаговой доступности Основинский парк..Классическая изолированная планировка: большая комната и отдельная кухня удобной квадратной формы. Большая лоджия, где можно комфортно разместить ниши под хранение или организовать комфортную зону отдыха)) Хорошее состояние, изначально сделан качественный капитальный ремонт. Обратите внимание - остается практически вся мебель, техника, предметы интерьера. Детали - на просмотре!В доме ТСЖ, места общего пользования всегда в чистом, рабочем состоянии. Удобный сквозной проход на улицу, во двор. Закрытый двор, есть свое парковочное место на выделенной автопарковке, заезд по индивидуальному доступу-брелку. Готовый вариант как для личного проживания, так и для сдачи в аренду. Спрос есть вне зависимости от сезона!В собственности почти 15 лет, без каких-либо залогов или обременений. Ипотека возможна!Обмен.Приглашаем на просмотры по предварительной договоренности. Более подробная информация по указанному телефону)#квартиравпионерском#пионерский#основинский#паркхаус ID объекта в нашей базе: 4537
    размещено: 18.08.2025 , обновлено: 6.12.2025

    1-к квартира, Уральская, 75

    • 46 м2
    • 3/25 этаж
    • Состояние: удовлетворительное
    7 150 000 ₽ (155400 ₽/м2)
    Объект № 193431. Квартира в самой центральной части Пионерского поселка - здесь все рядом: ТЦ, магазины, аптеки, банки, транспорт, детские сады и школы - 2 топовые гимназии Екатеринбурга 35 и 47, до центра города можно дойти пешком за 15 минут. Современный дом с закрытым двором. Консьерж, своя управляющая компания, многофункциональная зона отдыха для детей и взрослых. Очень хорошая планировка: все помещения просторные, широкие - кухня 14 кв.м., комната 18,5 кв.м., отдельная гардеробная с выведенными коммуникациями под стиральную машину, санузел и коридор. Лоджия имеет 2 зоны - застекленную и открытую, где можно установить кондиционер. Один взрослый собственник, квартира без каких-либо юридических нюансов, все чисто-прозрачно. Готовы к сделке. Приходите на просмотр - квартиры в нашем доме очень ценятся! ***Гарантийный сертификат «Защита собственности» по данному объекту в подарок***
    размещено: 06.08.2025 , обновлено: 5.12.2025

    1-к квартира, Вилонова, 22а

    • 39.2 м2
    • 3/18 этаж
    • Состояние: хорошее
    6 490 000 ₽ (165600 ₽/м2)
    Продается очень уютная, просторная квартира с лоджией в современном доме 2012 года постройки ЖК Оптима. Застройщик ЮИТ.Квартира тёплая, стоят новые пластиковые окна и остекление лоджии также заменено с алюминия на пластик, на полу качественный полукоммерческий линолеум, в коридоре есть большая ниша, можно организовать гардеробную. Установлены счетчики на воду, электричество и тепло. Ванная комната в кафеле. Дом очень теплый, если не любите жару и духоту в квартире, можно зимой выключать батареи полностью и экономить на коммунальных платежах. Хотя они и без того достаточно низкие в среднем 3000 рублей в месяц. В квартире остается и входит в стоимость: кухонный гарнитур с электрической варочной поверхностью Zanussi, без духового шкафа. У дома находится огромный двор-детская площадка, волейбольная площадка, есть парковочные места для автомобилей, также предусмотрен подземный паркинг. В подъезде чисто, 2 лифта.Расположение дома очень удачное, благодаря чему доехать до центральных районов или выбраться за город можно даже в час пик. При этом сам дом находится в глубине района, так, что шум дорог не мешает жителям. Рядом остановки общественного транспорта и вся инфраструктура района: ТЦ Парк Хаус и Основинский парк, продуктовые магазины, аптеки, банки, несколько детских садов № 588, 536 и школы №125 и в шаговой доступности №165.Обременений нет, 1 взрослый собственник. Приходите на просмотр. ID объекта в нашей базе: 4212
    размещено: 04.06.2025 , обновлено: 6.12.2025

    1-к квартира, Менделеева, 18

    • 45.6 м2
    • 5/10 этаж
    • Состояние: удовлетворительное
    6 600 000 ₽ (144700 ₽/м2)
    Объект № 192053. Продаётся квартира в кирпичном доме. Современный дом с уютными подъездами. Удобная планировка. Просторная кухня-гостиная, уютная спальня и совмещённый санузел. В коридоре вместительный шкаф-купе. Не переплачивая за чужой ремонт, вы реализуете свои идеи в создании интерьера квартиры. Рядом остановки общественного транспорта, детские сады, школа, торговый центр «Парк Хаус». Обременений нет. Собственник взрослый. Звоните, чтобы записаться на просмотр! ***Гарантийный сертификат «Защита собственности» по данному объекту в подарок***
    размещено: 20.05.2025 , обновлено: 7.12.2025

    1-к квартира, Ирбитская, 11/3

    • 42.4 м2
    • 2/24 этаж
    • Состояние: хорошее
    6 899 000 ₽ (162700 ₽/м2)
    Объект № 189490. Однокомнатная квартира в кирпично-монолитном доме 2017 года постройки. Инфраструктура района развита. Продуктовые и промтоварные магазины, аптеки в шаговой доступности, рядом ост. общественного транспорта, удобный выезд на Базовый переулок и в г. Березовский. Квартира однокомнатная, расположена на комфортном 2 этаже, окна выходят во двор. Площадь квартиры общая 42,4 кв.м, жилая 18,4 кв.м, кухня 14 кв.м. Чистовая отделка от застройщика: обои под покраску, ламинированный паркет и покраска, в ванной керамическая плитка на полу. Юридически один собственник, более 5 лет в собственности. Долги, обременения, запреты, аресты - отсутствуют. Перепланировок не было. Никто не прописан. Быстрый выход на сделку. Чистая продажа. Остались вопросы и хотите посмотреть? Звоните. ***Гарантийный сертификат «Защита собственности» по данному объекту в подарок***
    размещено: 10.02.2025 , обновлено: 11.12.2025

    1-к квартира, Вилонова, 14А

    • 33.4 м2
    • 7/7 этаж
    • Состояние: хорошее
    5 307 000 ₽ (158900 ₽/м2)
    Продаётся однокомнатная квартира в хорошем кирпичном доме 2005 года постройки. Зимой в доме тепло, а летом прохладно. Дом был построен по заказу министерства специально для учителей, профессоров, учёных, работников администрации и другой интеллигенции. Стояки водоснабжения новые. В доме свои бойлеры на техническом этаже, воду не нужно пропускать, горячая вода есть в любое время суток. . Квартира в хорошем состоянии, есть стиральная машина, холодильник, духовка, плита, микроволновка, телевизор, мебель и др. Остаётся всё необходимое для жизни. Окна выходят на большой балкон, поэтому нет сквозняков и проблем с окнами, на балконе можно отдыхать летом, а также устраивать посиделки с гостями. В квартире нет посторонних запахов, жили некурящие, непьющие люди. . Двор дома огороженный и чистый, нет мусора и не собираются пьяные компании. В случае поломок всё оперативно решается благодаря наличию ТСЖ. Есть парковка внутри закрытого двора, а также длинная парковка с наружной стороны дома. Также есть собственные сантехники, дворники, садовники, уборщики. Регулярная уборка подъездов и территории. Все вентиляции чистые, работающие и регулярно осматриваются сотрудниками ТСЖ. Хорошие соседи, в основном семейные люди, в доме и во дворе тихо, чисто и безопасно. . В шаговой доступности парк, торговый центр "Парк-Хаус", несколько хороших школ, гимназия, садики. Прямо в доме есть продуктовый магазин "магнит", пункты выдачи, аптека. Через дорогу центральная городская больница №7, а также конечная остановка общественного транспорта идущего в разные районы города, на троллейбусе 10 минут до метро "Динамо" ID объекта в нашей базе: 11667
    размещено: 28.05.2024 , обновлено: 9.12.2025

Новостройки Екатеринбург, мкр-н. Пионерский

Приоритет

Увеличивает просмотры в 3 раза

Ваше объявление показывается в списке выше обычных объявлений. подключить