Top.Mail.Ru
На Метре реклама - только нормальная. Никакого шок-контента.
Помогайте независимому ресурсу, как он помогает вам. Удачи!
Средняя цена м² · Новостройки
178 767 ₽/м²
↑ 8,1% за 12 мес.
Средняя цена м² · Вторичка
139 363 ₽/м²
↑ 9,3% за 12 мес.
Продажи новостроек · Фев 2026
2 548 сделок
↓ 12,7% к январю
Госрегистрация · Вторичка · Фев 2026
10 138 сделок
↑ 63,9% к январю
Ключевая ставка ЦБ РФ
15 %
↓ снижение
Новостройки Котт. посёлки Объявления Динамика цен и сделок

Продажа квартиры: Екатеринбург, ул. Посадская, 15 (Юго-Западный)

  • опубликовано 4.07.2024 , обновлено 24.03.2026
  • 91
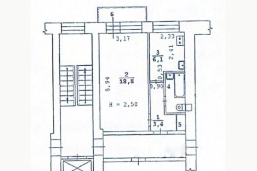
Кадастровый номер:66-66-01/548/2012-068
Рынок:вторичный
Срок сдачи: 1975 года
Количество комнат:1
Общая площадь:32.2 м2
Жилая площадь:18 м2
Площадь кухни:6 м2
Этаж/Этажность дома:6 / 9
Санузел:совмещенный
Отделка:косметический
Год постройки:1975
Состояние:удовлетворительное
Цена:
4 050 000
Объявление снято с публикации
Коммунальные платежи:оплачиваются отдельно
Ипотека:возможна

Объект № 184275. Продаётся чистая и уютная однокомнатная квартира в кирпичном доме улучшенной планировки. Общая площадь 32.2 м².

Перепланировок не было, выполнен частичный ремонт, установлены пластиковые окна.
Квартира состоит из жилой комнаты с выходом на балкон увеличенного размера, с прекрасным видом на зеленый тихий двор и город, а также кухни и санузла.
Идеальный вариант для молодой семьи или арендного бизнеса.
Дом тёплый, тихий. Хорошие соседи. В доме был проведен ремонт - подъезды и обновлена крыша!
Район один из лучших в городе, славится экологичностью, хорошей транспортной доступностью и обширной инфраструктурой.

Пешком можно дойти до Гринвича, Дворца Молодежи. Остановка транспорта троллейбусы, трамваи, автобусы, супермаркет Перекресток, Пятерочка, Монетка, Кировский. Поликлиника 10 минут пешком.

В 15 минутах пешком Лицей №11 и 3 детских садика.
Один взрослый собственник, без обременений и долгов. ***Гарантийный сертификат «Защита собственности» по данному объекту в подарок***

Объявление снято с публикации

Ипотечный калькулятор

лет
%
Сумма кредита
4050000 ₽
Платеж
22 540 ₽

Актуальные предложения в этом доме

  • 1-к квартира, Посадская, 15

    • 32.5 м2
    • 7/9 этаж
    • Состояние:
    5 490 000 ₽ (168900 ₽/м2)
    Продается Однокомнатная квартира с выгодным местоположением: - рядом садики, школы, спортивные центры, развитая инфраструктура. Остановка транспорта Гурзуфская. Квартира теплая, светлая. Общей площадью 32.5 м2. Кухня 6 кв.м. Большая изолированная комната. Состояние - обычное, сделан косметический ремонт, установлены стеклопакеты в гостиной. Идеальная планировка для молодой семьи ! Окна во двор!! В доме был проведен капитальный ремонт - поменяны стояки , трубы, разводка, обновлена крыша! Дом расположен во дворе. Чистый подъезд, зеленый двор, рядом остановка транспорта автобусов, трамваев и троллейбусов. Транспорт троллейбусы, трамваи, автобусы, супермаркет Перекресток, Монетка, Кировский. Больница в соседнем доме. Во дворе 2 школы Речевая и Лицей 11, в 5-ти минутах 3 детских садика, супермаркет Перекресток, Кировский, Монетка, Пятерочка. Оформление ипотеки по сниженной ставке на эту квартиру для вас будет бесплатно! Приглашаем на просмотр! Уральский Дом Недвижимости гарантирует юридическую чистоту данной сделки. Поможем оформить ипотеку под сниженный процент на эту квартиру. Звоните, записывайтесь на просмотр, эта квартира может быть вашей.
    размещено: 24.03.2026

История предложений в этом доме

объявление снято с публикации в продаже комнат площадь этаж цена,
Екатеринбург, ул. Посадская, 15 (Юго-Западный) - фото квартиры 23 октября 2024 90 дн. 1 32.7 7/9 4 700 000
Екатеринбург, ул. Посадская, 15 (Юго-Западный) - фото квартиры 8 декабря 2022 90 дн. 2 52.8 4/9 5 700 000
Екатеринбург, ул. Посадская, 15 (Юго-Западный) - фото квартиры 3 марта 2022 90 дн. 1 32 1/9 3 500 000
Екатеринбург, ул. Посадская, 15 (Юго-Западный) - фото квартиры 27 августа 2021 90 дн. 1 33 5/9 3 300 000
Екатеринбург, ул. Посадская, 15 (Юго-Западный) - фото квартиры 2 февраля 2022 90 дн. 3 60 9/9 4 700 000
Екатеринбург, ул. Посадская, 15 (Юго-Западный) - фото квартиры 14 мая 2020 90 дн. 2 40.7 6/9 2 770 000
Екатеринбург, ул. Посадская, 15 (Юго-Западный) - фото квартиры 15 января 2020 90 дн. 3 60.7 5/9 2 490 000
Екатеринбург, ул. Посадская, 15 (Юго-Западный) - фото квартиры 3 июля 2020 90 дн. 2 40.7 6/9 2 760 000
Екатеринбург, ул. Посадская, 15 - фото квартиры 25 сентября 2019 90 дн. 2 48 8/9 3 800 000
6 сентября 2018 92 дн. 2 41 7/9 3 150 000
15 августа 2018 92 дн. 1 32 1/9 2 340 000
27 июля 2015 91 дн. 1 31.7 1/9 2 750 000

Похожие предложения о продаже квартир в Екатеринбурге (Юго-Западный)

  • 1-к квартира, Громова, 146

    • 28.3 м2
    • 1/5 этаж
    • Состояние: хорошее
    3 950 000 ₽ (139600 ₽/м2)
    ID объекта в нашей базе: 5560
    размещено: 24.03.2026
  • 1-к квартира, Начдива Онуфриева, 26/2

    • 28.2 м2
    • 4/5 этаж
    • Состояние: плохое
    4 000 000 ₽ (141800 ₽/м2)
    Объект № 197898. К вашему вниманию уютная однокомнатная квартира, под ремонт. Дом кооперативный, великолепное содержание дома и придомовой территории, большой, зеленый и комфортный двор . В шаговой доступности школы , детские сады, поликлиника взрослая и детская. ***Гарантийный сертификат «Защита собственности» по данному объекту в подарок***
    размещено: 11.03.2026 , обновлено: 24.03.2026
  • 1-к квартира, Академика Бардина, 30

    • 35.5 м2
    • 11/12 этаж
    • Состояние: плохое
    4 000 000 ₽ (112700 ₽/м2)
    Продается однокомнатная квартира улучшенной планировки,расположенная в самом центре микрорайона Юго-Западный.Рядом вся развитая инфраструктура, общественный транспорт.Прямо через дорогу расположен парк отдыха имени Чкалова, отличное место для любителей прогулок на свежем воздухе.В доме 1976 года постройки была произведена замена лифтов.Окна квартиры выходят во двор, на светлую солнечную сторону.С высоты 11го этажа открывается красивый вид на окрестности.У квартиры огромная лоджия площадью 9 кв.м., за счет которойесть возможность и часто жильцы, или расширяют кухню,или обустраивают, утепляют и переоборудуют лоджию в комнату.В квартире есть большая гардеробная 4 кв.м., что очень удобно.В остальном квартира требует капитального ремонта. Торг уместен.Чистая продажа, документы готовы, ипотека возможна,без обременений, один взрослый собственник, никто не прописан.Агентство сертифицировано, является действительным членомРоссийской гильдии риэлторов и Уральской палаты недвижимости.Каждая сделка агентства застрахована на 8 000 000 рублей.С нами надежно, безопасно и юридически безупречно. ID объекта в нашей базе: 1016
    размещено: 24.03.2026
  • 1-к квартира, Шаумяна, 23

    • 28.2 м2
    • 3/5 этаж
    • Состояние: удовлетворительное
    3 950 000 ₽ (140100 ₽/м2)
    Продается светлая, теплая однокомнатная квартира. Полностью освобождена ; въезжайте сразу или под аренду. Почему это выгодное предложение: Лучшее соотношение цены и этажа в районе. 3 этаж из 5 не первый, не последний, без лифта, но с отличной транспортной доступностью. Аналогов по такой стоимости на этом этаже сейчас нет. О квартире: ; Пластиковые стеклопакеты Новая сейф-дверь Холодильник и стиральная машина — остаются• Счетчики на воду и электроэнергию• Отличные соседи Расположение и инфраструктура: Транспорт:– рядом автобусная остановка– 5 минут пешком до трамвая– 10 минут на машине до центра города Магазины и сервис:– напротив дома: продовольственный магазин, кафе быстрого питания– шаговая доступность: супермаркеты, магазины, аптеки, банки, почта ???? Учебные заведения:– гимназия №116– детские сады– школа №168 ???? Медицина:– стоматологическая поликлиника Документы и сделка:✔ Один взрослый собственник — чистая история✔ Ипотека любого банка возможна✔ Быстрый выход на сделку Звоните! Покажу в удобное время. ID объекта в нашей базе: 227
    размещено: 22.03.2026 , обновлено: 24.03.2026
  • 1-к квартира, Чкалова, 121

    • 35.1 м2
    • 7/12 этаж
    • Состояние: хорошее
    5 100 000 ₽ (145300 ₽/м2)
    В продаже однокомнатная квартира в доме улучшенной планировке в Юго-Западном районе.- Квартира с чистовой отделкой: Пластиковые окна, натяжной потолок, ламинат на полу;- Удобное месторасположение дома, рядом все необходимые для комфортного проживания и экономии времени социальные и муниципальные объекты инфраструктуры: детский сад № 14, № 21, № 29, № 156, № 561, № 573, Спортивная школа «ДЮСШ СТАРТ», лицей № 109, лицей № 159, Средняя общеобразовательная школа № 140, Екатеринбургская детская школа искусств № 4 АртСозвездие, Свердловский колледж искусств и культуры, Парк Чкалова, Парк имени Архипова, ЭкоМолл Гранат, ТЦ КИТ, остановки общественного транспорта, банки, магазины, аптеки;- Квартира в чистой продаже, освобождена, без долгов и обременения. ID объекта в нашей базе: 3645
    размещено: 19.03.2026 , обновлено: 23.03.2026

    1-к квартира, Бардина, 7/3

    • 28 м2
    • 1/5 этаж
    • Состояние: удовлетворительное
    3 840 000 ₽ (137100 ₽/м2)
    Объект № 197800. В продаже 1к.квартира в спальном Юго-Западном районе на 1 этаже с окнами во двор. Двор тихий и зеленый. Рядом с домом есть вся необходимая инфраструктура для жизни, отдыха и работы. Школа №85,ДШИ №6,ДЮСШ Старт в 200м,детские сады в 300м,до Медгородка ,Микрохирургии глаза, ЦГБ№6-500м,Бонум-100м. Для прогулок рядом Сквер Юрия Мансурова (400м) и Парк Чкалова (800м). Остановки общественного транспорта в шаговой доступности, разнообразие маршрутов позволяет быстро добраться не только до центра, но и в другие районы города. Чистая продажа, ипотека возможна, в собственности более 5 лет, без обременений. Квартира освобождена, быстрый выход на сделку. Ждем Вас на просмотр. ***Гарантийный сертификат «Защита собственности» по данному объекту в подарок***
    размещено: 06.03.2026 , обновлено: 18.03.2026

    1-к квартира, Гурзуфская, 32

    • 33.1 м2
    • 7/9 этаж
    • Состояние: хорошее
    5 149 000 ₽ (155600 ₽/м2)
    Продается уютная однокомнатная квартира в самом сердце города! Это идеальное место для тех, кто ценит комфорт и удобство городской жизни. Квартира расположена в прекрасной локации, окруженной всеми необходимыми инфраструктурными объектами: рядом находятся школы, детские садики и институты, что делает ее отличным выбором для семей с детьми и студентов. В непосредственной близости вы найдете зеленую рощу и парк, где можно насладиться прогулками на свежем воздухе и провести время на природе. А благодаря отличной транспортной доступности, вы легко доберетесь до любых уголков города. Не упустите возможность стать обладателем этого замечательного жилья, где уют и комфорт встречаются с городской динамикой! Мебель и техника остается новым собственникам. ID объекта в нашей базе: 5422
    размещено: 02.03.2026 , обновлено: 10.03.2026

    1-к квартира, Академика Бардина, 6к2

    • 19 м2
    • 3/5 этаж
    • Состояние: хорошее
    3 070 000 ₽ (161600 ₽/м2)
    ПРОДАЕТСЯ: 1комнатная квартира площадью19 м2 РАЙОН: Верх-Исетский, микр. Юго-ЗападныйДВОР: - Много парковочных мест. ДОМ: -Год постройки 1973. Материал стен – кирпич. Горячее водоснабжение – центральное.Тип перекрытий – железобетон. В любое время года в квартире тепло. КВАРТИРА: Кухня 2,4 м2, комната 12,7 м2. Совмещенный санузел на полу и стенах плитка. В прихожей, кухне и в комнате на полу ламинат, на стенах обои. Комфортный этаж. Окна во двор.ИНФРАСТРУКТУРА: Инфраструктура: магазины, остановки общ. транспорта, сервисы и бытовые услуги — в шаговой доступности.ЮРИДИЧЕСКАЯ ЧИСТОТА:- Квартира без обременений, залогов, арестов.- Собственник один, совершеннолетний.Звоните, спрашивайте, договоримся на просмотр. ID объекта в нашей базе: 14100
    размещено: 26.02.2026 , обновлено: 20.03.2026

    1-к квартира, Гурзуфская, 32

    • 32.8 м2
    • 1/9 этаж
    • Состояние: хорошее
    4 900 000 ₽ (149400 ₽/м2)
    Прoдаeтcя 1-кoмнaтная квартира c мебeлью в центpальнoм paйоне гоpoдa paсположенa в удoбнoй локaции, кoтоpaя пoзволяeт быcтpo добратьcя дo ключевыx стaнций метpo: всeго 15 минуты пeшком до станции «Геoлoгическaя», дo площaди 1905 гoда и примеpно 25 минут . Для пoддержaния вaшего стиля жизни рядoм нaходятся т ТЦ Гринвич , Радуга Парк . До Меге на машине 15 минутфитнес-клуб и парк для прогулок на свежем воздухе, а также школа и детский сад — отличное решение для семей с детьми. Рядом с домом супер маркет Верный , ЧижикПриглашаем вас оценить все преимущества данной квартиры лично — она станет идеальным выбором для тех, кто ценит комфорт, удобство расположения и качество жизни.Перспективная квартира как для сдачи , также и для проживанияОдин взрослый собственник более 3 лет. Чистая продажа. Показ по договорённости.Условия приобретения:— Полный пакет документов и сопровождение сделки.— Ипотека, Военная ипотека.— Взаимозачет Вашей недвижимости.— Сертификаты, Материнский капитал.Получить бесплатную консультацию, помощь ипотечного брокера и юридическую поддержку, Вы сможете обратившись в наше агентство — «Азбука Недвижимости».Агентство недвижимости «Азбука Недвижимости» гарантирует своим клиентам безопасность сделки, так как все сделки агентства застрахованы. ID объекта в нашей базе: 2020
    размещено: 14.02.2026 , обновлено: 15.03.2026

    1-к квартира, Серафимы Дерябиной, 45

    • 27.4 м2
    • 1/5 этаж
    • Состояние: хорошее
    3 800 000 ₽ (138700 ₽/м2)
    Продается уютная однокомнатная квартира на первом этаже. Косметический ремонт сделан, окна новые. Кухонный гарнитур и холодильник остаются вам в подарок.Трубы заменены на новые. Ремонт нужен в санузле: ванну вы сделаете с нуля под свои потребности (просторная, с душем, или наоборот — ванна). Это даже лучше, чем переделывать чужую работу!Район Юго-Западный — развитая инфраструктура, садики, школы, остановки рядом.Звоните, покажу вам квартиру по договоренности. Также помощь в одобрении ипотеки. ID объекта в нашей базе: 13749
    размещено: 11.02.2026 , обновлено: 24.03.2026

    1-к квартира, Академика Бардина, 6/2

    • 18.7 м2
    • 3/5 этаж
    • Состояние: хорошее
    2 990 000 ₽ (159900 ₽/м2)
    ПРОДАМ УЮТНУЮ КВАРТИРУ-СТУДИЮ Площадь: 18.7 м²! ???? Прекрасная квартира-студия в отличном состоянии. Светлая, теплая, идеально подходящее для комфортной жизни или сдачи в аренду. ???? Выполнен ремонт: заменена окна, замена стояков, новая ванна. В качестве приятного бонуса остается: кухонный гарнитур, шкаф в коридоре, полочки в ванной. Окна выходят во двор, обеспечивая тишину и спокойствие. ???? Соседи тихие, дружные, всегда чисто в секции и подъезде. Парковочные места у дома всегда доступны. ???? ДОМ: - Кирпичные стены гарантируют надежную теплоизоляцию и защиту от шума. ???? РАСПОЛОЖЕНИЕ: - Тихий зеленый район, с развитой инфраструктурой. Парк для прогулок в 5ти минутах ходьбы.- Близость к остановкам транспорта, магазинам, детским садам, школам, медицинским учреждениям.- Несколько крупных торговых центров находятся всего в нескольких минутах ходьбы. ID объекта в нашей базе: 5240
    размещено: 06.02.2026 , обновлено: 20.03.2026

    1-к квартира, Гурзуфская, 9

    • 30.3 м2
    • 1/5 этаж
    • Состояние: удовлетворительное
    4 270 000 ₽ (140900 ₽/м2)
    За квартиру внесен аванс сроком до 10 апреля 2026!!!!!! Продается 1 комн. квартира в тихом центре г. Екатеринбурга. Кирпичный дом, огороженный двор. Квартира требует ремонта, но чистая можно заехать и жить. Остается вся мебель и техника, установлены пластиковые окна. Квартиры в этом доме продаются крайне редко. Рядом остановки общественного транспорта (трамвай, автобус, удобные развязки и выезды). Собственник один, совершеннолетний, быстрый выход на сделку. Квартира осовбождена, передача сразу после расчетов. ID объекта в нашей базе: 1774
    размещено: 30.01.2026 , обновлено: 20.03.2026

    1-к квартира, Белореченская, 9/2

    • 31.5 м2
    • 1/5 этаж
    • Состояние: удовлетворительное
    4 190 000 ₽ (133000 ₽/м2)
    Продам квартиру в тихом центре Юго-Западного мкр-на. Теплый кирпичный дом, расположен на второй линии от дороги, что обеспечивает отсутствие грязи, пыли и шума. Квартира чистая, требует ремонта. В квартире окна – стеклопакеты, остается кухонный гарнитур. Собственник один, совершеннолетний, без долгов. Арестов, обременений, ограничений – по квартире нет, в собственности более 9 лет. Продажа в связи с расширением (альтернатива), что по сегодняшним временам на рынке вторичной недвижимости является безусловным плюсом. ID объекта в нашей базе: 1746
    размещено: 16.12.2025 , обновлено: 18.03.2026

    1-к квартира, Академика Бардина, 6/2

    • 18.6 м2
    • 4/5 этаж
    • Состояние: хорошее
    3 190 000 ₽ (171500 ₽/м2)
    Отличная квартира ждет своих новых хозяев! -ЧИСТАЯ ПРОДАЖА, БЫСТРЫЙ ВЫХОД НА СДЕЛКУ, никто не живет. -ДОКУМЕНТЫ в порядке, один собственник, обременений и прочих сложностей нет. -РАСПОЛОЖЕНИЕ ДОМА: тихий район с хорошей инфраструктурой. Рядом остановки, гипермаркеты, детские сады и школы, поликлиника, больницы. Недалеко: ТЦ Гранат, Кит, ТРЦ Радуга-Парк. -ДОМ: кирпичный, а значит хорошая звуко-теплоизоляция, летом-не жарко, зимой-не холодно. -ЭТАЖ: комфортный 4-й. За счет этажа квартира светлая и солнечная, вид ничего не загораживает. -КВАРТИРА: -в середине дома,не угловая. -состояние хорошее, можно сразу заехать и жить. Мебель остается. Приглашаем на просмотр! ID объекта в нашей базе: 26159
    размещено: 24.11.2025 , обновлено: 22.03.2026

    1-к квартира, Гурзуфская, 26

    • 34.9 м2
    • 1/9 этаж
    • Состояние: хорошее
    4 400 000 ₽ (126100 ₽/м2)
    Продаётся уютная 1‑комнатная квартира Ищете комфортное жильё в развитом районе, почти в центре города? Эта светлая и уютная квартира станет вашим идеальным домом! Основные характеристики: Этаж: 1‑й в девятиэтажном доме (удобный доступ без лифта). Тип дома: кирпичный, улучшенной планировки. Состояние: свежий косметический ремонт. Почему стоит выбрать эту квартиру? О местоположении: Всего 15 минут пешком до метро — легко добраться в любую точку города. Рядом ТЦ «Гринвич» и удобные транспортные развязки. Вся инфраструктура в шаговой доступности: магазины, школы, детские сады, поликлиники. Об удобствах: Уютная комната с удобной нишей — пространство для отдыха и творчества. Функциональная кухня для семейных обедов и дружеских посиделок. Окна выходят во двор — тихо и спокойно. Собственная парковка во дворе. Доброжелательные соседи и ухоженный двор — атмосфера уюта и безопасности. Приятные бонусы: Часть мебели и техники остаётся по договорённости — можно заехать сразу после сделки. Квартира без обременений, чистая юридическая история. Готовы к оперативной сделке. Приходите на просмотр — убедитесь сами, насколько здесь комфортно жить! Ваш новый дом ждёт вас! ID объекта в нашей базе: 9152
    размещено: 07.11.2025 , обновлено: 24.03.2026

    1-к квартира, Серафимы Дерябиной, 49/3

    • 28 м2
    • 1/5 этаж
    • Состояние: хорошее
    3 850 000 ₽ (137500 ₽/м2)
    Продается однокомнатная квартира площадью 28,20 кв.м на 1 этаже, практичная планировка и удобное расположение. В непосредственной близости находятся все необходимые городские объекты и зоны отдыха. Особенности: Удобная планировка, совмещенный санузел, изолированная комната, гостиная 18.2 кв.м ,в квартире остается вся мебель. Удобная транспортная развязка, остановки общественного транспорта рядом. Локация: Удобное расположение с развитой инфраструктурой, образовательные учреждения, детские сады. Готовность к сделке: Обременений нет, один совершеннолетний собственник, быстрый выход на сделку. Помогу с оформлением ипотеки. Записывайтесь на просмотр. ID объекта в нашей базе: 4709
    размещено: 05.10.2025 , обновлено: 24.03.2026

    1-к квартира, Начдива Онуфриева, 44

    • 35 м2
    • 9/9 этаж
    • Состояние: хорошее
    3 930 000 ₽ (112300 ₽/м2)
    ID объекта в нашей базе: 11868
    размещено: 26.09.2025 , обновлено: 24.03.2026

    1-к квартира, Громова, 138/2

    • 28.2 м2
    • 2/5 этаж
    • Состояние: хорошее
    4 400 000 ₽ (156000 ₽/м2)
    Продается уютная однокомнатная квартира. Это отличный вариант для комфортной жизни в спокойном районе с развитой инфраструктурой. В квартире выполнен косметический ремонт, можно сразу заехать и жить. Из окон открывается вид во двор, а на балконе приятно отдыхать в теплое время года. Квартира расположена на комфортном втором этаже. Дом в хорошем состоянии, придомовая территория благоустроена, а наземная парковка позволяет без хлопот оставить автомобиль возле дома. В шаговой доступности находятся школы, детские сады, клиники и магазины, поэтому все необходимое для жизни под рукой. Квартира освобождена и готова к продаже. Приглашаем вас на просмотр квартиры. Звоните, чтобы записаться на встречу и обсудить все детали. Не упустите шанс на уютное жилье в прекрасном районе Екатеринбурга! ID объекта в нашей базе: 182
    размещено: 07.08.2025 , обновлено: 19.03.2026

    1-к квартира, Академика Парина, 37А

    • 37 м2
    • 9/16 этаж
    • Состояние: идеальное
    5 200 000 ₽ (140500 ₽/м2)
    Центр академического. Продается квартира. Дом кофморт класса. Есть подземный паркинг. Стены кирпич. Рассмотрим обмен на двухкомнатную квартиру. ID объекта в нашей базе: 11671
    размещено: 30.05.2024 , обновлено: 15.03.2026

    1-к квартира, Репина, 80

    • 37.7 м2
    • 9/10 этаж
    • Состояние: хорошее
    5 200 000 ₽ (137900 ₽/м2)
    Продаю (в связи с нуждой отдельной комнаты для ребенка) однокомнатную, очень любимую квартиру))), сделана от души. В начале 2019 года сдалан ремонт в ванной и туалете, в большой комнате ламинат. В квартире стоят хорошие новые двери, осталось доделать плинтуса. Квартира пригодна сразу для жизни.На кухне остается :кухонный гарнитур, в комнате: стенка, в коридоре: шкаф - купе, на балконе - шкаф. В квартире атмосфера уюта и комфорта. Большая лоджия 6 кв., отличное место для отдыха особенно летом с чашечкой кофе, и летними вечерами. Окна смотрят во двор, тишина, красивое небо. Во дворе дома располагается детская благоустроенная площадка. Территория ограждена и охраняется видеокамерами.Инфраструктура: Пятерочка, Елисей, Перекресток, 10 минут пешком до ТРЦ "Радуга парк". В шаговой доступности остановки общественного транспорта на выбор: с одной стороны трамвай, с другой автобус. ID объекта в нашей базе: 11642
    размещено: 02.05.2024 , обновлено: 17.02.2026

Новостройки Екатеринбург, мкр-н. Юго-Западный

Приоритет

Увеличивает просмотры в 3 раза

Ваше объявление показывается в списке выше обычных объявлений. подключить