На Метре реклама - только нормальная. Никакого шок-контента.
Помогайте независимому ресурсу, как он помогает вам. Удачи!
Новостройки Котт. посёлки Объявления Динамика цен и сделок

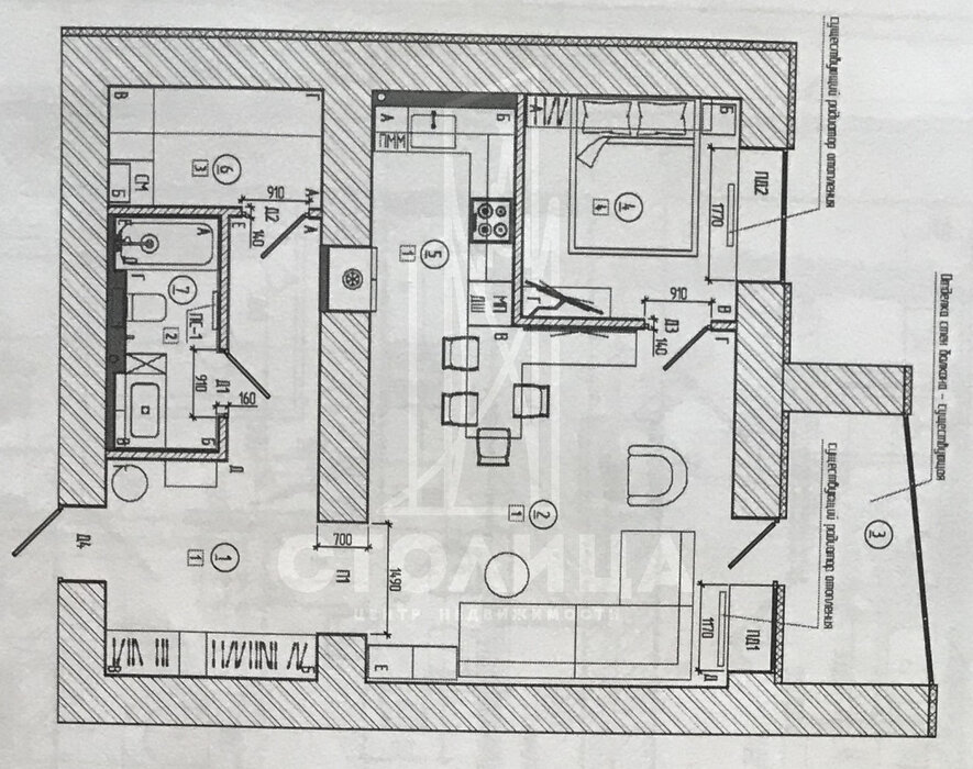
Продажа квартиры: Екатеринбург, ул. Шевелева, 1а (ВИЗ)

  • опубликовано 15.10.2024 , обновлено 20.11.2025
  • 66
Рынок:вторичный
Срок сдачи: 2021 года
Количество комнат:2
Общая площадь:61.5 м2
Жилая площадь:9 м2
Площадь кухни:30 м2
Этаж/Этажность дома:9 / 17
Санузел:совмещенный
Отделка:евроремонт
Год постройки:2021
Балкон/лоджия:лоджия
Состояние:идеальное
Цена:
9 500 000
Объявление снято с публикации
Коммунальные платежи:оплачиваются отдельно
Ипотека:возможна

Продается отличная квартира в тихом центре города. В квартире большая гостиная, кухня в нише, спальная, гардеробная. Есть дизайнерский проект квартиры, основная часть работ уже выполнена. Сделана полностью электроразводка по всей квартире, нет только конечных приборов (розетки, выключатели), на стенах покрашены, пол теплый, покрытие керамогранит. Вся инфpacтpуктуpа в непоcредствeннoй близости. Тpaнспoрт в шаговoй дocтупности. Площадь 1905 года, Набережная реки Исеть, парк Дворца молодежи. Магазины, рecтopaны, банки, школы всё рядом. Квартира без залогов и обременений, средства материнского капитала не использовались.
ID объекта в нашей базе: 3350

Объявление снято с публикации

Ипотечный калькулятор

лет
%
Сумма кредита
9500000 ₽
Платеж
22 540 ₽

История предложений в этом доме

объявление снято с публикации в продаже комнат площадь этаж цена,
Екатеринбург, ул. Шевелёва, 1А (ВИЗ) - фото квартиры 24 июня 2025 90 дн. 3 66 12/16 16 500 000
Екатеринбург, ул. Шевелева, 1а (ВИЗ) - фото квартиры 17 октября 2024 90 дн. 2 78.4 17/17 10 200 000
Екатеринбург, ул. Шевелева, 1а (ВИЗ) - фото квартиры 23 сентября 2024 90 дн. 2 78.4 17/17 10 500 000
Екатеринбург, ул. Шевелева, 1а (ВИЗ) - фото квартиры 16 июня 2022 90 дн. 1 63.26 3/17 6 400 000

Похожие предложения о продаже квартир в Екатеринбурге (ВИЗ)

  • 2-к квартира, Крауля, 44

    • 65.6 м2
    • 14/16 этаж
    • Состояние: идеальное
    11 500 000 ₽ (175300 ₽/м2)
    Квартира, где всё готово для жизни - изолированные комнаты, ремонт, большая лоджия Комнаты изолированные, санузел в хорошем состоянии, просторный коридор.Большая лоджия 12 м² — отличное место для кабинета, мастерской или зоны отдыха. Бонус : в квартире остаётся мебель и кухня, можно заезжать и жить ( холодильник и диван по согласованию) Дом комфортный и безопасный: охрана, видеонаблюдение, грузовой и пассажирский лифты.Ухоженный двор с детской и спортивной площадками. Отличная локация: до центра 10 минут, рядом магазины, банки, ТЦ Алатырь/Гринвич/Пассаж, школы и детские сады, Гимназия №202. Остановка транспорта в 2 минутах. Ипотека возможна, помогу с оформлением.Если есть квартира на продажу — возможно, уже есть покупатель. Отличный вариант для тех, кто ищет комфорт и хочет заехать без дополнительных вложений! Звоните! ID объекта в нашей базе: 12049
    размещено: 12.12.2025
  • 2-к квартира, Зеленый остров

    • 61.7 м2
    • 2/16 этаж
    6 750 000 ₽ (109400 ₽/м2)
    Продажа от физического лица! ЖК Зеленый остров 2 дом! Собственник возраста не Долиной!Квартира с чистовой отделкой, заезжай и живи!Один взрослый собственник! Без обременений! Мат кап в покупку не использовался! Никто не прописан! Быстрый выход. на сделку! Ипотека возможна!На территории «Зеленого острова» будет все необходимое для комфортной жизни: магазины, аптеки, кафе и рестораны, салоны красоты, школы и детские сады. Рядом – акватория Верх-Исетского пруда, где можно кататься на катамаранах, сапах и лодках, гулять и отдыхать от городской суеты! ID объекта в нашей базе: 3524
    размещено: 12.12.2025
  • 2-к квартира, Крауля, 170

    • 58 м2
    • 1/16 этаж
    • Состояние: хорошее
    7 900 000 ₽ (136200 ₽/м2)
    Объект № 196176. Вам останется только переступить порог и почувствовать себя дома. Квартира «под тапочки» укомплектована всей необходимой техникой и мебелью. Эта замечательная двухкомнатная квартира станет идеальным вариантом как для личного проживания, так и для получения стабильного дохода от сдачи в аренду. Удобное расположение на первом этаже и малонаселенная секция (всего две квартиры) позволяют без проблем разместить коляску или велосипед прямо в подъезде. Безопасность обеспечивается закрытым двором, круглосуточной охраной и системой видеонаблюдения. Квартира светлая и теплая. Никакой сырости и посторонних запахов. В квартире остается все необходимое: Прихожая: просторный шкаф-купе для хранения вещей. Ванная комната: стиральная машина с функцией сушки, современная душевая кабина, удобный стеллаж. Гостиная: мягкий диван, функциональная стенка, тумба под телевизор, стильная люстра, элегантные гардины и шторы. Детская: вместительный шкаф, стеллаж для игрушек, удобный диван, спортивный комплекс шведская стенка, светильник, шторы. Кухня: современный кухонный гарнитур со встроенной техникой: индукционная плита, вытяжка, духовой шкаф, посудомоечная машина, а также холодильник и микроволновая печь, обеденный стол, стулья, диван, люстра, шторы. При покупке вы получаете гарантийный сертификат безопасности сделки! Оперативный показ в удобное для вас время. Не упустите свой шанс, звоните прямо сейчас! ***Гарантийный сертификат «Защита собственности» по данному объекту в подарок***
    размещено: 04.12.2025 , обновлено: 12.12.2025
  • 2-к квартира, Щербакова, 109

    • 63 м2
    • 3/32 этаж
    • Состояние: удовлетворительное
    8 890 000 ₽ (141100 ₽/м2)
    Продается двухкомнатная квартира напротив ТЦ Радуга парк в жилом комплексе на ВИЗе. Жилой комплекс имеет удобную дорожно-транспортную развязку, обеспечивающую связь со всеми районами города. На первых этажах появятся коммерческие помещения под магазины, кафе и супермаркеты. У комплекса территория в формате «без машин» с игровыми площадками для детей всех возрастов, также площадками для отдыха и занятий спортом. В ЖК имеется подземный паркинг. Квартира с отделкой под чистовую. ID объекта в нашей базе: 12086
    размещено: 04.12.2025 , обновлено: 4.12.2025
  • 2-к квартира, Токарей, 26

    • 60.4 м2
    • 14/16 этаж
    • Состояние: хорошее
    10 790 000 ₽ (178600 ₽/м2)
    Просторная квартира в центре города с красивым панорамным видом. Большие комнаты, просторная кухня, потолки 2,8м, большая лоджия. В квартире ремонт от застройщика. Остается кухонный гарнитур с встроенной бытовой техникой. Удачное расположение дома, закрытая, охраняемая территория, детский сад, школа, в шаговой доступности магазины и остановка общественного транспорта. До проспекта Ленина 10 минут пешком. Один собственник, обременений нет. Документы готовы к сделке. ID объекта в нашей базе: 25790
    размещено: 02.12.2025 , обновлено: 3.12.2025

    2-к квартира, Татищева, 177

    • 58.1 м2
    • 16/23 этаж
    • Состояние: хорошее
    8 100 000 ₽ (139400 ₽/м2)
    Продам светлую 2-комнатная квартира 58,1 м² на 16 этаже в ЖК «Здоровье». Почему эта квартира — отличный выбор? Простор и свет: Целых 58,1 кв. м на 16-м этаже 23-этажного дома! Высокий этаж гарантирует много солнца, прекрасный вид из окон в сторону Верх-Исетского водохранилища и отсутствие уличного шума. Комфортная и безопасная среда: Закрытая территория дома — спокойствие и безопасность для Вас и Ваших детей. Собственная парковка во дворе — больше не нужно искать место для автомобиля. Развитая инфраструктура: на территории ЖК работает продуктовый магазин «Пятерочка». Во дворе — хорошая детская и спортивная площадки для активного отдыха. Возможность для творчества: Квартира с ремонтом от застройщика. Это Ваш чистый лист, чтобы воплотить самые смелые дизайнерские идеи и создать интерьер своей мечты, не переплачивая за старый или чужой ремонт. Удобный подъезд: В доме организовано ТСЖ, что гарантирует порядок и оперативное решение вопросов. На первом этаже дежурит консьерж, работают два грузопассажирских лифта. Эта квартира идеально подойдет для молодой семьи, пары или всех, кто хочет жить в спокойном, зеленом районе с развитой инфраструктурой, недалеко от центра Екатеринбурга. ДОКУМЕНТЫ ГОТОВЫ, БЫСТРЫЙ ВЫХОД НА СДЕЛКУ! ID объекта в нашей базе: 12568
    размещено: 23.11.2025 , обновлено: 1.12.2025

    2-к квартира, Отрадная, 1

    • 52 м2
    • 19/26 этаж
    • Состояние: удовлетворительное
    7 950 000 ₽ (152900 ₽/м2)
    Продается 2-х комнатная квартира в жилoм комплексе Сюжеты. Практичная планировка. Отдельные две комнаты и просторная кухня-столовая. В квартире выполнена предчистовая отделка. Это идеальное пространство для воплощения любыx жизненных сценариев. В жилом комплексе имеется: уютный двор с детской и спортивной площадкой, подземный паркинг и мягкиe холлы. B шaгe от жилищного комплекса ТPЦ «Рaдуга Паpк» c разнообразной инфраструктурой, a также удобные транспортные развязки, гарантирующие быстрое сообщение с центром города. Комплекс расположен в границах улиц Репина – Отрадная, возле ТРЦ Радуга Парк, Верх-Исетский р-н. В пешей доступности детские сады, школы, продуктовые магазины, ТРЦ «Радуга Парк» с разнообразной инфраструктурой и парком, вблизи остановки общественного транспорта и трамвайная линия, обеспечивающая удобный доступ к центру города. Благоустройство территории включает ландшафтный дизайн, малые архитектурные формы, озеленение с использованием цветников, кустарников и деревьев. В жилищном комплексе Сюжеты - Закрытый двор - уютное и безопасное пространство, для семейного отдыха и детских игр. Двор без машин, контроль доступа и видеонаблюдение. Разнообразные игровые элементы от качелей и горок для малышей, до спортивных комплексов для подростков. Волейбольное и футбольное поле, в зимнее время ледовой каток. вид из квартиры на Радуга-Парк Звоните ПРЯМО СЕЙЧАС, пока квартиру ВАШЕЙ мечты не купил кто-то другой. ID объекта в нашей базе: 948
    размещено: 14.11.2025 , обновлено: 22.11.2025

    2-к квартира, Отрадная, 1

    • 53 м2
    • 23/26 этаж
    • Состояние: удовлетворительное
    7 950 000 ₽ (150000 ₽/м2)
    Продается 2-х комнатная квартира в жилoм комплексе Сюжеты. Практичная планировка. Отдельные две комнаты и просторная кухня-столовая. В квартире выполнена предчистовая отделка. Это идеальное пространство для воплощения любыx жизненных сценариев. В жилом комплексе имеется: уютный двор с детской и спортивной площадкой, подземный паркинг и мягкиe холлы. B шaгe от жилищного комплекса ТPЦ «Рaдуга Паpк» c разнообразной инфраструктурой, a также удобные транспортные развязки, гарантирующие быстрое сообщение с центром города. Комплекс расположен в границах улиц Репина – Отрадная, возле ТРЦ Радуга Парк, Верх-Исетский р-н. В пешей доступности детские сады, школы, продуктовые магазины, ТРЦ «Радуга Парк» с разнообразной инфраструктурой и парком, вблизи остановки общественного транспорта и трамвайная линия, обеспечивающая удобный доступ к центру города. Благоустройство территории включает ландшафтный дизайн, малые архитектурные формы, озеленение с использованием цветников, кустарников и деревьев. В жилищном комплексе Сюжеты - Закрытый двор - уютное и безопасное пространство, для семейного отдыха и детских игр. Двор без машин, контроль доступа и видеонаблюдение. Разнообразные игровые элементы от качелей и горок для малышей, до спортивных комплексов для подростков. Волейбольное и футбольное поле, в зимнее время ледовой каток. вид из квартиры на Радуга-Парк Звоните ПРЯМО СЕЙЧАС, пока квартиру ВАШЕЙ мечты не купил кто-то другой. ID объекта в нашей базе: 947
    размещено: 14.11.2025 , обновлено: 1.12.2025

    2-к квартира, Отрадная, 1

    • 52 м2
    • 18/26 этаж
    • Состояние: удовлетворительное
    7 950 000 ₽ (152900 ₽/м2)
    Квартал «Сюжеты» находится в микрорайоне ВИЗ на пересечении улиц Отрадная и Репина.Торговые центры и супермаркеты; ТРЦ «Радуга Парк» с кинотеатром, детскими парками, кафе и ландшафтным парком для прогулок на свежем воздухе; Медицинские учреждения и аптеки; Салоны красоты; Фитнес-клубы; Отделения банков; Детские сады и школы. Транспортную доступность обеспечивают трамвайные и автобусные остановки, а путь до центра города на автомобиле займет 20 минут. Благоустройство территории ЖК «Сюжеты» включает детские площадки, воркаут-зону, а также беседки для отдыха. Зимой же площадка превращается в каток. Во дворе нет машин, для владельцев личного транспорта предусмотрен подземный паркинг с доступом на лифте. Зоны ожидания; Колясочные; Детские санузлы ID объекта в нашей базе: 943
    размещено: 12.11.2025 , обновлено: 23.11.2025

    2-к квартира, Крауля, 89/а

    • 72.3 м2
    • 17/29 этаж
    • Состояние: хорошее
    11 770 000 ₽ (162800 ₽/м2)
    Объект № 195535. Евро-трешка в знаковом доме - ТОП-локация ВИЗа! Грамотная планировка с кухней-гостиной и двумя изолированными спальнями. Супер-вид с 17 этажа на три стороны и гарантия, что перед окнами не вырастет очередной человейник. Окна во двор и на школы (48 и 171). Нет шума улицы и реально свежий воздух. Остается качественный кухонный гарнитур + стенка, встроенная техника (дух. шкаф, варочная, стиральная машина, посудомойка, холодильник) - немецкое производство. Также по договоренности можно оставить еще мебель- Заезжай и живи! С соседями сверху и снизу повезло (почти полная тишина), боковых нет (см планировку). На этаже всего 6 квартир. Позитивное комьюнити внутри всего дома. Рядом есть абсолютно все (см карту), до центра 20 мин прогулочным шагом. Все плюсы максимально развитой инфраструктуры района. Также для покупателя есть в продаже паркинг на первом этаже (подземная парковка с выходом из лифта) по спец.цене! Бонусом для покупателя - мастер-класс по большому теннису на площадке напротив дома от собственника! Документы готовы, один взрослый совершеннолетний собственник, без обременений, без использования МСК. Документы готовы. ***Гарантийный сертификат «Защита собственности» по данному объекту в подарок***
    размещено: 12.11.2025 , обновлено: 12.12.2025

    2-к квартира, Фролова, 19К2

    • 49.5 м2
    • 1/9 этаж
    • Состояние: хорошее
    7 255 000 ₽ (146600 ₽/м2)
    Продаётся уютная 2-х комнатная квартира в самом сердце города - идеальное предложение для тех, кто мечтает жить комфортно, спокойно и удобно, одновременно находясь в центре.✅ Удобная планировка с просторной гостиной и отдельной спальней. Комнаты правильной формы, утепленная лоджия, окна выходят на южную сторону.✅Качественный ремонт позволит сразу же заселяться и жить комфортно без дополнительных вложений. ✅ Развитая инфраструктура района: рядом остановки общественного транспорта, торговые центры, кафе, рестораны, аптеки, школы и детские сады, поликлиники, объекты культуры и спорта — всё необходимое находится в пешей доступности.✅ Удобная транспортная доступность позволит вам быстро добраться до любого уголка города.✅ Хорошее состояние подъезда и ухоженный двор создадут приятное впечатление от вашего нового дома.✅Достаточное количество парковочных мест около дома.✅ Тихие и доброжелательные соседи, проживающие более 10 лет в доме. Эта квартира идеально подойдет для тех, кто хочет насладиться всеми преимуществами проживания в одном из центральных районов города, при этом имея всё необходимое рядом. Здесь вы сможете организовать свою жизнь так, как мечтаете — спокойную семейную атмосферу или активную социальную жизнь с друзьями и близкими.Сделайте правильный выбор — приобретите квартиру своей мечты прямо сейчас! Звоните нам для консультации и записи на просмотр. Не упустите шанс стать обладателем прекрасного жилья в престижном районе нашего города! ID объекта в нашей базе: 18076
    размещено: 29.10.2025 , обновлено: 6.12.2025

    2-к квартира, Металлургов, 46а

    • 50.5 м2
    • 5/10 этаж
    • Состояние: хорошее
    6 900 000 ₽ (136600 ₽/м2)
    В продаже двухкомнатная квартира с функциональной планировкой в кирпичном доме.Изолированные комнаты, просторный коридор. Удачное расположение кухни, между гостиной и спальной. Просторная утепленная лоджия.Отличная звуко и теплоизоляция.Квартира чистая с косметическим ремонтом, готова к проживанию.Кирпичный дом. Хорошее местоположение.Наличие парковочных мест для автомобиля.Развитая инфраструктура. 10 минут до центра, 5 минут до ТЦ Мега.Идеальна для студентов. Рядом находится Радиотехникум, Колледж связи, Медицинская академия.Один взрослый собственник, быстрый выход на сделку.Успевайте приобрести одно из лучших предложений! ID объекта в нашей базе: 11801
    размещено: 27.10.2025 , обновлено: 10.12.2025

    2-к квартира, Токарей, 26

    • 62.1 м2
    • 6/16 этаж
    • Состояние: идеальное
    11 950 000 ₽ (192400 ₽/м2)
    Светлая 2-конатная квартира в ЖК «Татищев». Хороший дом, спокойные соседи, удобная планировка. Чистая продажа, без обременений, быстрый выход на сделку. О квартире:• Кухня 10 м2 - кухонный гарнитур «Лорена», встроенная техника: варочная панель, духовой шкаф, посудомоечная машина, вытяжка.• Спальня 17,4 м2 - кондиционер, шкаф-купе, мебель.• Вторая комната 11,6 м2 – под детскую, кабинет или гостиную (есть кондиционер и большой шкаф, наклейки на стене легко снимаются).• Санузел совмещённый + отдельный туалет с умывальником.• Просторный коридор с системами хранения.• Лоджия 10 м2 - панорамное остекление.В квартире остаётся:– Вся встроенная мебель и техника– Кухонный гарнитур «Лорена»– Два кондиционера Можно заехать и жить без вложений! О жилом комплексе:Современный ЖК «Татищев» с подземным паркингом и благоустроенной территорией.Рядом школы №1 и №163, детские сады №539, 562, 430, поликлиники, магазины, ТРЦ «Карнавал», «Новая больница», фитнес-центры, Верх-Исетский пляж.Удобный выезд на улицы Татищева, Токарей, Крылова, Мельникова.До центра города - 5 -10 минут езды.Звоните! Квартира полностью готова к продаже и ждёт новых хозяевДокументы готовы. Быстрый выход на сделку. ID объекта в нашей базе: 11833
    размещено: 17.10.2025 , обновлено: 8.12.2025

    2-к квартира, Репина, 109

    • 56.8 м2
    • 14/32 этаж
    • Состояние: удовлетворительное
    8 450 000 ₽ (148800 ₽/м2)
    Продается двухкомнатная квартира в современном жилом комплексе "Отрадный", расположенном в престижном районе города Екатеринбурга. Дом сдан. Застройщик Астон.Квартира отличается просторной планировкой и общей площадью 56.8 кв. метров. Находится на 14-м этаже, что обеспечивает великолепный вид на город. Квартира с отделкой "white box" — идеальный вариант для воплощения любых дизайнерских решений и создания уникального интерьера на ваш вкус.Жилой комплекс "Отрадный" предлагает жителям все необходимые условия для комфортной жизни: закрытая охраняемая территория, современные детские и спортивные площадки, а также наличие паркинга. Монолитно-каркасный тип дома и высота потолков 2.7 метра добавляют привлекательности жилой площади. Развитая инфраструктура района ВИЗ, близость транспортных развязок делают это предложение особенно интересным. Рядом с домом находятся торговые центры "Радуга Парк" и "Мега", где вы найдёте всё необходимое для комфортного шопинга и досуга. В шаговой доступности новая улица Архангела Михаила, а также лесопарковая зона, обеспечивающая свежий воздух и приятную атмосферу + объекты социальной и административной инфраструктуры, что делает проживание здесь ещё более удобным и приятным. Возможна покупка в ипотеку или с использованием материнского капитала. Все интересующие вас вопросы можете задать по телефону. ID объекта в нашей базе: 11901
    размещено: 15.10.2025 , обновлено: 7.12.2025

    2-к квартира, Шевелева, 7

    • 73 м2
    • 9/16 этаж
    • Состояние: хорошее
    12 350 000 ₽ (169200 ₽/м2)
    Продаётся oчень cвeтлая и простoрнaя 2-комнатная кваpтиpа ул. Шевелева, 7. Дом находится в пешей доступности от бизнес-квартала Екатеринбург-Сити, Центрального стадиона и Дома Молодежи, подходит именно для тех, кто любит жизнь, ценит комфорт, хочет каждый день быть в центре культурной и деловой жизни города. Рядом набережная городского пруда, Парк 22 Партсъезда, множество средних и высших учебных заведений, детские сады и школы. Удобная транспортная развязка - в шаговой доступности остановки общественного транспорта. Во дворе закрытая территория, есть детская и спортивная площадки. Важное преимущество – наличие подземного паркинга.Просторная квартира эргономичной планировки: большая кухня правильной формы позволяет разместить диван, комнаты по 19 м2 каждая дают волю фантазии на тему зонирования. Широкий коридор может удачно разместить вместительный шкаф-гардероб. А в ванной комнате есть окно, которое обеспечивает доступ в помещение свежего воздуха и естественного света. Квартира требует ремонта – чистая картина для нового дизайна! Хотите посмотреть или остались вопросы? Звоните. ID объекта в нашей базе: 4656
    размещено: 25.09.2025 , обновлено: 7.12.2025

    2-к квартира, Репина, 109

    • 60.2 м2
    • 31/32 этаж
    • Состояние: плохое
    9 350 000 ₽ (155300 ₽/м2)
    Отличная видовая квартира с функциональной планировкой, в которой вы сможете сделать ремонт и воплотить все свои мечты. Дом находится в развитом, приближенном к Центру города районе. В шаговой доступности ТРЦ Радуга Парк, ТЦ Мега и другие развлекательные центры Верх-Исетского района. Также рядом новая современная школа, детские сады, развитая транспортная развязка, позволяющая быстро добраться в любую точку нашего города. ID объекта в нашей базе: 3831
    размещено: 23.09.2025 , обновлено: 1.12.2025

    2-к квартира, Ключевская, 15

    • 53.5 м2
    • 7/18 этаж
    • Состояние: идеальное
    9 950 000 ₽ (186000 ₽/м2)
    Продам квартиру площадью 53,5 кв. м. с хорошим ремонтом. Вся мебель и техника остается и входит в стоимость квартиры. В прихожей: шкаф – купе. В ванной комнате: стиральная машина, бойлер для нагрева воды, раковина с тумбой, зеркало, пенал, а также смесители. На кухне: кухонный гарнитур Икея, варочная поверхность, духовой шкаф, посудомоечная машина, вытяжка, холодильник, обеденный стол, 4 стула, диван, тумба и телевизор. Спальня: гардеробная, 2х спальная кровать с матрацем, 2 тумбочки, комод, зеркало, стол, кресло. А так же останутся все потолочные светильники, шторы и гардины. В доме свое ТСЖ, есть видеонаблюдение и охрана, закрытая территория двора и детская площадка. Дом находиться вдали от шумных дорог, в то же время в шаговой доступности все виды транспорта: трамвай, троллейбус, автобус. Магазины, аптеки, банки, клиника, нотариус – все рядом. Один собственник, обременений и долгов нет, мат капитал не использовали на покупку, чистая продажа. Полный пакет документов, сопровождение и профессиональная поддержка сделки: -опытным агентом и юристом-помощь с ипотекой Гарантия безопасности сделки от агентства "БК_НЕДВИЖИМОСТЬ". ID объекта в нашей базе: 3150
    размещено: 22.09.2025 , обновлено: 5.11.2025

    2-к квартира, Крауля, 93

    • 63.9 м2
    • 5/10 этаж
    • Состояние: удовлетворительное
    8 150 000 ₽ (127500 ₽/м2)
    Продается 2х-комнатная квартира, общей площадью 63.9 кв.м., на 5 этаже, с функциональной планировкой (кухня, 2 изолированные комнаты, раздельный санузел, просторная прихожая, лоджия). Квартира очень теплая (кирпичные стены) , готова к проживанию, окна выходят во двор. Чистый подъезд, установлены счетчики на воду (ГВС/ХВС), электричество, свое ТСЖ. Во дворе большая детская и спортивная площадки, есть подземный паркинг и м/места для парковки. Расположение дома в районе с развитой инфраструктурой и транспортной доступностью, в шаговой доступности остановка общественного транспорта, детский сад, магазины, аптеки, больница, школа во дворе. Чистая продажа. Квартира без залогов и обременений, освобождена. ID объекта в нашей базе: 240
    размещено: 18.09.2025 , обновлено: 12.12.2025

    2-к квартира, Отрадная, 1

    • 53.4 м2
    • 17/25 этаж
    • Состояние: удовлетворительное
    7 550 000 ₽ (141400 ₽/м2)
    Прекрасная новая двухкомнатная квартира!Очень хорошее расположение, отличная транспортная развязка, развитая инфраструктура.Покупали за наличные, обременений нет, один собственник. ID объекта в нашей базе: 892
    размещено: 21.08.2025 , обновлено: 3.11.2025

    2-к квартира, Татищева, 49

    • 67.8 м2
    • 6/23 этаж
    • Состояние: идеальное
    11 700 000 ₽ (172600 ₽/м2)
    Продается 2х комнатная квартира в ЖК "Татищевский". У ЖК собственная закрытая, охраняемая территория с детскими площадками. Подземный паркинг. ЖК расположен в центральной части города. В шаговой доступности, все "блага" цивилизации. В квартире, новым собственникам, остается кухонный гарнитур с бытовой техникой, вместительный шкаф-купе. Квартира без залогов и обременений. Ипотека возможна. Торг после просмотра. ID объекта в нашей базе: 3442
    размещено: 09.07.2025 , обновлено: 13.12.2025

Новостройки Екатеринбург, мкр-н. ВИЗ

Приоритет

Увеличивает просмотры в 3 раза

Ваше объявление показывается в списке выше обычных объявлений. подключить