Продажа квартиры: Екатеринбург, ул. Агрономическая, 55, ЖК "Мирлеон" (Дом) (Вторчермет)
| Рынок: | строящееся жилье |
| Срок сдачи: | 2 квартал 2026 года |
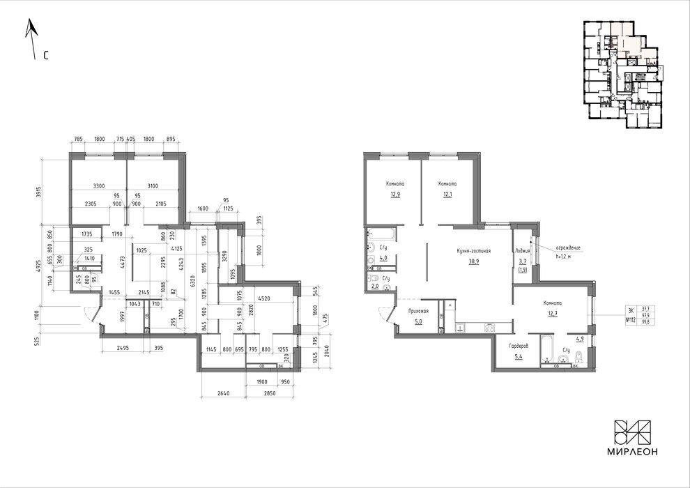
| Количество комнат: | 3 |
| Общая площадь: | 97 м2 |
| Жилая площадь: | 37.7 м2 |
| Площадь кухни: | 38.9 м2 |
| Этаж/Этажность дома: | 17 / 26 |
| Отделка: | Без отделки |
| Год постройки: | 2026 |
| Балкон/лоджия: | лоджия |
| Цена: | 12 901 000 ₽
|
| Коммунальные платежи: | оплачиваются отдельно |
