Продажа квартиры: Екатеринбург, ул. Агрономическая, 55, ЖК "Мирлеон" (Дом) (Вторчермет)
| Рынок: | строящееся жилье |
| Срок сдачи: | 2 квартал 2026 года |
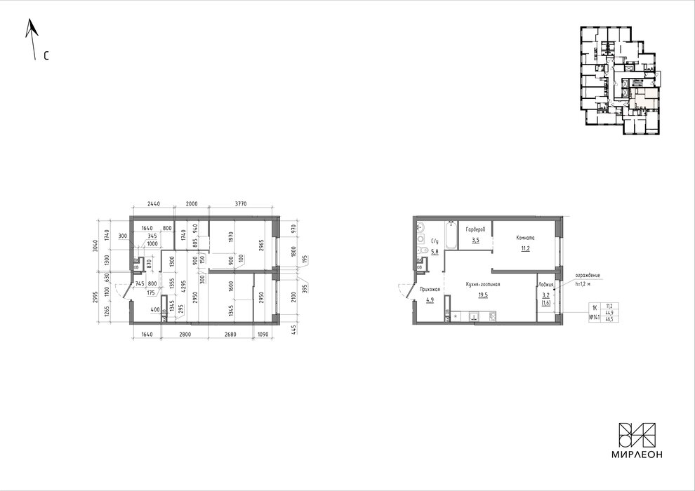
| Количество комнат: | 1 |
| Общая площадь: | 44.2 м2 |
| Жилая площадь: | 11.2 м2 |
| Площадь кухни: | 19.5 м2 |
| Этаж/Этажность дома: | 22 / 26 |
| Санузел: | совмещенный |
| Отделка: | Без отделки |
| Год постройки: | 2026 |
| Балкон/лоджия: | лоджия |
| Цена: | 7 558 200 ₽
|
| Коммунальные платежи: | оплачиваются отдельно |
