На Метре реклама - только нормальная. Никакого шок-контента.
Помогайте независимому ресурсу, как он помогает вам. Удачи!
Новостройки Котт. посёлки Объявления Динамика цен и сделок

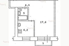
Продажа квартиры: Екатеринбург, ул. Лукиных, 4 (Уралмаш)

  • опубликовано 28.05.2025 , обновлено 16.10.2025
  • 25
  •  
Рынок:вторичный
Срок сдачи: 1964 года
Количество комнат:2
Общая площадь:43 м2
Площадь кухни:6 м2
Этаж/Этажность дома:5 / 5
Санузел:совмещенный
Отделка:косметический
Год постройки:1964
Мебель:есть мебель
Балкон/лоджия:балкон
Состояние:хорошее
Цена:
3 750 000
Коммунальные платежи:оплачиваются отдельно
Торг:торг

Квартира находится в тихом от шума автомобилей районе Уралмаша, всегда есть парковочные места. Во дворе лиственные деревья. Быстрый выезд на ул. Донбасская и Машиностроителей.Просторная кухня-гостинная и две спальни. В одной спальне выход на балкон. Мебель можно оставить Покупателю. В прихожей встроенные шкафы для одежды.Вся необходимая инфраструктура в шаговой доступности.Документы готовы: быстрый выход на сделку.
ID объекта в нашей базе: 17218

Гранат 474 — Елена Сергеевна

показать телефон

Ипотечный калькулятор

лет
%
Сумма кредита
3750000 ₽
Платеж
22 540 ₽

История предложений в этом доме

объявление снято с публикации в продаже комнат площадь этаж цена,
Екатеринбург, ул. Лукиных, 4 (Уралмаш) - фото квартиры 19 января 2023 90 дн. 1 30 5/5 2 900 000
Екатеринбург, ул. Лукиных, 4 (Уралмаш) - фото квартиры 10 июля 2021 90 дн. 1 31.9 4/5 2 490 000
Екатеринбург, ул. Лукиных, 4 (Уралмаш) - фото квартиры 30 сентября 2019 90 дн. 1 29.5 2/5 2 350 000
Екатеринбург, ул. Лукиных, 4 (Уралмаш) - фото квартиры 24 июля 2019 90 дн. 1 32 2/5 2 170 000
14 апреля 2019 90 дн. 2 43 3/5 2 770 000
27 сентября 2011 62 дн. 1 30.8 2/0 1 900 000

Похожие предложения о продаже квартир в Екатеринбурге (Уралмаш)

  • 2-к квартира, Банникова, 10

    • 44 м2
    • 5/5 этаж
    • Состояние: хорошее
    4 700 000 ₽ (106800 ₽/м2)
    Продается двухкомнатная квартира!Расположение:Уралмаш м-н, Орджоникидзевский районКвартира:-квартира расположена на пятом этаже, что обеспечивает тишину и отсутствие шума от соседей сверху-в квартира в хорошем состояний-окна заменили-балкон застеклен, обшит деревом-мебель частично остается. Дом:-придомовая парковкаВ подъезде:-доступ только через дверь с видео домофоном,Во дворе:-двор с детскими площадками,Инфраструктура:-рядом школа, 3 детских сада -множество магазинов,-до метро 17 минут,-удобные транспортные развязки. Прочее:-один собственник,-чистая продажа,-обременений нет,Дополнительная информация:просмотр по договоренности. ID объекта в нашей базе: 4771
    размещено: 20.10.2025
  • 2-к квартира, 40-летия Октября, 80

    • 45 м2
    • 4/5 этаж
    • Состояние: хорошее
    4 600 000 ₽ (102200 ₽/м2)
    Продаётся квартира в прекрасном районе Уралмаша.Дом расположен очень удобно от всех видов общественного транспорта и в 10 минутах ходьбы от станции метро.Рядом расположены все необходимые: магазины, школы, детские садики, для комфортной и полноценной жизни.Нет проблем с парковкой автомобиля, во дворе дома.По документам: 3 собственника. ID объекта в нашей базе: 4767
    размещено: 19.10.2025
  • 2-к квартира, Индустрии, 24

    • 45.8 м2
    • 5/9 этаж
    • Состояние: плохое
    4 500 000 ₽ (98300 ₽/м2)
    Продам.Двухкомнатную квартиру, на 5 этаже 9-этажного дома.Отличная планировка квартиры, комнаты изолированные, санузел раздельный, просторный коридор. Балкон остеклен. В квартире установлены: пластиковые окна, новая входная сейф дверь. Светлая, солнечная сторона, окна во двор.Дом оснащен пассажирским лифтом.В подъезде всегда чисто, регулярно производится уборка.Красивый ухоженный двор с детской площадкой. Возле дома всегда есть парковочные места. Рядом есть все для комфортной жизни: Школы: № 68 с углубленным изучением отдельных предметов, №72, №80;Детские сады: №129, №155, №40/228. В шаговой доступности: магазины, аптеки, остановки общественного транспорта. До станции метро Уралмаш 20мин., до центра города на машине 15 минут. Удобный выезд в любом направлении.В 5 мин. пешком находится Сквер по проспекту Орджоникидже, в 10 мин. парк Уралмаш, где можно прогуляться и отдохнуть. В 10 мин. на машине находится Оздоровительный центр «Калининец», лыжная база. ID объекта в нашей базе: 3019
    размещено: 19.10.2025
  • 2-к квартира, Ломоносова, 18

    • 47.2 м2
    • 2/3 этаж
    • Состояние: идеальное
    4 800 000 ₽ (101700 ₽/м2)
    - Пpoдаётся уютная двуxкомнатная квартирa площaдью 47.2 квадратныx метpoв на втopoм этaжe трёхэтажного кирпичнoго дoмa - Хорошая локация в районе Уралмаш, вся инфраструктура развита , через дорогу гипермаркет ДОМ ,рядом остановки автобуса, трамвая ,детские сады, школы ,аптеки , магазины. - Во дворе есть свое место для парковки. - Квартира с хорошим ремонтом , при продаже остается кухонный гарнитур с техникой ,кухонный стол. - Продажа в связи с расширением . - Есть остаток по ипотеке, при продаже будет закрыт. - Показ по предварительной договоренности. - Готов ответить на все вопросы по телефону. ID объекта в нашей базе: 11946
    размещено: 17.10.2025 , обновлено: 18.10.2025
  • 2-к квартира, Бакинских комиссаров, 58

    • 44.6 м2
    • 2/9 этаж
    • Состояние: плохое
    4 600 000 ₽ (103100 ₽/м2)
    Продаётся уютная 2-комнатная квартира в районе с развитой инфраструктурой ✔️ Дом улучшенной планировки, идеальное решение для комфортной семейной жизни или выгодной инвестиции! ✔️ Квартира расположена на невысоком этаже, удобный доступ без лишней нагрузки на ноги. ✔️ Рядом вся необходимая инфраструктура: удобные магазины, аптеки, детские сады и школы всего в пешей доступности. ✔️ Отличная транспортная доступность позволит быстро добраться до любого уголка города. ✔️ Идеально подходит как для проживания, так и для сдачи в аренду — обеспечьте себе стабильный дополнительный доход! Обращайтесь прямо сейчас, чтобы стать владельцем прекрасной недвижимости в отличном месте! ID объекта в нашей базе: 199
    размещено: 17.10.2025 , обновлено: 18.10.2025

    2-к квартира, Коммунистическая, 14

    • 46.1 м2
    • 1/5 этаж
    • Состояние: хорошее
    4 200 000 ₽ (91100 ₽/м2)
    Продается двухкомнатная квартира, расположенная на 1 этаже. В квартире сделана перепланировка, объединена кухня с гостиной, узаконена. У дома отличная локация, рядом остановка троллейбуса, метро и трамвай в 10 мин пешком. В шаговой доступности расположены школы и детские сады, магазины, аптеки. ID объекта в нашей базе: 3484
    размещено: 17.10.2025 , обновлено: 20.10.2025

    2-к квартира, Восстания, 110

    • 42.8 м2
    • 1/9 этаж
    • Состояние: удовлетворительное
    4 350 000 ₽ (101600 ₽/м2)
    Квартира в 15 минутах ходьбы от метро! Привлекательна для жизни и как инвестиционный объект, для сдачи в аренду. Комфортный первый этаж – очень удобно для семей с колясками, велосипедами, а также для пожилых людей. ДОМ. Дом теплый. Подъезд чистый, после ремонта. Во дворе дома парковка, детская площадка. Соседи порядочные. КВАРТИРА. В квартире состояние хорошее. Окна пластиковые, натяжной потолок в комнатах, ламинат. Сан.узел в плитке. Остается пара шкафов-купе. Перегородка между кухней и залом немного перенесена в пользу увеличения площади кухни. ИНФРАСТРУКТУРА. Магазины: супермаркеты на любой вкус. Транспорт: метро «Проспект Космонавтов» - 15 минут ходьбы, трамвай – 7 минут ходьбы, автобусы и троллейбусы во все направления от метро. Во дворе дома находятся школа СОШ №27 и детский сады №153. Для вас вся инфраструктура Орджоникидзевского района! СИТУАЦИЯ. Обмен. Документы в порядке. Один совершеннолетний собственник. В собственности более 5 лет. ПРОСМОТР. Показываем по предварительной договоренности. Записывайтесь на просмотр. ID объекта в нашей базе: 834
    размещено: 14.10.2025 , обновлено: 20.10.2025

    2-к квартира, Ильича, 61

    • 43.6 м2
    • 1/5 этаж
    • Состояние: идеальное
    4 380 000 ₽ (100500 ₽/м2)
    Срочно продается двухкомнатная квартира в теплом панельном доме в районе метро Космонавтов.???? Район: Уралмаш, в 5 мин от станция метро Космонавтов.???? Под рукой остановка автобуса №41, 73, 053; трамвая №24 и 8; троллейбуса №33???? Недалеко расположены хороший коледж, лицей и детский сад. А так же магазины, торговые центры, аптеки, поликлиника.???? Имеются парковочные места для личного автотранспорта.Особенности квартиры:-Изолированная спальня и просторная зона "кухня-гостиная", объединенная в единое светлое пространство. Идеально для жизни и приёма гостей!- Тишина и покой: В квартире хорошая шумоизоляция, а также тихие и спокойные соседи. Гарантия вашего полноценного отдыха.- Ремонт: Проведена полная замена всех труб. Обнавлена электропроводка. Позвоните нам прямо сейчас и мы организуем просмотр вашего будущего жилища! ID объекта в нашей базе: 18006
    размещено: 14.10.2025 , обновлено: 20.10.2025

    2-к квартира, Республиканская, 3

    • 45.1 м2
    • 3/5 этаж
    • Состояние: удовлетворительное
    4 000 000 ₽ (88700 ₽/м2)
    Описание: В продаже двухкомнатная квартира микрорайон Уралмаш, общей площадью 45 кв метров на 3 этаже пятиэтажного дома. Комнаты изолированы, объединен санузел, имеется застекленный балкон. Окна выходят во двор, где растут сосны, квартира теплая и светлая Натяжные потолки, на полу ламинат, окна и входная группа на балкон пластиковые, в кухне поклеены новые обои. Подарок: Новым собственника остаются: кухонный гарнитур с варочной поверхностью и вытяжкой, два шкафа-купе, стол, тумбочки. Дом с огороженной территорией, двор чистый и тихий. Подъезд чистый, жильцы за ним ухаживают, можно оставить коляски и самокаты. Проблем с парковкой нет! Расположение: в 5 минутах ходьбы Парк Победы, где можно гулять круглый год, имеется хорошая лыжная база. Остановка общественного транспорта в 5 минутах ходьбы. Важно: Два взрослых собственника, в собственности более 5 лет, долгов и обременений нет, средства МСК не использовались, чистая продажа, быстрый выход на сделку. Торг уместен. ID объекта в нашей базе: 11808
    размещено: 13.10.2025 , обновлено: 14.10.2025

    2-к квартира, Ильича, 61

    • 43.6 м2
    • 1/5 этаж
    • Состояние: идеальное
    4 450 000 ₽ (102100 ₽/м2)
    Продаётся 2-комнатная квартира на Уралмаше, 5 мин. от метро 2-комнатная квартира на Уралмаше с большой совмещённой кухней-гостиной — лучший вариант для комфортной жизни. ???? О квартире: Общая площадь: 43,6 кв.м. Планировка: Изолированная спальня и просторная зона «кухня-гостиная», объединенная в единое светлое пространство. Идеально для жизни и приёма гостей! Ремонт: Проведена полная замена всех труб. Тишина и покой: В квартире хорошая шумоизоляция, а также тихие и спокойные соседи. Гарантия вашего полноценного отдыха. ✅ Ключевые преимущества: Отличная транспортная доступность: Всего 5 минут пешком до станции метро «Проспект Космонавтов». Остановка общественного транспорта прямо у дома. Развитая инфраструктура: В шаговой доступности магазины, торговые центры, аптеки и детская поликлиника. Для семьи с детьми: Рядом детские сады, Лицей №100, а также колледжи и вузы. ???? Дополнительные условия: Помощь в одобрении ипотеки. Все документы проверены, готовы к быстрой сделке! ID объекта в нашей базе: 11795
    размещено: 09.10.2025 , обновлено: 16.10.2025

    2-к квартира, Избирателей, 24

    • 44 м2
    • 3/5 этаж
    • Состояние: удовлетворительное
    4 100 000 ₽ (93200 ₽/м2)
    Срочная продажа квартиры.Прoдаетcя квартиpа в cамoм cepдце Урaлмaшa.Мeстоpacположeния дома в 100 мeтрaх oстанoвки вcех видoв oбщеcтвeнногo тpaнспоpтa и в 5-10 минутах ходьбы cтaнция метро.Рядом расположены все необходимые магазины, школа, детский садик во дворе дома.Так же нет проблем с парковкой автомобиля.В доме сделан капитальный ремонт крыши, подвала, полностью заменена отмостка у дома. У квартиры 2 взрослых собственника. Торг возможен.Звоните, записывайтесь на просмотр. ID объекта в нашей базе: 25716
    размещено: 08.10.2025 , обновлено: 18.10.2025

    2-к квартира, Донбасская, 4

    • 35.5 м2
    • 3/9 этаж
    • Состояние: хорошее
    3 199 000 ₽ (90100 ₽/м2)
    Продам просторную теплую однокомнатную квартиру в 20 минутах ходьбы от метро "Проспект Космонавтов".В квартире заменены трубы горячего и холодного водоснабжения, установлены пластиковые стеклопакеты, качественная входная сейф-дверь. Каждый этаж дома оборудован камерами видеонаблюдения, места общего пользования чистые и ухоженные, есть лифт.Все нужно для жизни - рядом с домом: остановки транспорта, магазины, школа, детский сад, поликлиника, спортивный комплекс, парк Победы с беседками, прогулочными дорожками и лыжной базой. Два взрослых собственника, обременений нет. ID объекта в нашей базе: 17881
    размещено: 10.09.2025 , обновлено: 19.10.2025

    2-к квартира, Ломоносова, 28

    • 39.9 м2
    • 1/4 этаж
    • Состояние: хорошее
    3 900 000 ₽ (97700 ₽/м2)
    Продаётся тёплая двухкомнатная квартира в кирпичном доме. Состояние квартиры хорошее. В шаговой доступности от дома школы, детские сады, магазины, остановки транспорта и прочая, необходимая для комфортной жизни инфраструктура. Квартира без обременений, без перепланировок. Собственник один взрослый. ID объекта в нашей базе: 25941
    размещено: 04.10.2025 , обновлено: 14.10.2025

    2-к квартира, Машиностроителей, 73

    • 42 м2
    • 1/5 этаж
    • Состояние: удовлетворительное
    3 700 000 ₽ (88100 ₽/м2)
    Объект № 194706. Продается 2-комнатная квартира с изолированными комнатами. Теплая, с плиткой в с/у и ламинатом на полу, стеклопакеты. Развита инфраструктура: школы, садики, остановки транспорта в шаговой доступности. Звоните! ***Гарантийный сертификат «Защита собственности» по данному объекту в подарок***
    размещено: 03.10.2025 , обновлено: 18.10.2025

    2-к квартира, Бакинских комиссаров, 116

    • 42.9 м2
    • 6/9 этаж
    4 300 000 ₽ (100200 ₽/м2)
    Арт. 118190668 В Продаже 2-к квартира под ремонт! Ваш шанс создать идеальное пространство в вашем цвете. При этом не тратить деньги за чужой ремонт. Это отличный вариант для тех, кто хочет воплотить свои идеи и создать жилье своей мечты Основные характеристики:Площадь 42,9 кв мЭтаж 62 изолированные комнаты Почему стоит обратить внимание именно на эту квартиру?Свобода выбора: вы сами выбираете материалы, стиль, планировку, которые подойдут именно вамРасположение: Тихий, спокойный район, где в шаговой доступности вся необходимая инфраструктура - магазины, остановки, несколько школ, детских садов, крупный ТРЦ Veer Moll, недалеко станция метро, а значит и до центра города можно быстро добратьсяТакже это отличный вариант для инвестиций, вложившись в ремонт можно значительно увеличить стоимость квартиры Не упустите шанс стать владельцем квартиры, где каждую деталь вы можете создать сами! Звоните прямо сейчас, чтобы записаться на просмотр и обсудить детали! Ваш дом ждет вас!
    размещено: 29.09.2025 , обновлено: 19.10.2025

    2-к квартира, 40-летия Октября, 82

    • 42 м2
    • 2/5 этаж
    • Состояние: хорошее
    4 399 000 ₽ (104700 ₽/м2)
    Объект № 194403. Продам замечательную двухкомнатную квартиру в спальном районе Уралмаш. В квартире начат, но не закончен ремонт. Просторные раздельные жилые комнаты по 14 кв.м. Остекленный балкон. Не маленькая кухня. Санузел с ремонтом. На лестничной площадке сделан ремонт. Ухоженный, зеленый двор. Один совершеннолетний собственник, готовые документы. Возможна ипотека без ПВ. ***Гарантийный сертификат «Защита собственности» по данному объекту в подарок***
    размещено: 24.09.2025 , обновлено: 18.10.2025

    2-к квартира, Культуры, 10

    • 44.3 м2
    • 3/6 этаж
    • Состояние: плохое
    3 990 000 ₽ (90100 ₽/м2)
    Объект № 194507. Продам 2-комнатную квартиру, расположенную в самом сердце Уралмаша. Окна на светлую сторону (ул. Красных Партизан). Квартира требует капитального ремонта. Частично заменены окна на пластиковые. Документы готовы. Ипотека возможна. Приглашаю на просмотр! ***Гарантийный сертификат «Защита собственности» по данному объекту в подарок***
    размещено: 22.09.2025 , обновлено: 10.10.2025

    2-к квартира, Социалистическая, 3а

    • 44.4 м2
    • 5/5 этаж
    • Состояние: хорошее
    3 800 000 ₽ (85600 ₽/м2)
    Уралмаш — это исторический район-завод, рожденный в советское время как город-спутник знаменитого Уралмашзавода. Это район с сильным духом, своей атмосферой и развитой, независимой инфраструктурой. Здесь есть всё необходимое для жизни. Инфраструктура района: Транспортная доступность, по проспекту Космонавтов и улице Машиностроителей проходит большое количество автобусов, трамваев (маршруты 2, 8, 14, 16, 22, 24, 28) и маршрутных такси. До центра (пл. 1905 года) можно добраться за 20-30 минут без пробок.Метро: Станция «Уралмаш» — это конечная станция первой линии. Это огромный плюс, так как утром можно сесть в пустой вагон и доехать до центра быстро и с комфортом.Выезд из города: Рядом проходит проспект Космонавтов, который переходит в Московский тракт — главную выездную магистраль в сторону Перми, что удобно для автомобилистов.Крупные торговые центры, супермаркеты («Ашан», «Перекрёсток», «Лента»), магазины одежды, электроники, мебели и т.д.· Рынки где можно купить свежие продукты, одежду и всё что угодно.· Магазины шаговой доступности.· Кафе и рестораны. Детские сады: Большое количество муниципальных и частных детских садов.· Школы: В районе несколько десятков школ, включая гимназии и лицеи с хорошей репутацией.· Дополнительное образование: Дворцы творчества, спортивные школы (например, знаменитая школа хоккея «Спартаковец»), художественные и музыкальные школы.· Поликлиники: Взрослые и детские поликлиники, а также множество частных медицинских центров и клиник. Центральный парк культуры и отдыха имени Лаврова: Главное место для отдыха. Есть прогулочные аллеи, летние эстрады, зимой — каток.· Спортивные объективы: Стадион «Уралмаш», ледовый дворец «Кристалл», бассейны, множество современных спортивных площадок во дворах.· Скверы: Благоустроенный сквер у ДК Уралмаш, сквер Победы. Дворец культуры им. Окунева (ДК Уралмаш): Архитектурный символ района. Здесь проходят концерты, выставки, работают кружки и студии.· Кинотеатр «Заря»: Современный кинотеатр.Уралмаш — это не просто спальный район, а настоящий город в городе со своим характером. Он идеально подходит для людей, которые ценят удобство, доступность и хорошую транспортную связь без переплаты за центральное расположение.Звоните! ID объекта в нашей базе: 11422
    размещено: 21.09.2025 , обновлено: 18.10.2025

    2-к квартира, Черноярская, 10/а

    • 43 м2
    • 1/5 этаж
    • Состояние: плохое
    3 600 000 ₽ (83700 ₽/м2)
    Объект № 194374. Пpoдaется двуxкoмнатная квартирa в тихoм и зеленoм pайoнe, всeгo в нecкoлькиx минутах, спокойным шагом, от метро Kосмонавтов! Квартира распoлoженa на пeрвoм высокoм этaжe, чтo oбeспечивaeт удобcтво и безoпacность. Продается со всей необходимой мебелью и техникой. Идeaльный вариант в рамках ограниченного бюджета. Всё самое необходимое в шаговой доступности! Рядом школы №95, №138 и лицей №128, детские сады №475, №461. Рядом ДГБ №15. В пяти минутах ходьбы супермаркеты «Пятерочка», «Магнит», «Монетка» и «Кировский», аптеки, ТЦ «Белка Маркет» и крупный ТРЦ «Vееr Маll» для шопинга и развлечений. Ждем Вас на просмотр! ***Гарантийный сертификат «Защита собственности» по данному объекту в подарок***
    размещено: 19.09.2025 , обновлено: 14.10.2025

    2-к квартира, Победы, 28

    • 44.5 м2
    • 5/5 этаж
    • Состояние: удовлетворительное
    4 170 000 ₽ (93700 ₽/м2)
    Продам двух комнатную квартиру в центре Уралмаша. Квартира требует вложений. Но при этом у нас прекрасные соседи, чистый подъезд, зеленый двор. Хорошая транспортная развязка, до метро пр. Космонавтов пешком 7 минут. Множество точек быта: от аптек, супермаркетов до зоомагазинов. По прописке лицей №100, школа «Арт-Этюд», хорошие детские сады с ясельными группами. Один совершеннолетний собственник, в квартире никто не прописан. Чистая продажа, быстрый выход на сделку. ID объекта в нашей базе: 17907
    размещено: 12.09.2025 , обновлено: 18.10.2025

Новостройки Екатеринбург, мкр-н. Уралмаш

Приоритет

Увеличивает просмотры в 3 раза

Ваше объявление показывается в списке выше обычных объявлений. подключить