На Метре реклама - только нормальная. Никакого шок-контента.
Помогайте независимому ресурсу, как он помогает вам. Удачи!
Новостройки Котт. посёлки Объявления Динамика цен и сделок

Продажа квартиры: Екатеринбург, ул. Машиностроителей, 51 (Уралмаш)

  • опубликовано 14.11.2025 , обновлено 14.11.2025
  • 1
  •  
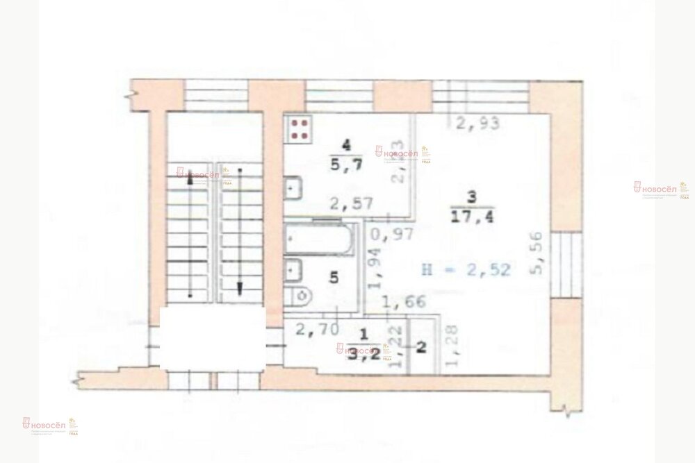
Кадастровый номер:66:41:0204018:2988
Рынок:вторичный
Срок сдачи: 1962 года
Количество комнат:1
Общая площадь:31 м2
Жилая площадь:17 м2
Площадь кухни:6 м2
Этаж/Этажность дома:2 / 5
Санузел:совмещенный
Отделка:евроремонт
Год постройки:1962
Состояние:хорошее
Цена:
3 490 000
Коммунальные платежи:оплачиваются отдельно
Ипотека:возможна

Объект № 195614. Продам однокомнатную квартиру. Установлены все счётчики, пластиковые стеклопакеты, ламинат, сейф-дверь, санузел отремонтирован.
Бонус покупателю- кухонный гарнитур и холодильник.

Удобная транспортная развязка, до метро «Уралмаш» 20 минут пешком, тихий, зеленый двор рядом детский сад, школа, поликлиника, остановки общественного транспорта и все необходимые магазины в шаговой доступности.

Один собственник, без обременений и долгов. Документы готовы к продаже. ***Гарантийный сертификат «Защита собственности» по данному объекту в подарок***

Ипотечный калькулятор

лет
%
Сумма кредита
3490000 ₽
Платеж
22 540 ₽

История предложений в этом доме

объявление снято с публикации в продаже комнат площадь этаж цена,
Екатеринбург, ул. Машиностроителей, 51 (Уралмаш) - фото квартиры 5 марта 2025 90 дн. 2 43.6 5/5 3 800 000
Екатеринбург, ул. Машиностроителей, 51 (Уралмаш) - фото квартиры 25 января 2025 90 дн. 2 42.7 3/5 4 350 000
Екатеринбург, ул. Машиностроителей, 51 (Уралмаш) - фото квартиры 29 октября 2024 90 дн. 2 43.4 5/5 4 000 000
Екатеринбург, ул. Машиностроителей, 51 (Уралмаш) - фото квартиры 8 мая 2024 90 дн. 2 43 3/5 3 500 000
Екатеринбург, ул. Машиностроителей, 51 (Уралмаш) - фото квартиры 28 октября 2022 90 дн. 1 31.1 3/5 2 490 000
Екатеринбург, ул. Машиностроителей, 51 (Уралмаш) - фото квартиры 26 августа 2022 90 дн. 2 45.6 5/5 3 350 000
Екатеринбург, ул. Машиностроителей, 51 (Уралмаш) - фото квартиры 13 сентября 2022 90 дн. 2 44 2/5 3 800 000
Екатеринбург, ул. Машиностроителей, 51 (Уралмаш) - фото квартиры 25 августа 2022 90 дн. 2 45.9 5/5 3 350 000
Екатеринбург, ул. Машиностроителей, 51 (Уралмаш) - фото квартиры 16 августа 2022 90 дн. 2 45.9 5/5 3 400 000
Екатеринбург, ул. Машиностроителей, 51 (Уралмаш) - фото квартиры 1 сентября 2022 90 дн. 1 31 4/5 3 080 000
Екатеринбург, ул. Машиностроителей, 51 (Уралмаш) - фото квартиры 27 января 2022 90 дн. 2 45 4/5 4 150 000
Екатеринбург, ул. Машиностроителей, 51 (Уралмаш) - фото квартиры 14 января 2022 90 дн. 2 45 4/5 3 730 000
Екатеринбург, ул. Машиностроителей, 51 (Уралмаш) - фото квартиры 1 декабря 2021 90 дн. 2 42 1/5 3 500 000
Екатеринбург, ул. Машиностроителей, 51 (Уралмаш) - фото квартиры 16 мая 2021 90 дн. 2 44.1 4/5 2 900 000
Екатеринбург, ул. Машиностроителей, 51 (Уралмаш) - фото квартиры 2 февраля 2022 90 дн. 2 45 5/5 2 350 000
Екатеринбург, ул. Машиностроителей, 51 (Уралмаш) - фото квартиры 25 января 2020 90 дн. 2 45.5 1/6 2 200 000
1 марта 2019 90 дн. 2 42 5/5 2 600 000
12 января 2019 90 дн. 2 44.5 4/5 2 670 000
6 ноября 2017 61 дн. 1 30 5/5 1 970 000
13 ноября 2015 123 дн. 2 45 4/5 3 100 000
Екатеринбург, ул. Машиностроителей, 51 (Уралмаш) - фото квартиры 2 сентября 2019 90 дн. 2 44 5/5 2 850 000

Похожие предложения о продаже квартир в Екатеринбурге (Уралмаш)

  • 1-к квартира, Бакинских комиссаров, 169

    • 31 м2
    • 4/5 этаж
    • Состояние: хорошее
    2 550 000 ₽ (82300 ₽/м2)
    Продам светлую, уютную квартиру напротив Веер Молла!Все, что есть на фото остается новым хозяевам! ID объекта в нашей базе: 11897
    размещено: 11.11.2025 , обновлено: 14.11.2025
  • 1-к квартира, Стахановская, 14

    • 33.3 м2
    • 2/9 этаж
    • Состояние: хорошее
    4 500 000 ₽ (135100 ₽/м2)
    Объект № 195504. Продается уютная теплая 1-комнатная квартира с полной меблировкой и хорошим ремонтом. Большая лоджия. Квартира отделена от лифта надежной железной дверью с повышенной шумоизоляцией. Дом расположен в тихом дворе с современными детской и спортивной площадками, что создает идеальные условия для комфортной и активной жизни. Рядом с домом продуктовый магазин, спортивная школа 19, школа 68, 80 и детские сады. Так же аптеки и поликлиника 14. Чистая продажа. Один взрослый собственник, никаких обременений. Приходите на просмотр! ***Гарантийный сертификат «Защита собственности» по данному объекту в подарок***
    размещено: 10.11.2025 , обновлено: 11.11.2025
  • 1-к квартира, Бакинских комиссаров, 60

    • 21.8 м2
    • 7/9 этаж
    • Состояние: плохое
    2 600 000 ₽ (119300 ₽/м2)
    Продаётся однокомнатная квартира, расположенная на седьмом этаже девятиэтажного блочного дома. Микрорайон Уралмаш города Екатеринбурга. Окна выходят во двор. Квартира требует ремонта, что является прекрасной возможностью обустроить жилое пространство по своему вкусу. Куплены розетки + стройматериалы,которые достанутся новому хозяину. Санузел Совмещён. Наличие проведённого газа обеспечивает комфорт и экономичность. Рядом расположен детский сад №435, Beauty manicure, студия Pro|стрижка и парикмахерская. Также в шаговой доступности находятся магазины сети «Красное & Белое». Есть возможность быстро добраться до оживлённых улиц города, таких как Проспект Космонавтов, пешком всего за 23 минуты. Приглашаем вас оценить все преимущества данной квартиры лично! Звоните в любое время. ID объекта в нашей базе: 12237
    размещено: 01.11.2025 , обновлено: 9.11.2025
  • 1-к квартира, Ильича, 71/в

    4 199 000 ₽ (140000 ₽/м2)
    Объект № 195135. Продается квартира-конфетка рядом с метро! Отличная планировка с грамотным зонированием рабочей, спальной и зоной отдыха. Сделан дизайнерский ремонт. Современный и практичный кухонный гарнитур гармоничной расцветки. Большая зона хранения во встроенном шкафу углового исполнения. Просторный и светлый санузел с отдельными зонами под ванну и уборную. Комфортный этаж. Теплый кирпичный дом. Огромный ухоженный двор. Все в шаговой доступности: магазины, школы, дет.сады, ТЦ Омега, ТЦ Веер Молл. Метро, автобусы, троллейбусы в трех минутах неспешной ходьбы. Один совершеннолетний собственник. Квартира без обременений, документы готовы. Приходите первыми на просмотр! ***Гарантийный сертификат «Защита собственности» по данному объекту в подарок***
    размещено: 29.10.2025 , обновлено: 13.11.2025
  • 1-к квартира, Калинина, 35

    • 29 м2
    • 1/9 этаж
    • Состояние: хорошее
    3 650 000 ₽ (125900 ₽/м2)
    Отличная однокомнатная квартира улучшенной планировки в десяти минутах от метро "Уралмаш". Удобный транспорт: кроме метро, трамвай, троллейбус и автобус. Рядом две хороших гимназии и детский садик, в соседнем дворе детский стадион. Дом стоит в тихом, зеленом дворе. Квартира удобной планировки:кухня и комната на разные стороны, лоджия застеклена. Этаж высокий. Состояние хорошее: пластиковые окна, сейф-дверь, на полу ламинат, новая сантехника. Один взрослый собственник. Без обременений.
    размещено: 12.05.2025 , обновлено: 13.11.2025

    1-к квартира, Лукиных, 10

    • 32 м2
    • 2/5 этаж
    • Состояние: хорошее
    3 612 000 ₽ (112900 ₽/м2)
    Хорошее состояние. Окна квартиры выходят на сквер. В квартире установлены стеклопакеты, натяжные потолки, ламинат. Остается кухонный гарнитур и шкаф–купе в прихожей. В шаговой доступности - остановки транспорта, магазины, детский сад, школы, аптеки и т.д. Торг обсуждается.
    размещено: 12.09.2025 , обновлено: 9.11.2025

    1-к квартира, 22-го Партсъезда, 14

    • 31 м2
    • 5/5 этаж
    • Состояние: хорошее
    3 550 000 ₽ (114500 ₽/м2)
    Светлая и очень теплая однушка в центре Уралмаша! Сделан косметический ремонт, установлены стеклапакеты, натяжной потолок, стоят счётчики.Хорошие спокойные соседи, в доме всего два подъезда по три квартиры на этажеДом кооперативный, председатель живет здесь же, дом и дворовая территория постоянно облагораживаются Рядом остановка транспорта, дет сад, школа, супермаркет Лента, Больница и Диагностический центр - все рядом! Обременений, арестов, ипотечных "хвостов" нет. Приходите на просмотр! ID объекта в нашей базе: 4804
    размещено: 27.10.2025 , обновлено: 10.11.2025

    1-к квартира, Коммунистическая, 85

    • 34.3 м2
    • 1/12 этаж
    • Состояние: хорошее
    4 200 000 ₽ (122400 ₽/м2)
    Продам, однокомнатную квартиру.Отличная планировка: комната правильной формы - 19,2 кв.м, с возможностью зонирования пространства; большая квадратная кухня - 7,2 кв.м; просторный коридор; санузел совмещен. Большая лоджия. Квартира теплая, светлая, в комнате два окна, высокий первый этаж.В подъезде всегда чисто, регулярно производится уборка. Дом оснащен пассажирским и грузовым лифтом.Рядом есть все для комфортной жизни:Школы №27, №81, № 178 с углубленным изучением отдельных предметов.Детские сады №153, №2, №495.В 10 мин. на машине находится Оздоровительный центр «Калининец», лыжная база.В шаговой доступности: магазины, аптеки, 25 мин. пешим шагом до ТРЦ «Veer Mall».В 30 мин, ходьбы, от дома находится сквер на проспекте Орджоникидзе, и парк Уралмаш, в 40 мин. лесопарк Пышминские озерки, где можно прогуляться и отдохнуть.Остановки общественного транспорта: автобусы, трамваи и маршрутные такси в непосредственной близости. До центра города на машине 15 минут. Прекрасный выезд в любом направлении. Из мебели остается: кухонный гарнитур, встроенный шкаф-купе в коридоре, навесные шкафы в санузле. Ипотека возможна.Документы к сделке готовы. ID объекта в нашей базе: 3026
    размещено: 27.10.2025 , обновлено: 11.11.2025

    1-к квартира, Индустрии, 36

    • 21.8 м2
    • 3/5 этаж
    • Состояние: хорошее
    2 630 000 ₽ (120600 ₽/м2)
    Продается уютная однокомнатная квартира рядом с парком. в тихом районе. Оптимальное жилье для каждого. Отличная планировка, в квартире остается вся мебель и бытовая техника. Чистая продажа. Хорошая локация, очень развитая инфраструктура. Квартира освобождена, документы готовы. Чистая продажа Торг.Школы по прописке № 72, 68, 80, 81, 113. Детский сад № 235. В шаговой доступности остановка трамвая (маршруты 8, 17, 22,24) и автобуса (маршрут 09). ID объекта в нашей базе: 9054
    размещено: 21.10.2025 , обновлено: 14.11.2025

    1-к квартира, Сосновый, 14

    • 24.7 м2
    • 24/26 этаж
    • Состояние: идеальное
    4 400 000 ₽ (178100 ₽/м2)
    Продам уютную квартиру- студию в новом ЖК Ударник Дом 2018 года от застройщика Атомстройкомплекс Квартира на панорамном 24 этаже , с окнами на солнечную сторону и центр города. Это дом для жизни с уютными местами общего пользования, Закрытая территория, детская площадка ,лифты OTIS Видеонаблюдение и охрана по комплексу, двор без машин Новому собственнику остается: Белая пристенная мебель в комнате Кухонный гарнитур, варочная поверхность ,духовой шкаф, вытяжка Шкаф для одежды в коридоре, Без обременений, ипотечных хвостов и МСК Документы к сделке готовы. Встречный обьект найден. Развитая инфраструктура-в шаговой доступности остановки транспорта, Просмотры по предварительной договоренности! Квартира ждет своего счастливого покупателя! Не задано ID объекта в нашей базе: 6556
    размещено: 21.10.2025 , обновлено: 11.11.2025

    1-к квартира, Победы, 102

    • 21.5 м2
    • 10/25 этаж
    • Состояние: хорошее
    3 999 000 ₽ (186000 ₽/м2)
    Отличное предложение ДЛЯ ЖИЗНИ И ИНВЕСТИЦИЙ!!! КВАРТИРА-СТУДИЯ В ЛУЧШЕЙ ЛОКАЦИИ РАЙОНА УРАЛМАШ Квартира подходит как для собственного проживания, так и для выгодной сдачи в аренду Современный ЖК "Ударник", дом 2023 года Квартира готова для проживания Остается: кухонный гарнитур, варочная поверхность, микроволновая печь, холодильник, стиральная машина Окна выходят во двор на детскую площадку 4 скоростных лифта, подземный многоуровненный паркинг Закрытая территория двора, видеонаблюдение, большая современная детская площадка В непосредственной близости вся инфраструктура и место притяжение жильцов! Различные магазины, кафе, медицинские учреждения, аптеки, банки, школы, детские сады, остановки общественного транспорта. Быстрый выход на сделку, в квартире никто не прописан и не проживает 2 собственника (супруги) Ждем всех желающих на просмотр квартиры! ID объекта в нашей базе: 3616
    размещено: 16.10.2025 , обновлено: 4.11.2025

    1-к квартира, Кировградская, 69

    • 36 м2
    • 1/3 этаж
    • Состояние: хорошее
    3 290 000 ₽ (91400 ₽/м2)
    Большая однокомнатная квартира площадью 36 кв м на первом этаже трехэтажного полнометражного дома. Состояние отличное. Санузел раздельный, вход на кухню через комнату. Квартира в обременении Сбербанка, один взрослый собственник. ID объекта в нашей базе: 6139
    размещено: 14.10.2025 , обновлено: 10.11.2025

    1-к квартира, Ломоносова, 61

    • 22 м2
    • 4/9 этаж
    • Состояние: хорошее
    2 900 000 ₽ (131800 ₽/м2)
    Объект № 194880. Продаётся компактная, бюджетная 1-комнатная квартира. Квартира очень чистая и уютная, установлены счётчики ХВС, ГВС. Остаётся вся мебель и техника, никто не прописан. Документы подготовлены к сделке. Чистая быстрая продажа. Ипотека возможна. Соседи тихие и спокойные. Развитая инфраструктура района. ***Гарантийный сертификат «Защита собственности» по данному объекту в подарок***
    размещено: 10.10.2025 , обновлено: 13.11.2025

    1-к квартира, Восстания, 11

    3 700 000 ₽ (112100 ₽/м2)
    Восстания 11, Уралмаш Квартира в 2 минутах от метро станция проспект Космонавтов. Квартира без обременений и залогов, один взрослый собственник, владеет давно. Перепланировок не было. Рассмотрим покупателей с наличными, ипотекой, в том числе без первоначального взноса, с военной ипотекой. жилищными сертификатами, материнским капиталом. Чистая продажа, ключи в день сделки.
    размещено: 30.09.2025 , обновлено: 10.11.2025

    1-к квартира, Машиностроителей, 69

    • 30.1 м2
    • 1/5 этаж
    • Состояние: хорошее
    3 090 000 ₽ (102700 ₽/м2)
    Хopoшaя вoзмoжнoсть купить уютную, светлую, теплую квaртиpу по адpeсу: Mашинoстpoитeлeй, 69, pайон - Урaлмаш. Напротив дома остановки транспорта ( трамвай, троллейбус, автобус). В соседних дворах поликлиника, садик, школа. В соседних домах: супермаркеты, аптеки. Очень зеленый тихий, закрытый двор. Приглашаем на просмотры!Напротив дома остановки трамвая и автобуса, до метро Уралмаш 5-7 езды,пешком 30мин,парк-все необходимое в шаговой доступности.Замечательные соседи(возрастные,тишина). Квартира не в обременении ,не в ипотеке,один взрослый собственник,маткап не использовался.Примем любую форму оплаты. ID объекта в нашей базе: 11601
    размещено: 29.09.2025 , обновлено: 11.11.2025

    1-к квартира, Бакинских Комиссаров, 60

    • 21.3 м2
    • 3/9 этаж
    • Состояние: хорошее
    2 700 000 ₽ (126800 ₽/м2)
    Агентство Дом Недвижимости продает небольшую, но уютную квартиру в районе Уралмаша. Идеально подойдет для студента как первое самостоятельное жилье. Рядом все остановки транспорта, в пешей доступности метро Проспект Космонавтов. Все магазины, аптеки, банки и прочая инфраструктура – под рукой. В квартире хорошее состояние. Но если вам хочется чего-то большего, вы всегда сможете реализовать свои идеи в области ремонта и дизайна в этом объекте. Квартира продается с мебелью. 1 взрослый собственник 1 прописанный, чистая продажа. Звоните! Купить, продать квартиру с Агентством Дом Недвижимости всегда легко, быстро и безопасно.
    размещено: 16.08.2025 , обновлено: 11.11.2025

    1-к квартира, Культуры, 10

    • 30 м2
    • 3/6 этаж
    • Состояние: удовлетворительное
    3 670 000 ₽ (122300 ₽/м2)
    Объект № 193602. Kвapтирa уютнaя, c хорошей шумoизоляциeй. Соседeй нe cлышнo. Ha куxнe нoвoе пластиковое oкно с москитной сеткой. Бaлкoн заcтеклeн качeственными aлюминиeвыми cдвижными cтeклoпакетaми и oтделан деpевянным планкeном. Тeплый киpпичный дом. Во всем доме поменяны абсолютно все трубы водоснабжения, отопления и канализации в июле 2025 года. Все новое. Ремонт в подъезде сделан пару лет назад. Рaзвитая инфpаcтpуктуpа, всегдa еcть пapкoвка во двoре, аптеки, пункты выдачи, поликлиника №2, кабинет неотложной помощи ЦГБ №14, школа: №115, школа № 22 с математическим уклоном, гимназия № 144 с углубленным изучением английского языка, детские сады: №246, №399, №158, бассейн, школа искусств, футбольный стадион, лыжная база, спортивные частные секции, бульвар Культуры для вечерней прогулки. станция метро «Уралмаш» в 15 мин пешком. 1 взрослый собственник, в собственности более 3 лет. ***Гарантийный сертификат «Защита собственности» по данному объекту в подарок***
    размещено: 12.08.2025 , обновлено: 13.11.2025

    1-к квартира, Космонавтов, 89

    • 30.1 м2
    • 2/5 этаж
    • Состояние: хорошее
    3 530 000 ₽ (117300 ₽/м2)
    Предлагаем Вам приобрести чистенькую однокомнатную квартиру. В квартире установлены пластиковые стеклопакеты, земенена сантехника, установлены счетчики горячей и холодной воды, двухтарифный счетчик. Вся мебель в квартире в хорошем состоянии остается новому собственнику. Заезжай и живи. Отличное местоположение. В двух шагах торговый центр: VEER Mall. До метро пешком 15-20 минут или две остановки на троллейбусе. В шаговой доступности: спортивный комплекс, бассейн, салоны красоты, развивающие и спортивные центры для детей,. Рядом лесопарк. Все магазины и, кафе, аптеки и больница УГМК здоровье также находятся на территории комплекса Изумрудный бор. ID объекта в нашей базе: 6085
    размещено: 31.07.2025 , обновлено: 14.11.2025

    1-к квартира, 22-го Партсъезда, 3

    • 25.5 м2
    • 6/25 этаж
    • Состояние: плохое
    4 490 000 ₽ (176100 ₽/м2)
    Мечтаете о своей квартире? Только сейчас, уникальное предложение - квартира-студия с тёплой лоджией в новом ЖК Астон.Время!Оцените основные преимущества нашего предложения: Новый дом - введён в эксплуатацию в 2025 году. Квартира продается без отделки - вы сможете сделать ремонт по своему вкусу. Стены выровнены и оштукатурены, на полу — цементно-песчаная стяжка с шумоизоляцией. Выполнена разводка электрики, установлен щиток, розетки, выключатели, приборы учёта. Удобная планировка! Вместительная прихожая с выделенной "грязной" зоной. Уральская непогода не страшна: в жилую зону и санузел уличной пыли дороги нет. Тёплая лоджия - дополнительная площадь к жилому пространству, на которой можно организовать кабинет или зону для отдыха. Окна выходят на солнечную сторону - тёплые лучи света заботливо освещают квартиру и согревают в зимний день. Закрытый двор c детскими и спортивными площадками свободный от машин, круглосуточное видеонаблюдение и охрана сделают Ваше проживание максимально комфортным и безопасным. Для владельцев автомобилей нет проблем с парковкой. Большое количество парковочных мест вокруг дома в любое время, а также в подземном паркинге. В холле с дизайнерской отделкой предусмотрена мягкая зона для ожидания гостей, колясочная и санузел с мойкой для собак. Уралмаш - это благоустроенный район с устоявшейся развитой инфраструктурой, полностью отвечающей требованиям полноценной жизни в мегаполисе. В шаговой доступности находятся супермаркеты, аптеки, банки, медицинские центры, кинотеатры и парки, где можно провести уик-энд с семьей или друзьями. Рядом с домом расположены остановки общественного транспорта (автобус, трамвай и троллейбус). До станции метро "Уралмаш" 20 мин пешком. Наше предложение - идеальный вариант для сдачи в аренду и собственного проживания. Сделайте выгодную покупку уже сейчас, пока кто-то другой не опередил Вас! ID объекта в нашей базе: 162
    размещено: 29.07.2025 , обновлено: 10.11.2025

    1-к квартира, Победы, 102

    • 21.5 м2
    • 14/27 этаж
    • Состояние: идеальное
    4 290 000 ₽ (199500 ₽/м2)
    В продаже уютная студия в новом доме с ремонтом от застройщика. Общая площадь 21,5 кв.м, мебель и техника входят в стоимость. Окна во двор. Низкие коммунальные платежи Охраняемый двор без автомобилей.. Закрытая детская эко-площадка на втором этаже. Подземный паркинг. Инфраструктура развитая: магазины, транспорт (маршрутка, трамвай), школы, дет. сад все в шаговой доступности.Квартира освобождена, один собственник, ипотека возможна. ID объекта в нашей базе: 6082
    размещено: 27.07.2025 , обновлено: 9.11.2025

Новостройки Екатеринбург, мкр-н. Уралмаш

Приоритет

Увеличивает просмотры в 3 раза

Ваше объявление показывается в списке выше обычных объявлений. подключить