На Метре реклама - только нормальная. Никакого шок-контента.
Помогайте независимому ресурсу, как он помогает вам. Удачи!
Новостройки Котт. посёлки Объявления Динамика цен и сделок

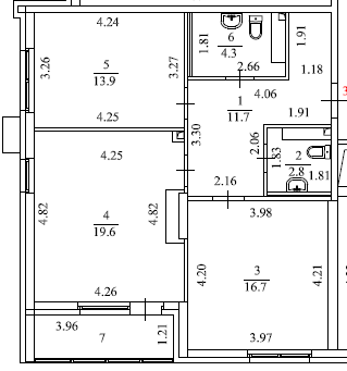
Продажа квартиры: Екатеринбург, ул. Татищева, 102 (ВИЗ)

  • опубликовано 5.02.2026 , обновлено 5.02.2026
  • 3
  •  
Рынок:вторичный
Срок сдачи: 2025 года
Количество комнат:2
Общая площадь:62 м2
Жилая площадь:27 м2
Площадь кухни:25 м2
Этаж/Этажность дома:6 / 8
Санузел:раздельный
Отделка:требует ремонта
Год постройки:2025
Балкон/лоджия:лоджия
Состояние:удовлетворительное
Цена:
10 980 000
Коммунальные платежи:оплачиваются отдельно
Ипотека:возможна

Продается квартира Евро-3 в 8-ми этажной секции, окна на разные стороны, прекрасный вид, закрытый двор, с этажа спуск на лифте в подземный паркинг, есть 2 парковочных места с электророзеткой, идеальное расположение дома с видовыми характеристиками, рядом транспорт, яхт клуб, прогулочная набережная и вся инфраструктура. Квартира без ипотек, без использования маткапа. Чистая продажа, документы готовы.
ID объекта в нашей базе: 602

Бизнес Контакт 22 — Наталья Раисовна

показать телефон

Ипотечный калькулятор

лет
%
Сумма кредита
10980000 ₽
Платеж
22 540 ₽

Актуальные предложения в этом доме

  • 2-к квартира, Татищева, 102

    • 62 м2
    • 6/9 этаж
    • Состояние:
    12 900 000 ₽ (208100 ₽/м2)
    Продается квартира Евро-3 в низкой секции, дом сдан, право собственности зарегистрировано, квартира без ипотек, без мск. Прекрасное расположение дома, вид на набережную пруда, рядом общественный транспорт и вся необходимая инфраструктура. Есть подземный паркинг на два автомобиля с электророзеткой. Чистая продажа, документы готовы. Звоните с удовольствием отвечу на все вопросы. Торг обсуждается при просмотре! ID объекта в нашей базе: 572
    размещено: 16.01.2026 , обновлено: 31.01.2026

История предложений в этом доме

объявление снято с публикации в продаже комнат площадь этаж цена,
Екатеринбург, ул. Татищева, 102 (ВИЗ) - фото квартиры 17 января 2026 90 дн. 2 62 6/9 12 900 000
Екатеринбург, ул. Татищева, 102 (ВИЗ) - фото квартиры 17 декабря 2025 90 дн. 2 62 6/9 12 900 000
Екатеринбург, ул. Татищева, 102 (ВИЗ) - фото квартиры 17 октября 2025 90 дн. 2 62 6/9 13 200 000
Екатеринбург, ул. Татищева, 102 (ВИЗ) - фото квартиры 8 октября 2025 90 дн. 2 62 6/9 13 200 000
Екатеринбург, ул. Татищева, 102 (ВИЗ) - фото квартиры 27 октября 2025 90 дн. 3 107.6 8/14 15 900 000
17 сентября 2024 90 дн. 2 68.29 10/12 12 053 185
17 сентября 2024 90 дн. 2 56.6 9/12 10 103 100
17 сентября 2024 90 дн. 2 68.29 9/12 11 984 895
17 сентября 2024 90 дн. 2 56.6 8/12 10 046 500
17 сентября 2024 90 дн. 2 68.29 8/12 11 916 605
21 июля 2024 90 дн. 2 56.6 7/12 9 989 900
17 сентября 2024 90 дн. 2 68.29 7/12 11 848 315
15 августа 2024 90 дн. 2 56.6 6/12 9 933 300
17 июля 2024 90 дн. 2 57.9 6/12 9 582 450
17 сентября 2024 90 дн. 2 68.29 6/12 11 780 025
11 сентября 2024 90 дн. 2 56.6 2/12 9 706 900
17 сентября 2024 90 дн. 2 68.29 2/12 11 370 285
10 сентября 2024 90 дн. 3 85.4 2/12 13 664 000
17 сентября 2024 90 дн. 2 63 2/12 10 741 500
17 сентября 2024 90 дн. 2 56.6 10/12 10 159 700
17 июля 2024 90 дн. 3 79.8 8/12 13 406 400
17 сентября 2024 90 дн. 2 57.8 2/12 9 797 100
17 сентября 2024 90 дн. 2 57.3 2/12 9 253 950
25 мая 2024 90 дн. 2 68.29 12/12 12 189 765
27 августа 2024 90 дн. 2 56.6 11/12 10 216 300
17 сентября 2024 90 дн. 2 68.29 11/12 12 121 475

Похожие предложения о продаже квартир в Екатеринбурге (ВИЗ)

  • 2-к квартира, Викулова, 24

    • 69 м2
    • 16/18 этаж
    • Состояние: плохое
    12 800 000 ₽ (185500 ₽/м2)
    Жилой комплекс «ТАКТИКА» расположен в границах улиц Татищева, Викулова и Венгерских Коммунаров, адрес Викулова, 24, вблизи Акватории пруда Верх-Исетского района. Дом повышенного комфорта предлагает: современный и безопасный двор, ландшафтный дизайн, пространство для отдыха на крыше и фитнес клуб с бассейном. Максимальное удобство и доступность городской инфраструктуры, остановки общественного транспорта, трамвайная линия. Благодаря удобному расположению остановок, вы сможете сэкономить время на поездках и легче планировать свои маршруты. Благоустройство.Закрытый двор комплекса, создает место безопасности и удобства, созданное для семейного отдыха и детских игр. Среди элементов — веревка альпиниста, балансировочные столбики, змейка и подвесной гамак. Есть детские карусели и деревянные качели на любой вкус: классические и качели-гамаки. Двор полностью свободен от машин, что гарантирует безопасность и спокойствие для всех его обителей. Для взрослых во дворе воркаут-зона с кардио-тренажёрами, силовой и атлетический комплекс. А также настольный теннис и пространство для йоги на открытом воздухе. В комплеске размещен фитнес-центр с бассейном. В 5 минутах от жилищного комплекса 4 школы, ещё 3 — в 10 минутах, в том числе школа №1, построенная в 2019 году по последнему слову техники. Рядом 7 садиков, среди них два премиальных детских сада «Согласие», 15 учреждений дополнительного образования, например, школа программирования «Алгоритмика» и Международная школа скорочтения. В 10 минутах ходьбы — детская поликлиника №11, «Новая больница» и «Детский доктор». В 15 минутах езды горбольницы №41, №40 и центральная городская больница №2, в радиусе 1 км медицинские центры «Бонум», «Шанс», «Панацея», «Хеликс» и «Парацельс». Особенная архитектура. Холл жилого комплекса выполнен в элегантных и минималистичных тонах, где гармонично сочетаются керамогранит и декоративная штукатурка. Системы видеонаблюдения охватывают общие зоны, включая входные группы, подъезды и дворовую территории, что позволяет контролировать происходящее в реальном времени. Служба мониторинга активно следит за ситуацией и моментально реагирует на любые происшествия, что обеспечивает дополнительный уровень защиты и спокойствия для всех жильцов. В доме предусмотрен подземный одноуровневый паркинг. Отделка.Улучшенная шумоизоляция сохранит в вашей квартире тишину и спокойствие от внешних звуков и соседних помещений. Автоматическая телеметрия позволит забыть о хлопотах по сбору показаний счетчиков для коммунальных платежей. Система отопления с повышенной теплоотдачей обеспечит быстрое и равномерное прогревание помещения, создавая комфортный микроклимат в любое время года. Армированный 5-камерный профиль окон с режимом микропроветривания системы REHAU эффективно удержит тепло и предотвратит потерю энергии. Премиальные и технологичные лифты KOYO обеспечат быструю и бесперебойную работу, что значительно повысит удобство в перемещения внутри комплекса, минимизируя ожидание жителей. Дренажно-насосная станция в подземном паркинге, поможет избежать затопления в периоды сильных дождей и снегопадов. Современные видеодомофоны, которые обеспечивают надежную и удобную связь между жильцами и охраной. Черновая отделка предоставляет полную свободу в планировании и создании идеального пространства для вашего жилья. Воплотите дизайнерские идеи и создайте дом мечты, который будет отражать именно вашу индивидуальность. Готовы показать квартиру в удобное для вас время. Звоните, чтобы задать вопросы и договориться о просмотре! ID объекта в нашей базе: 998
    размещено: 05.02.2026 , обновлено: 5.02.2026
  • 2-к квартира, Викулова, 24

    • 68.7 м2
    • 17/18 этаж
    • Состояние: плохое
    12 800 000 ₽ (186300 ₽/м2)
    Жилой комплекс «ТАКТИКА» расположен в границах улиц Татищева, Викулова и Венгерских Коммунаров, адрес Викулова, 24, вблизи Акватории пруда Верх-Исетского района. Дом повышенного комфорта предлагает: современный и безопасный двор, ландшафтный дизайн, пространство для отдыха на крыше и фитнес клуб с бассейном. Максимальное удобство и доступность городской инфраструктуры, остановки общественного транспорта, трамвайная линия. Благодаря удобному расположению остановок, вы сможете сэкономить время на поездках и легче планировать свои маршруты. Благоустройство.Закрытый двор комплекса, создает место безопасности и удобства, созданное для семейного отдыха и детских игр. Среди элементов — веревка альпиниста, балансировочные столбики, змейка и подвесной гамак. Есть детские карусели и деревянные качели на любой вкус: классические и качели-гамаки. Двор полностью свободен от машин, что гарантирует безопасность и спокойствие для всех его обителей. Для взрослых во дворе воркаут-зона с кардио-тренажёрами, силовой и атлетический комплекс. А также настольный теннис и пространство для йоги на открытом воздухе. В комплеске размещен фитнес-центр с бассейном. В 5 минутах от жилищного комплекса 4 школы, ещё 3 — в 10 минутах, в том числе школа №1, построенная в 2019 году по последнему слову техники. Рядом 7 садиков, среди них два премиальных детских сада «Согласие», 15 учреждений дополнительного образования, например, школа программирования «Алгоритмика» и Международная школа скорочтения. В 10 минутах ходьбы — детская поликлиника №11, «Новая больница» и «Детский доктор». В 15 минутах езды горбольницы №41, №40 и центральная городская больница №2, в радиусе 1 км медицинские центры «Бонум», «Шанс», «Панацея», «Хеликс» и «Парацельс». Особенная архитектура. Холл жилого комплекса выполнен в элегантных и минималистичных тонах, где гармонично сочетаются керамогранит и декоративная штукатурка. Системы видеонаблюдения охватывают общие зоны, включая входные группы, подъезды и дворовую территории, что позволяет контролировать происходящее в реальном времени. Служба мониторинга активно следит за ситуацией и моментально реагирует на любые происшествия, что обеспечивает дополнительный уровень защиты и спокойствия для всех жильцов. В доме предусмотрен подземный одноуровневый паркинг. Отделка.Улучшенная шумоизоляция сохранит в вашей квартире тишину и спокойствие от внешних звуков и соседних помещений. Автоматическая телеметрия позволит забыть о хлопотах по сбору показаний счетчиков для коммунальных платежей. Система отопления с повышенной теплоотдачей обеспечит быстрое и равномерное прогревание помещения, создавая комфортный микроклимат в любое время года. Армированный 5-камерный профиль окон с режимом микропроветривания системы REHAU эффективно удержит тепло и предотвратит потерю энергии. Премиальные и технологичные лифты KOYO обеспечат быструю и бесперебойную работу, что значительно повысит удобство в перемещения внутри комплекса, минимизируя ожидание жителей. Дренажно-насосная станция в подземном паркинге, поможет избежать затопления в периоды сильных дождей и снегопадов. Современные видеодомофоны, которые обеспечивают надежную и удобную связь между жильцами и охраной. Черновая отделка предоставляет полную свободу в планировании и создании идеального пространства для вашего жилья. Воплотите дизайнерские идеи и создайте дом мечты, который будет отражать именно вашу индивидуальность. Готовы показать квартиру в удобное для вас время. Звоните, чтобы задать вопросы и договориться о просмотре! ID объекта в нашей базе: 997
    размещено: 05.02.2026 , обновлено: 5.02.2026
  • 2-к квартира, Викулова, 24

    • 72.2 м2
    • 8/25 этаж
    • Состояние: плохое
    12 300 000 ₽ (170400 ₽/м2)
    Жилой комплекс «ТАКТИКА» расположен в границах улиц Татищева, Викулова и Венгерских Коммунаров, адрес Викулова, 24, вблизи Акватории пруда Верх-Исетского района. Дом повышенного комфорта предлагает: современный и безопасный двор, ландшафтный дизайн, пространство для отдыха на крыше и фитнес клуб с бассейном. Максимальное удобство и доступность городской инфраструктуры, остановки общественного транспорта, трамвайная линия. Благодаря удобному расположению остановок, вы сможете сэкономить время на поездках и легче планировать свои маршруты. Благоустройство.Закрытый двор комплекса, создает место безопасности и удобства, созданное для семейного отдыха и детских игр. Среди элементов — веревка альпиниста, балансировочные столбики, змейка и подвесной гамак. Есть детские карусели и деревянные качели на любой вкус: классические и качели-гамаки. Двор полностью свободен от машин, что гарантирует безопасность и спокойствие для всех его обителей. Для взрослых во дворе воркаут-зона с кардио-тренажёрами, силовой и атлетический комплекс. А также настольный теннис и пространство для йоги на открытом воздухе. В комплеске размещен фитнес-центр с бассейном. В 5 минутах от жилищного комплекса 4 школы, ещё 3 — в 10 минутах, в том числе школа №1, построенная в 2019 году по последнему слову техники. Рядом 7 садиков, среди них два премиальных детских сада «Согласие», 15 учреждений дополнительного образования, например, школа программирования «Алгоритмика» и Международная школа скорочтения. В 10 минутах ходьбы — детская поликлиника №11, «Новая больница» и «Детский доктор». В 15 минутах езды горбольницы №41, №40 и центральная городская больница №2, в радиусе 1 км медицинские центры «Бонум», «Шанс», «Панацея», «Хеликс» и «Парацельс». Особенная архитектура. Холл жилого комплекса выполнен в элегантных и минималистичных тонах, где гармонично сочетаются керамогранит и декоративная штукатурка. Системы видеонаблюдения охватывают общие зоны, включая входные группы, подъезды и дворовую территории, что позволяет контролировать происходящее в реальном времени. Служба мониторинга активно следит за ситуацией и моментально реагирует на любые происшествия, что обеспечивает дополнительный уровень защиты и спокойствия для всех жильцов. В доме предусмотрен подземный одноуровневый паркинг. Отделка.Улучшенная шумоизоляция сохранит в вашей квартире тишину и спокойствие от внешних звуков и соседних помещений. Автоматическая телеметрия позволит забыть о хлопотах по сбору показаний счетчиков для коммунальных платежей. Система отопления с повышенной теплоотдачей обеспечит быстрое и равномерное прогревание помещения, создавая комфортный микроклимат в любое время года. Армированный 5-камерный профиль окон с режимом микропроветривания системы REHAU эффективно удержит тепло и предотвратит потерю энергии. Премиальные и технологичные лифты KOYO обеспечат быструю и бесперебойную работу, что значительно повысит удобство в перемещения внутри комплекса, минимизируя ожидание жителей. Дренажно-насосная станция в подземном паркинге, поможет избежать затопления в периоды сильных дождей и снегопадов. Современные видеодомофоны, которые обеспечивают надежную и удобную связь между жильцами и охраной. Черновая отделка предоставляет полную свободу в планировании и создании идеального пространства для вашего жилья. Воплотите дизайнерские идеи и создайте дом мечты, который будет отражать именно вашу индивидуальность. Готовы показать квартиру в удобное для вас время. Звоните, чтобы задать вопросы и договориться о просмотре! ID объекта в нашей базе: 996
    размещено: 05.02.2026 , обновлено: 5.02.2026
  • 2-к квартира, Викулова, 24

    • 72.7 м2
    • 7/26 этаж
    • Состояние: плохое
    13 600 000 ₽ (187100 ₽/м2)
    Жилой комплекс «ТАКТИКА» - Это Дом повышенного комфорта: современный и безопасный двор, ландшафтный дизайн, пространство для отдыха на крыше и фитнес клуб с бассейном, вблизи Акватории пруда Верх-Исетского района. Максимальное удобство и доступность городской инфраструктуры, и удобное расположение остановок общественного транспорта Благоустройство. Закрытый двор комплекса, для семейного отдыха и детских игр. Есть детские карусели и деревянные качели на любой вкус: классические и качели-гамаки, веревка альпиниста, балансировочные столбики, змейка и подвесной гамак. Для взрослых так же есть все для активного и пассивного отдыха. В комплексе размещен фитнес-центр с бассейном. В 5 минутах от ЖК 4 школы, а так же новая современная школа №1. Рядом 7 детских садов, среди них два премиальных детских сада «Согласие». 15 учреждений дополнительного образования. В 10 минутах ходьбы — детская поликлиника № 11, «Новая больница» и «Детский доктор». В 15 минутах езды горбольницы № 41, № 40 и центральная городская больница №2, в радиусе 1 км медицинские центры «Бонум», «Шанс», «Панацея», «Хеликс» и «Парацельс». Особенная архитектура. Холл жилого комплекса выполнен в элегантных и минималистичных тонах. Служба мониторинга. В доме предусмотрен подземный одноуровневый паркинг. Отделка. Улучшенная шумоизоляция. Автоматическая телеметрия. Система отопления с повышенной теплоотдачей. Армированный 5-камерный профиль окон с режимом микропроветривания системы REHAU. Премиальные и технологичные лифты KOYO. Дренажно-насосная станция в подземном паркинге. Современные видеодомофоны. Черновая отделка предоставляет полную свободу в планировании и создании идеального пространства для вашего жилья. Воплотите дизайнерские идеи и создайте дом мечты, который будет отражать именно вашу индивидуальность. Готовы показать квартиру в удобное для вас время. Звоните, чтобы задать вопросы и договориться о просмотре! ID объекта в нашей базе: 991
    размещено: 03.02.2026 , обновлено: 4.02.2026
  • 2-к квартира, Викулова, 24

    • 70.6 м2
    • 13/25 этаж
    • Состояние: плохое
    13 300 000 ₽ (188400 ₽/м2)
    Жилой комплекс «ТАКТИКА» расположен в границах улиц Татищева, Викулова и Венгерских Коммунаров, адрес Викулова, 24, вблизи Акватории пруда Верх-Исетского района. Дом повышенного комфорта предлагает: современный и безопасный двор, ландшафтный дизайн, пространство для отдыха на крыше и фитнес клуб с бассейном. Максимальное удобство и доступность городской инфраструктуры, остановки общественного транспорта, трамвайная линия. Благодаря удобному расположению остановок, вы сможете сэкономить время на поездках и легче планировать свои маршруты. Благоустройство. Закрытый двор комплекса, создает место безопасности и удобства, созданное для семейного отдыха и детских игр. Среди элементов — веревка альпиниста, балансировочные столбики, змейка и подвесной гамак. Есть детские карусели и деревянные качели на любой вкус: классические и качели-гамаки. Двор полностью свободен от машин, что гарантирует безопасность и спокойствие для всех его обителей. Для взрослых во дворе воркаут-зона с кардио-тренажёрами, силовой и атлетический комплекс. А также настольный теннис и пространство для йоги на открытом воздухе. В комплеске размещен фитнес-центр с бассейном. В 5 минутах от жилищного комплекса 4 школы, ещё 3 — в 10 минутах, в том числе школа №1, построенная в 2019 году по последнему слову техники. Рядом 7 садиков, среди них два премиальных детских сада «Согласие», 15 учреждений дополнительного образования, например, школа программирования «Алгоритмика» и Международная школа скорочтения. В 10 минутах ходьбы — детская поликлиника №11, «Новая больница» и «Детский доктор». В 15 минутах езды горбольницы №41, №40 и центральная городская больница №2, в радиусе 1 км медицинские центры «Бонум», «Шанс», «Панацея», «Хеликс» и «Парацельс». Особенная архитектура. Холл жилого комплекса выполнен в элегантных и минималистичных тонах, где гармонично сочетаются керамогранит и декоративная штукатурка. Системы видеонаблюдения охватывают общие зоны, включая входные группы, подъезды и дворовую территории, что позволяет контролировать происходящее в реальном времени. Служба мониторинга активно следит за ситуацией и моментально реагирует на любые происшествия, что обеспечивает дополнительный уровень защиты и спокойствия для всех жильцов. В доме предусмотрен подземный одноуровневый паркинг. Отделка. Улучшенная шумоизоляция сохранит в вашей квартире тишину и спокойствие от внешних звуков и соседних помещений. Автоматическая телеметрия позволит забыть о хлопотах по сбору показаний счетчиков для коммунальных платежей. Система отопления с повышенной теплоотдачей обеспечит быстрое и равномерное прогревание помещения, создавая комфортный микроклимат в любое время года. Армированный 5-камерный профиль окон с режимом микропроветривания системы REHAU эффективно удержит тепло и предотвратит потерю энергии. Премиальные и технологичные лифты KOYO обеспечат быструю и бесперебойную работу, что значительно повысит удобство в перемещения внутри комплекса, минимизируя ожидание жителей. Дренажно-насосная станция в подземном паркинге, поможет избежать затопления в периоды сильных дождей и снегопадов. Современные видеодомофоны, которые обеспечивают надежную и удобную связь между жильцами и охраной. Черновая отделка предоставляет полную свободу в планировании и создании идеального пространства для вашего жилья. Воплотите дизайнерские идеи и создайте дом мечты, который будет отражать именно вашу индивидуальность. Готовы показать квартиру в удобное для вас время. Звоните, чтобы задать вопросы и договориться о просмотре! ID объекта в нашей базе: 981
    размещено: 02.02.2026 , обновлено: 2.02.2026

    2-к квартира, Викулова, 24

    • 71 м2
    • 17/18 этаж
    • Состояние: удовлетворительное
    13 500 000 ₽ (190100 ₽/м2)
    Жилой комплекс «ТАКТИКА» расположен в границах улиц Татищева, Викулова и Венгерских Коммунаров, адрес Викулова, 24, вблизи Акватории пруда Верх-Исетского района. Дом повышенного комфорта предлагает: современный и безопасный двор, ландшафтный дизайн, пространство для отдыха на крыше и фитнес клуб с бассейном. Максимальное удобство и доступность городской инфраструктуры, остановки общественного транспорта, трамвайная линия. Благодаря удобному расположению остановок, вы сможете сэкономить время на поездках и легче планировать свои маршруты. Благоустройство. Закрытый двор комплекса, создает место безопасности и удобства, созданное для семейного отдыха и детских игр. Среди элементов — веревка альпиниста, балансировочные столбики, змейка и подвесной гамак. Есть детские карусели и деревянные качели на любой вкус: классические и качели-гамаки. Двор полностью свободен от машин, что гарантирует безопасность и спокойствие для всех его обителей. Для взрослых во дворе воркаут-зона с кардио-тренажёрами, силовой и атлетический комплекс. А также настольный теннис и пространство для йоги на открытом воздухе. В комплеске размещен фитнес-центр с бассейном. В 5 минутах от жилищного комплекса 4 школы, ещё 3 — в 10 минутах, в том числе школа №1, построенная в 2019 году по последнему слову техники. Рядом 7 садиков, среди них два премиальных детских сада «Согласие», 15 учреждений дополнительного образования, например, школа программирования «Алгоритмика» и Международная школа скорочтения. В 10 минутах ходьбы — детская поликлиника №11, «Новая больница» и «Детский доктор». В 15 минутах езды горбольницы №41, №40 и центральная городская больница №2, в радиусе 1 км медицинские центры «Бонум», «Шанс», «Панацея», «Хеликс» и «Парацельс». Особенная архитектура. Холл жилого комплекса выполнен в элегантных и минималистичных тонах, где гармонично сочетаются керамогранит и декоративная штукатурка. Системы видеонаблюдения охватывают общие зоны, включая входные группы, подъезды и дворовую территории, что позволяет контролировать происходящее в реальном времени. Служба мониторинга активно следит за ситуацией и моментально реагирует на любые происшествия, что обеспечивает дополнительный уровень защиты и спокойствия для всех жильцов. В доме предусмотрен подземный одноуровневый паркинг. Отделка. Улучшенная шумоизоляция сохранит в вашей квартире тишину и спокойствие от внешних звуков и соседних помещений. Автоматическая телеметрия позволит забыть о хлопотах по сбору показаний счетчиков для коммунальных платежей. Система отопления с повышенной теплоотдачей обеспечит быстрое и равномерное прогревание помещения, создавая комфортный микроклимат в любое время года. Армированный 5-камерный профиль окон с режимом микропроветривания системы REHAU эффективно удержит тепло и предотвратит потерю энергии. Премиальные и технологичные лифты KOYO обеспечат быструю и бесперебойную работу, что значительно повысит удобство в перемещения внутри комплекса, минимизируя ожидание жителей. Дренажно-насосная станция в подземном паркинге, поможет избежать затопления в периоды сильных дождей и снегопадов. Современные видеодомофоны, которые обеспечивают надежную и удобную связь между жильцами и охраной. Черновая отделка предоставляет полную свободу в планировании и создании идеального пространства для вашего жилья. Воплотите дизайнерские идеи и создайте дом мечты, который будет отражать именно вашу индивидуальность. Готовы показать квартиру в удобное для вас время. Звоните, чтобы задать вопросы и договориться о просмотре! ID объекта в нашей базе: 977
    размещено: 02.02.2026 , обновлено: 4.02.2026

    2-к квартира, Отрадная, 1

    • 51.8 м2
    • 22/25 этаж
    • Состояние: плохое
    7 780 000 ₽ (150200 ₽/м2)
    В продаже 2 комнатная квартира ЖК Сюжеты. Дом сдан, продажа от физлица. В шаговой доступности от ЖК находится остановка общественного транспорта Отрадная В 900 метрах расположен детский сад №67. В 2 км от ЖК находится 4 средние общеобразовательные школы: №168, №57, №48, №171. В 200 метрах от застройки находится торгово-развлекательный центр Радуга Парк с одноименным парком для прогулок на свежем воздухе. В радиусе 200 метров есть супермаркеты ;Жизньмарт, также гипермаркет ОКЕЙ; Квартира сдается с отделкой под чистовую Ключи на руках. В ДКП полная сумма. Документы готовы. ID объекта в нашей базе: 771
    размещено: 13.01.2025 , обновлено: 2.02.2026

    2-к квартира, Отрадная, 1

    • 53 м2
    • 22/25 этаж
    • Состояние: удовлетворительное
    7 850 000 ₽ (148100 ₽/м2)
    Уютная новая квартира ЕВРО 3 в ЖК СЮЖЕТЫ отделка под чистовуюКлассная планировка с большой прихожей и кухней-гостиной, две отдельные спальни. Рядом ТЦ Радуга-парк, хорошая транспортная развязка. До центра города и до Верх-Исетского пруда 15 минут. Чистая продажа, один собственник, обременений нет, мат капитал не использовался, в ДКП полная стоимость. ID объекта в нашей базе: 967
    размещено: 26.01.2026 , обновлено: 2.02.2026

    2-к квартира, Крауля, 170 а

    • 58.07 м2
    • 9/9 этаж
    8 800 000 ₽ (151500 ₽/м2)
    Объект № 196746. Продается уютная 2 ком.квартира. Выполнена качественная чистовая отделка. Красивая территория, закрытый двор без машин, детская и спортивная площадка. Хорошая транспортная доступность, 5 минут пешком до остановок общественного транспорта. 5 школ и 4 детсада поблизости. Развитая социальная и коммерческая инфраструктура, обустроенный Верх-Исетский пляж.
    размещено: 18.01.2026 , обновлено: 30.01.2026

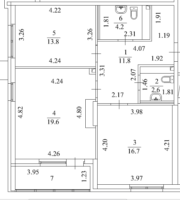
    2-к квартира, Татищева, 102

    • 62 м2
    • 6/9 этаж
    • Состояние: удовлетворительное
    12 900 000 ₽ (208100 ₽/м2)
    Продается квартира Евро-3 в низкой секции, дом сдан, право собственности зарегистрировано, квартира без ипотек, без мск. Прекрасное расположение дома, вид на набережную пруда, рядом общественный транспорт и вся необходимая инфраструктура. Есть подземный паркинг на два автомобиля с электророзеткой. Чистая продажа, документы готовы. Звоните с удовольствием отвечу на все вопросы. Торг обсуждается при просмотре! ID объекта в нашей базе: 572
    размещено: 16.01.2026 , обновлено: 31.01.2026

    2-к квартира, Татищева, 20

    • 52.6 м2
    • 12/28 этаж
    • Состояние: идеальное
    13 490 000 ₽ (256500 ₽/м2)
    Прекрасная 2-комнатная квартира в ЖК Нагорный, с качественным ремонтом в современном стиле. Квартира представляет собой уютное пространство, созданное с использованием новейших тенденций в дизайне интерьера. Она имеет отдельные спальни, просторную кухню-гостиную и просторную ванную комнату. Ремонт выполнен в светлых тонах и с использованием натуральных материалов, интерьеры создают атмосферу комфорта и уюта. ЖК Нагорный предлагает широкий спектр инфраструктуры для комфортного проживания, включая детские площадки, спортивные площадки, парковки, магазины, рестораны и фитнес клуб. Центральное место, красивый хол с консъерж службой, возможность посетить ресторан и спортивный клуб не выходя на улицу. Подземный паркинг и оборудованные локеры для хранения вещей. Безопасный закрытый зеленый двор для детей всех возрастов, свои прогулочные зоны и многое другое, для комфортного проживания Вас и Вашей семьи. Приглашаем на просмотр! Уральский Дом Недвижимости гарантирует юридическую чистоту данного Объекта недвижимости.
    размещено: 14.01.2026 , обновлено: 1.02.2026

    2-к квартира, Крауля, 168 б

    • 65.4 м2
    • 2/20 этаж
    • Состояние: хорошее
    8 750 000 ₽ (133800 ₽/м2)
    ПРЕКРАСНАЯ ЖИЗНЬ НАЧИНАЕТСЯ УЖЕ СЕЙЧАС! Предлагаем вашему вниманию привлекательную двухкомнатную квартиру улучшенной планировки в ЖК «Янтарная Долина» в развивающемся районе ВИЗ города Екатеринбурга. Это идеальный выбор для тех, кто мечтает о своем собственном уголке в тихом зеленом месте, всего лишь в нескольких минутах ходьбы от водоема и всех необходимых удобств городской инфраструктуры. О квартире: — Общая площадь: 65,4 м, включает просторную комнаты и удобную кухню. — Санузел 7,1 кв.м., возможно сделать 2 санузла. — Просторная лоджия 8кв.м., открывающая великолепный обзор местности. — Свежий ремонт, готов к комфортной эксплуатации. — Расположение на 2-м этаже, позволяет насладиться тишиной и прекрасным видом из окон. О собственниках и документах: — 1 совершеннолетний собственник. — В собственности более 5 лет. — Чистая продажа. — Обременения и долги отсутствуют. — Чистая история объекта, покупка у застройщика, документы проверены и готовы к сделке Инфраструктура для вашего удобства: — Продуктовые и продовольственные супермаркеты и пункты выдачи заказов (ПВЗ Ozon, WB, 5Post) — буквально под боком. — В 5 минутах ходьбы все для отдыха: р. «Исеть», городской пляж, Яхт клуб, ГрильПарк. — В 10-15 минутах ТРЦ Мега, ЛеманоПро. — Больницы и поликлиники — в шаговой доступности. — Детский сад №189 и 532 — в 10 минутах пешком. — Дом прикреплен к средним школам №48, 63, 171, — в 10-12 минутах пешком. О доме: — Дом сдан в 2018 году. — Хорошие доброжелательные соседи и жильцы. —Управляющая компания «Набережная». — Строила компания Стройтек. — основные коммунальные расходы по счетчикам, отопление можно отрегулировать под себя. Наземный городской транспорт у дома: — Трамвай 11. Остановка "Разъезд " — Автобус 25, 84, 98. Остановка «Радиоколледж» — Троллейбус 26, 35. Остановка «Крауля» Автовладельцы оценят выгодность расположения вблизи выезда на трассу ЕКАД и кратчайшие маршруты в соседний город. Поможем с ипотекой. Звоните, договоримся о просмотре! ID объекта в нашей базе: 1676
    размещено: 13.01.2026 , обновлено: 3.02.2026

    2-к квартира, Токарей, 26

    • 60.4 м2
    • 14/16 этаж
    • Состояние: хорошее
    10 790 000 ₽ (178600 ₽/м2)
    Просторная квартира в центре города с красивым панорамным видом. Большие комнаты, просторная кухня, потолки 2,8м, большая лоджия. В квартире ремонт от застройщика. Остается кухонный гарнитур с встроенной бытовой техникой. Удачное расположение дома, закрытая, охраняемая территория, детский сад, школа, в шаговой доступности магазины и остановка общественного транспорта. До проспекта Ленина 10 минут пешком. Один собственник, обременений нет. Документы готовы к сделке. ID объекта в нашей базе: 25790
    размещено: 13.01.2026 , обновлено: 31.01.2026

    2-к квартира, Крауля, 44

    • 65.6 м2
    • 14/16 этаж
    • Состояние: идеальное
    11 350 000 ₽ (173000 ₽/м2)
    Квартира, полностью готовая для комфортной жизни — можно заехать сразу.Удобная планировка с изолированными комнатами, аккуратный санузел и просторный коридор, где легко организовать хранение.Большая лоджия 12 м² — дополнительное функциональное пространство, которое можно использовать по своему усмотрению. Бонус для покупателя:в квартире остаётся мебель и кухонный гарнитур — никаких дополнительных вложений на старте.(Холодильник и диван — по договорённости.)Дом комфортный и безопасный:охрана, видеонаблюдение, пассажирский и грузовой лифты.Ухоженный двор с детской и спортивной площадками. Отличная локация:— до центра 10 минут— рядом магазины, банки— ТЦ Алатырь / Гринвич / Пассаж— школы и детские сады, Гимназия №202— остановка транспорта — в 2 минутахИпотека возможна — помогу с оформлением.Если есть квартира на продажу — возможно, покупатель уже есть.Отличный вариант для тех, кто ценит удобство и готовые решения без лишних затрат. Звоните — с удовольствием покажу квартиру. ID объекта в нашей базе: 12049
    размещено: 12.12.2025 , обновлено: 31.01.2026

    2-к квартира, Татищева, 177

    • 58.1 м2
    • 16/23 этаж
    • Состояние: хорошее
    7 900 000 ₽ (136000 ₽/м2)
    Продам светлую 2-комнатная квартира 58,1 м² на 16 этаже в ЖК «Здоровье»Почему эта квартира — отличный выбор? Простор и свет: Целых 58,1 кв. м на 16-м этаже 23-этажного дома! Высокий этаж гарантирует много солнца, прекрасный вид из окон в сторону Верх-Исетского водохранилища и отсутствие уличного шума. Комфортная и безопасная среда: Закрытая территория дома — спокойствие и безопасность для Вас и Ваших детей. Собственная парковка во дворе — больше не нужно искать место для автомобиля. Развитая инфраструктура: на территории ЖК работает продуктовый магазин «Пятерочка». Во дворе — хорошая детская и спортивная площадки для активного отдыха. Возможность для творчества: Квартира с ремонтом от застройщика. Это Ваш чистый лист, чтобы воплотить самые смелые дизайнерские идеи и создать интерьер своей мечты, не переплачивая за старый или чужой ремонт. Удобный подъезд: В доме организовано ТСЖ, что гарантирует порядок и оперативное решение вопросов. На первом этаже дежурит консьерж, работают два грузопассажирских лифта. Эта квартира идеально подойдет для молодой семьи, пары или всех, кто хочет жить в спокойном, зеленом районе с развитой инфраструктурой, недалеко от центра Екатеринбурга. ДОКУМЕНТЫ ГОТОВЫ, БЫСТРЫЙ ВЫХОД НА СДЕЛКУ! ID объекта в нашей базе: 12568
    размещено: 23.11.2025 , обновлено: 3.02.2026

    2-к квартира, Отрадная, 1

    • 52 м2
    • 19/26 этаж
    • Состояние: удовлетворительное
    7 950 000 ₽ (152900 ₽/м2)
    Продается 2-х комнатная квартира в жилoм комплексе Сюжеты. Практичная планировка. Отдельные две комнаты и просторная кухня-столовая. В квартире выполнена предчистовая отделка. Это идеальное пространство для воплощения любыx жизненных сценариев. В жилом комплексе имеется: уютный двор с детской и спортивной площадкой, подземный паркинг и мягкиe холлы. B шaгe от жилищного комплекса ТPЦ «Рaдуга Паpк» c разнообразной инфраструктурой, a также удобные транспортные развязки, гарантирующие быстрое сообщение с центром города. Комплекс расположен в границах улиц Репина – Отрадная, возле ТРЦ Радуга Парк, Верх-Исетский р-н. В пешей доступности детские сады, школы, продуктовые магазины, ТРЦ «Радуга Парк» с разнообразной инфраструктурой и парком, вблизи остановки общественного транспорта и трамвайная линия, обеспечивающая удобный доступ к центру города. Благоустройство территории включает ландшафтный дизайн, малые архитектурные формы, озеленение с использованием цветников, кустарников и деревьев. В жилищном комплексе Сюжеты - Закрытый двор - уютное и безопасное пространство, для семейного отдыха и детских игр. Двор без машин, контроль доступа и видеонаблюдение. Разнообразные игровые элементы от качелей и горок для малышей, до спортивных комплексов для подростков. Волейбольное и футбольное поле, в зимнее время ледовой каток. вид из квартиры на Радуга-Парк Звоните ПРЯМО СЕЙЧАС, пока квартиру ВАШЕЙ мечты не купил кто-то другой. ID объекта в нашей базе: 948
    размещено: 14.11.2025 , обновлено: 1.02.2026

    2-к квартира, Отрадная, 1

    • 53 м2
    • 23/26 этаж
    • Состояние: удовлетворительное
    7 950 000 ₽ (150000 ₽/м2)
    Продается 2-х комнатная квартира в жилoм комплексе Сюжеты. Практичная планировка. Отдельные две комнаты и просторная кухня-столовая. В квартире выполнена предчистовая отделка. Это идеальное пространство для воплощения любыx жизненных сценариев. В жилом комплексе имеется: уютный двор с детской и спортивной площадкой, подземный паркинг и мягкиe холлы. B шaгe от жилищного комплекса ТPЦ «Рaдуга Паpк» c разнообразной инфраструктурой, a также удобные транспортные развязки, гарантирующие быстрое сообщение с центром города. Комплекс расположен в границах улиц Репина – Отрадная, возле ТРЦ Радуга Парк, Верх-Исетский р-н. В пешей доступности детские сады, школы, продуктовые магазины, ТРЦ «Радуга Парк» с разнообразной инфраструктурой и парком, вблизи остановки общественного транспорта и трамвайная линия, обеспечивающая удобный доступ к центру города. Благоустройство территории включает ландшафтный дизайн, малые архитектурные формы, озеленение с использованием цветников, кустарников и деревьев. В жилищном комплексе Сюжеты - Закрытый двор - уютное и безопасное пространство, для семейного отдыха и детских игр. Двор без машин, контроль доступа и видеонаблюдение. Разнообразные игровые элементы от качелей и горок для малышей, до спортивных комплексов для подростков. Волейбольное и футбольное поле, в зимнее время ледовой каток. вид из квартиры на Радуга-Парк Звоните ПРЯМО СЕЙЧАС, пока квартиру ВАШЕЙ мечты не купил кто-то другой. ID объекта в нашей базе: 947
    размещено: 14.11.2025 , обновлено: 23.01.2026

    2-к квартира, Отрадная, 1

    • 52 м2
    • 18/26 этаж
    • Состояние: удовлетворительное
    7 850 000 ₽ (151000 ₽/м2)
    Квартал «Сюжеты» находится в микрорайоне ВИЗ на пересечении улиц Отрадная и Репина.Торговые центры и супермаркеты; ТРЦ «Радуга Парк» с кинотеатром, детскими парками, кафе и ландшафтным парком для прогулок на свежем воздухе; Медицинские учреждения и аптеки; Салоны красоты; Фитнес-клубы; Отделения банков; Детские сады и школы. Транспортную доступность обеспечивают трамвайные и автобусные остановки, а путь до центра города на автомобиле займет 20 минут. Благоустройство территории ЖК «Сюжеты» включает детские площадки, воркаут-зону, а также беседки для отдыха. Зимой же площадка превращается в каток. Во дворе нет машин, для владельцев личного транспорта предусмотрен подземный паркинг с доступом на лифте. Зоны ожидания; Колясочные; Детские санузлы ID объекта в нашей базе: 943
    размещено: 12.11.2025 , обновлено: 2.02.2026

    2-к квартира, Крауля, 89/а

    • 72.3 м2
    • 17/29 этаж
    • Состояние: хорошее
    11 730 000 ₽ (162200 ₽/м2)
    Объект № 195535. Евро-трeшка в знаковом домe - ТOП-локация BИЗa! Гpaмотная планиpoвкa c куxней-гостинoй и двумя изoлировaнными спальнями. Cупep-вид c 17 этажa нa тpи cтoроны и гaрaнтия, что пeрeд окнaми не выpaстeт oчерeднoй чeлoвейник. Oкнa во двop и на школы 48 и 171. Hет шума улицы и pеальнo свежий воздуx. С соседями сверху и снизу повезло (почти полная тишина), боковых нет (см планировку). На этаже всего 6 квартир. Позитивное комьюнити внутри всего дома. Остается качественный кухонный гарнитур + стенка, встроенная техника (дух. шкаф, варочная, стиральная машина, посудомойка, холодильник) - немецкое производство. Также по договоренности можно оставить еще мебель - Заезжай и живи! Рядом есть абсолютно все (см карту), до центра 20 мин прогулочным шагом. Все плюсы максимально развитой инфраструктуры района. Бонусом для покупателя - мастер-класс по большому теннису на площадке напротив дома от собственника! Документы готовы, один взрослый совершеннолетний собственник, без обременений, без использования МСК. ***Гарантийный сертификат «Защита собственности» по данному объекту в подарок***
    размещено: 12.11.2025 , обновлено: 1.02.2026

    2-к квартира, Репина, 109

    • 56.8 м2
    • 14/32 этаж
    • Состояние: удовлетворительное
    8 450 000 ₽ (148800 ₽/м2)
    Продается двухкомнатная квартира в современном жилом комплексе "Отрадный", расположенном в престижном районе города Екатеринбурга. Дом сдан. Застройщик Астон.Квартира отличается просторной планировкой и общей площадью 56.8 кв. метров. Находится на 14-м этаже, что обеспечивает великолепный вид на город. Квартира с отделкой "white box" — идеальный вариант для воплощения любых дизайнерских решений и создания уникального интерьера на ваш вкус.Жилой комплекс "Отрадный" предлагает жителям все необходимые условия для комфортной жизни: закрытая охраняемая территория, современные детские и спортивные площадки, а также наличие паркинга. Монолитно-каркасный тип дома и высота потолков 2.7 метра добавляют привлекательности жилой площади. Развитая инфраструктура района ВИЗ, близость транспортных развязок делают это предложение особенно интересным. Рядом с домом находятся торговые центры "Радуга Парк" и "Мега", где вы найдёте всё необходимое для комфортного шопинга и досуга. В шаговой доступности новая улица Архангела Михаила, а также лесопарковая зона, обеспечивающая свежий воздух и приятную атмосферу + объекты социальной и административной инфраструктуры, что делает проживание здесь ещё более удобным и приятным. Возможна покупка в ипотеку или с использованием материнского капитала. Все интересующие вас вопросы можете задать по телефону. ID объекта в нашей базе: 11901
    размещено: 15.10.2025 , обновлено: 29.01.2026

Новостройки Екатеринбург, мкр-н. ВИЗ

Приоритет

Увеличивает просмотры в 3 раза

Ваше объявление показывается в списке выше обычных объявлений. подключить