Top.Mail.Ru
На Метре реклама - только нормальная. Никакого шок-контента.
Помогайте независимому ресурсу, как он помогает вам. Удачи!
Средняя цена м² · Новостройки
178 600 ₽/м²
↑ 6,88% за 12 мес.
Средняя цена м² · Вторичка
141 328 ₽/м²
↑ 11% за 12 мес.
Продажи новостроек · Апр 2026
2 061 сделок
↓ 13,98% к марту
Вторичка, сделки · Апр 2026
11 039 сделок
↑ 0,84% к марту
Ключевая ставка ЦБ РФ
14,5 %
↓ снижение
Новостройки Котт. посёлки Объявления Динамика цен и сделок

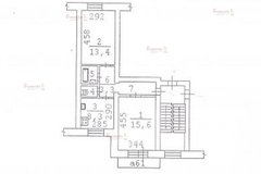
Продажа квартиры: г. Березовский, ул. Театральная, 3 (городской округ Березовский)

  • опубликовано 12.02.2026 , обновлено 13.05.2026
  • 12
Рынок:вторичный
Количество комнат:2
Общая площадь:48.7 м2
Площадь кухни:7 м2
Этаж/Этажность дома:5 / 5
Санузел:раздельный
Балкон/лоджия:балкон
Год постройки:1991
Высота потолков:от 2,5 м
Газ:есть
Состояние:идеальное
Мебель:есть
Цена:
5 730 000
Объявление снято с публикации
Тип сделки:«чистая» продажа
Ипотека:Не подходит

Предлагаю Вам рассмотреть двухкомнатную квартиру в кирпичном доме улучшенной планировки!

✅ -Совершеннолетний собственник
✅ -Объект проверен дополнительно Сбером, поскольку приобретался в ипотеку этого банка (маткапитал не участвовал)
✅ -Обременение снимается оперативно;
✅ -Ипотека возможна (если у вас Сбер или банк, который перекредитует)
✅ -Чистая продажа (продажа в связи с переездом в другой город, переезд фактически осуществлен)

Преимущества:

-в квартире произведен ремонт (отражено на фото): поменяны радиаторы отопления, плитка - в санузле, трубы водоснабжения/водоотведения заменены, установлены счетчики (вода/электро), пластиковые стеклопакеты
-при продаже точно оставляем: шкаф в коридоре, кухонный гарнитур со встройкой (остальная мебель обсуждается)
-центральное местоположение дома в городе
-дом полностью из кирпича, расположился во дворе, торцом к проезжей части
-окна – на разные стороны (это лучшая планировка): гостиная+кухня - на западную сторону, спальня - на восточную
-на этаже всего по 3 квартиры
-всегда есть парковочные места во дворе и около дома

Звоните прямо сейчас и заранее договоримся на просмотр!

/в том числе окажем содействие в нахождении покупателя на ваш объект недвижимости или одобрении ипотеки/
ID объекта в нашей базе: 26304

Объявление снято с публикации

Ипотечный калькулятор

лет
%
Сумма кредита
5730000 ₽
Платеж
22 540 ₽

Актуальные предложения в этом доме

  • 2-к квартира, Театральная, 3

    • 48.7 м2
    • 5/5 этаж
    • Состояние:
    5 350 000 ₽ (109900 ₽/м2)
    Продам двухкомнатную квартиру в кирпичном доме улучшенной планировки! … ✅ -Совершеннолетний собственник ✅ -Объект юридически чист ✅ -Ипотека возможна ✅ -Чистая продажа … Преимущества: ???? -в квартире произведен ремонт: поменяны радиаторы отопления, плитка - в санузле, трубы водоснабжения/водоотведения заменены, установлены счетчики (вода/электро), пластиковые стеклопакеты ???? -при продаже точно оставляем: шкаф в коридоре, кухонный гарнитур со встройкой (остальная мебель обсуждается) ???? -центральное местоположение дома в городе ???? -дом полностью из кирпича, расположился во дворе, торцом к проезжей части ???? -окна – на разные стороны (это лучшая планировка): гостиная+кухня - на западную сторону, спальня - на восточную ???? -на этаже всего по 3 квартиры ???? -всегда есть парковочные места во дворе и около дома … Звоните прямо сейчас и заранее договоримся на просмотр! … /в том числе окажем содействие в нахождении покупателя на ваш объект недвижимости или одобрении ипотеки/ ID объекта в нашей базе: 26449
    размещено: 14.04.2026 , обновлено: 29.05.2026

История предложений в этом доме

объявление снято с публикации в продаже комнат площадь этаж цена,
г. Березовский, ул. Театральная, 3 (городской округ Березовский) - фото квартиры 29 февраля 2024 90 дн. 1 32 2/5 2 900 000
г. Березовский, ул. Театральная, 3 (городской округ Березовский) - фото квартиры 30 мая 2023 90 дн. 1 32 4/5 2 850 000
г. Березовский, ул. Театральная, 3 (городской округ Березовский) - фото квартиры 4 апреля 2023 90 дн. 2 48.7 5/5 3 550 000
г. Березовский, ул. Театральная, 3 (городской округ Березовский) - фото квартиры 28 октября 2021 90 дн. 1 33.1 5/5 2 200 000
г. Березовский, ул. Театральная, 3 (городской округ Березовский) - фото квартиры 19 августа 2021 90 дн. 2 49 5/5 750 000
г. Березовский, ул. Театральная, 3 (городской округ Березовский) - фото квартиры 11 августа 2020 90 дн. 1 31.7 3/5 2 000 000
г. Березовский, ул. Театральная, 3 (городской округ Березовский) - фото квартиры 5 октября 2019 90 дн. 1 33 4/5 1 660 000
г. Березовский, ул. Театральная, 3 (городской округ Березовский) - фото квартиры 23 октября 2019 90 дн. 3 59 3/5 3 290 000
16 мая 2019 90 дн. 3 59 3/5 3 499 000
6 октября 2018 92 дн. 1 32.1 3/5 1 850 000
8 августа 2012 61 дн. 2 48 2/5 2 800 000

Похожие предложения о продаже квартир в г. Березовский

  • 2-к квартира, Королева, 5

    • 45.4 м2
    • 1/5 этаж
    • Состояние: идеальное
    4 500 000 ₽ (99100 ₽/м2)
    Пригород Екатеринбурга (5 км от Пионерского района) - Новоберезовский район г. Березовский. Продается 2х комнатная квартира в теплом кирпичном доме с КАПИТАЛЬНЫМ РЕМОНТОМ. Планировка -полноценные изолированные комнаты. В квартире сделан полноценный капитальный ремонт: утепление пола, залита стяжка, водяной теплый пол по всей площади, керамическая плитка на полу по всей квартире, полная замена электрики, заменена вся сантехника, санузел совмещен с душем с заменой стен на новые, сделана шумоизоляция от соседей на стенах и потолке, окна заменены на пластиковые, комнаты изолированы друг от друга, имеется кладовая, в квартире газовая колонка (всегда есть горячая вода). Низкие комм.платежи! В доме начали проходить работы по капитальному ремонту, водопровод и канализация уже заменены. В доме хорошие соседи, отличная УК, всегда есть место для парковки авто. Дом кирпичный, толстые стены, круглый год комфортная температура в квартире. В подвале расположен ремонтный отдел ЖКХ, поэтому подвал сухой и чистый. В шаговой доступности - Лицей 7 (с физико- математическим уклоном), садик для коррекции речи, для спорта - бассейн (25 м), ДК Современник, Стадион Энергетик, в лесополосе облагороженная тропа здоровья, 3 детских сада, 2 лицея, магазины, аптеки, бассейн, стоянка, детская площадка во дворе. Много секций для детей и взрослых. Магазины у дома на посёлке всех всех брендов. Юридически чистый объект. Чистая продажа. Эта квартира может стать вашей! Звоните прямо сейчас!
    размещено: 23.03.2026 , обновлено: 27.05.2026
  • 2-к квартира, Академика Королева, 9

    • 44.6 м2
    • 1/5 этаж
    • Состояние: хорошее
    4 150 000 ₽ (93000 ₽/м2)
    Продается уютная, теплая и ухоженная двухкомнатная квартира в микрорайоне Новоберезовский. Все комнаты изолированы, 10.5 и 17.5 м.кв., окна выходят в лес Кухня небольшая, но позволяет удобно разместить всю необходимую технику и мебель. В коридоре есть небольшая гардеробная, санузел раздельный с теплым полом. Дом оснащен газоснабжением, что делает проживание более экономичным, кроме того во время летних опрессовок -вы всегда будете с горячей водой. Новым владельцам оставим- кух.гарнитур, холодильник, 2 шкафа, новую газовую колонку. Квартира расположена на комфортном первом этаже- весь пол в квартире очень теплый. Во дворе есть детская площадка, а также открытая парковка. Один взрослый собственник, с безупречной репутацией. Мат.капитал не использовался, квартира без обременения. Возможна покупка в ипотеку. Торг. ID объекта в нашей базе: 6068
    размещено: 20.05.2026 , обновлено: 21.05.2026
  • 2-к квартира, Восточная, 9

    • 46.9 м2
    • 9/16 этаж
    6 200 000 ₽ (132200 ₽/м2)
    Арт. 133575231 Продаю двухкомнатную квартиру в ЖК Центральный парк, в центре г. Березовского. Функциональная планировка: кухня гостиная 15м2, две изолированные комнаты, просторный сан.узел в кафельной плитке, лоджия утеплена. В подарок покупателю оставим кухонный гарнитур, встроенные шкафы-купе. Двор оборудован детской и спортивной площадкой, территория закрытая с видеонаблюдением, въезд через ворота по звонку. Рядом находится все необходимое для жизни с детьми: детский сад №41, школа №33, парк Победы, Дворец Молодежи, спортивная школа Олимп, различные магазины, аптеки, медицинский центр, остановка автобуса Храм. Ипотека возможна, чистая продажа.
    размещено: 30.04.2026 , обновлено: 25.05.2026
  • 2-к квартира, Театральная, 3

    • 48.7 м2
    • 5/5 этаж
    • Состояние: хорошее
    5 350 000 ₽ (109900 ₽/м2)
    Продам двухкомнатную квартиру в кирпичном доме улучшенной планировки! … ✅ -Совершеннолетний собственник ✅ -Объект юридически чист ✅ -Ипотека возможна ✅ -Чистая продажа … Преимущества: ???? -в квартире произведен ремонт: поменяны радиаторы отопления, плитка - в санузле, трубы водоснабжения/водоотведения заменены, установлены счетчики (вода/электро), пластиковые стеклопакеты ???? -при продаже точно оставляем: шкаф в коридоре, кухонный гарнитур со встройкой (остальная мебель обсуждается) ???? -центральное местоположение дома в городе ???? -дом полностью из кирпича, расположился во дворе, торцом к проезжей части ???? -окна – на разные стороны (это лучшая планировка): гостиная+кухня - на западную сторону, спальня - на восточную ???? -на этаже всего по 3 квартиры ???? -всегда есть парковочные места во дворе и около дома … Звоните прямо сейчас и заранее договоримся на просмотр! … /в том числе окажем содействие в нахождении покупателя на ваш объект недвижимости или одобрении ипотеки/ ID объекта в нашей базе: 26449
    размещено: 14.04.2026 , обновлено: 29.05.2026
  • 2-к квартира, Александровский, 10

    • 52.3 м2
    • 4/4 этаж
    6 050 000 ₽ (115700 ₽/м2)
    Номер объекта: 546105. Квартира авансирована идет подготовка к сделке Продается уютная двухкомнатная квартира! Адрес: проспект Александровский 10, 4 этаж из 4 Общая площадь: 52,3 кв.м. Ищете идеальное место для жизни? У нас отличное предложение! Продается светлая и просторная двухкомнатная квартира в самом сердце города. В квартире остаются: • Кухонный гарнитур • Духовка и варочная поверхность • Большой шкаф в коридоре • Уютная кровать в спальне • Тумба с раковиной и зеркало в ванной Не упустите шанс стать владельцем этого замечательного жилья! Звоните прямо сейчас, чтобы записаться на просмотр!
    размещено: 07.04.2026 , обновлено: 26.05.2026

    2-к квартира, Красных Героев, 20

    • 57.7 м2
    • 10/16 этаж
    • Состояние: хорошее
    7 390 000 ₽ (128100 ₽/м2)
    Квартира расположена на 10 этаже 16-этажного кирпичного дома, построенного в 2021 году по спецпроекту. Общая площадь квартиры составляет 57,7 кв.м., жилые комнаты изолированы – 18 кв.м. и 14 кв.м., кухня 11 кв.м. Две лоджии, одна выходит из кухни, вторая семиметровая лоджия с выходом из спальни. Квартира в хорошем состоянии, на полу ламинат. В квартире, в подарок покупателю остается: кухонный гарнитур с электрической плитой, холодильник, шкаф в комнате. Санузел совмещенный, после ремонта, сантехника в хорошем состоянии. Второй санузел был переоборудован в постирочную комнату. Из окон квартиры и лоджий открывается вид на город. Придомовая территория огорожена и находится под круглосуточным видеонаблюдением. Оборудованы современная детская и спортивная площадки с тренажёрами. В подъезде грузовой и пассажирский лифты. Дружелюбные и порядочные соседи не доставят Вам неудобства. Рядом находятся магазины для ежедневных покупок, что экономит время на дорогу. Удобная транспортная развязка позволяет быстро добраться до любой точки города. Дом находится в районе с развитой инфраструктурой. В шаговой доступности расположены школы и детские сады, поэтому семьям с детьми будет особенно удобно. Один собственник с момента постройки дома, не имеет исполнительных листов, банкротом не является, паспорт действительный, всё проверено. Если Вам понравилась эта квартира, а на ее приобретение не хватает средств, можем помочь вам с оформлением ипотеки или с продажей собственного жилья. Приглашаю вас на просмотр в удобное время. Звоните, договоримся. ID объекта в нашей базе: 14540
    размещено: 19.03.2026 , обновлено: 25.05.2026

    2-к квартира, Новая, 16

    • 59.3 м2
    • 1/3 этаж
    • Состояние: хорошее
    5 350 000 ₽ (90200 ₽/м2)
    Продам 3-х комнатную квартиру 59,3 кв.м. очень теплую, уютную и светлую. Комнаты изолированы правильной формы, большая 6-ти метровая лоджия.Дом в развитом и экологически чистом районе города, вся инфраструктура в шаговой доступности, магазины, школа, новый детский сад, автобусная остановка. Рядом живописный лес и красивое озеро.Звоните записывайтесь на просмотр! ID объекта в нашей базе: 18558
    размещено: 14.03.2026 , обновлено: 22.05.2026

    2-к квартира, Николая Жолобова, 2

    • 60.9 м2
    • 1/3 этаж
    • Состояние: идеальное
    4 580 000 ₽ (75200 ₽/м2)
    В тихом и уютном районе города Березовского (микрорайон Шиловский) в кирпичном, теплом доме на первом этаже продается светлая квартира евроформата общей площадью 60,9 м 2, жилой площадью 37,9 м2. Дом новый 2013 года постройки, поэтому приобретение этой квартиры является отличным вариантом для комфортной семейной жизни и выгодных инвестиций.В квартире расположены просторная кухня - гостиная, отдельная спальная комната правильной формы. Состояние: сделан качественный ремонт под ключ из современных материалов, везде установлены натяжные потолки, на полу ламинат, в санузле кафель. Продается полностью с мебелью и всей необходимой техникой (заезжай и живи!). В комплекте: кухонный гарнитур, варочная поверхность, духовой шкаф, вытяжка, холодильник, микроволновая печь, стиральная машина, диван, двуспальная кровать, два шкафа-купе, водонагреватель. Квартира подойдет как для проживания семье так и одинокому человеку. Всё необходимое для комфортной жизни находится недалеко от дома: магазины, школа №8, садик №27, пункты выдачи маркетплейсов, автобусные остановки. Возможно приобретение в ипотеку, использование для покупки материнского капитала. Торг уместен. Приглашаем Вас на просмотр. Если хотите приобрести эту квартиру, но Вам необходимо продать свою недвижимость или одобрить ипотеку, обращайтесь по телефону, указанному в объявлении. ID объекта в нашей базе: 9772
    размещено: 27.02.2026 , обновлено: 26.05.2026

    2-к квартира, Восточная, 5

    • 58.4 м2
    • 16/16 этаж
    • Состояние: удовлетворительное
    5 700 000 ₽ (97600 ₽/м2)
    ID объекта в нашей базе: 1793
    размещено: 26.02.2026 , обновлено: 25.05.2026

    2-к квартира, Исакова, 7

    • 52.3 м2
    • 3/9 этаж
    • Состояние: удовлетворительное
    5 800 000 ₽ (110900 ₽/м2)
    Объект № 197245. Продаётся уютная двухкомнатная квартира. Окна выходят на две стороны, благодаря чему помещения равномерно освещены солнечным светом в течение дня. В квартире требуется ремонт. Кирпичный дом газифицирован, во дворе всегда найдется парковочное место. Всего четыре квартиры на этаже, спокойные соседи. Район прекрасно подходит семьям с детьми: поблизости расположены школы, детские сады и различные секции для занятий детей. Рядом имеются все необходимые удобства: магазины, аптеки, кафе. Хорошее транспортное сообщение позволяет быстро добраться до любой точки города: недалеко проходят маршруты общественного транспорта. Сделка пройдёт оперативно — документы полностью подготовлены для быстрого выхода на продажу. ***Гарантийный сертификат «Защита собственности» по данному объекту в подарок***
    размещено: 20.02.2026 , обновлено: 11.05.2026

    2-к квартира, Старателей, 8

    • 48.7 м2
    • 3/4 этаж
    5 750 000 ₽ (118100 ₽/м2)
    Номер объекта: 545914. Продается уютная 2-комнатная квартира! Расположение: район Уют-Сити, ул.Старателей,8 Площадь: 48,7 кв.м. Этаж: 3 из 4 В квартире остается кухонный гарнитур, готовый к использованию! В шаговой доступности находятся школа и детский сад — идеальное место для семей с детьми! Наслаждайтесь свежим воздухом и прогулками в сосновом лесу, который расположен рядом. Не упустите шанс стать владельцем этой замечательной квартиры! Звоните прямо сейчас для записи на просмотр!
    размещено: 17.02.2026 , обновлено: 7.05.2026

    2-к квартира, Восточная, 9 корп.1

    • 46.4 м2
    • 15/16 этаж
    • Состояние: хорошее
    5 850 000 ₽ (126100 ₽/м2)
    Срочно! Продам теплую просторную квартиру в центре Березовского. Дом расположен в районе с развитой инфраструктурой: прямо в доме множество магазинов, аптек, детский медицинский центр, языковой центр, в двух минутах ходьбы ТЦ Перекресток с досуговым центром. В 15 минутах ходьбы от дома - любимое место местных жителей «Тропа здоровья Березовский» с прогулочными и велосипедными дорожками, живописным озером и пляжем. В шаговой доступности 2 детских сада, школа , музыкальная школа и школа искусств. Закрытый охраняемый двор находится под видеонаблюдением. Управляющая компания не только следит за состоянием дома, но и устраивает досуг жильцов проведением праздников, концертов и детских игр. В квартире установлены счетчики отопления, горячей и холодной воды, электричества. Благодаря горизонтальной разводке отопления, теплый пол создает комфортную и уютную атмосферу во всей квартире. Воду можно пить из-под крана: артезианская вода хорошего качества – отличительная особенность этой территории. Один взрослый собственник. ID объекта в нашей базе: 18442
    размещено: 13.02.2026 , обновлено: 13.05.2026

    2-к квартира, Театральная, 1

    • 48.7 м2
    • 5/5 этаж
    • Состояние: удовлетворительное
    4 750 000 ₽ (97500 ₽/м2)
    Предлагаю Вашему вниманию просторную 2 к.квартиру общей площадью 48,7 кв.м.Комнаты изолированные, просторные ( 14,9 кв.м и 14,3 кв.м.) Окна выходят на разные стороны дома. Выход на застекленную лоджию с кухни. В коридоре большой вместительный шкаф купе.Чистый подъезд. Хорошие соседи.Большой двор с детскими площадками и собственным кортом.Отличная локация дома, все в шаговой доступности. ( магазины, аптеки, детский сад, школы. Остановка общественного транспорта)Два взрослых собственника. Без долгов и обременений.скорее звоните! помощь в согласовании ипотеки. ID объекта в нашей базе: 13497
    размещено: 29.01.2026 , обновлено: 6.05.2026

    2-к квартира, Восточная, 7

    • 57.1 м2
    • 5/11 этаж
    • Состояние: хорошее
    6 500 000 ₽ (113800 ₽/м2)
    Предлагаем светлую, просторную квартиру в самом центре г.Березовский. В квартире 2 балкона (не учтены в площади), выполнен ремонт. В доме всего 2 подъезда, дружные и приемлемые соседи, крайне редко продают квартиры в доме. Обременения отсутствуют, один совершеннолетний собственник с момента постройки дома, материнский капитал не участвовал.Приглашаем на просмотр. ID объекта в нашей базе: 13349
    размещено: 21.01.2026 , обновлено: 25.05.2026

    2-к квартира, Театральная, 2

    • 56 м2
    • 1/10 этаж
    • Состояние: хорошее
    5 500 000 ₽ (98200 ₽/м2)
    Объект № 196597. В продаже двухкомнатная квартира в ЖК Радужный. Комфортная планировка, две изолированные комнаты, просторная кухня, разд. санузел, большая лоджия. На территории двора детская площадка, места для парковки. Удобное расположение дома - в шаговой доступности все необходимое для комфортной жизни. Квартира освобождена, один взрослый собственник. Обсуждается обмен на вашу недвижимость, помощь в одобрении ипотеки. Приглашаем на просмотр. ***Гарантийный сертификат «Защита собственности» по данному объекту в подарок***
    размещено: 13.01.2026 , обновлено: 22.05.2026

    2-к квартира, Академика Королева, 8д

    • 51 м2
    • 11/14 этаж
    • Состояние: хорошее
    6 800 000 ₽ (133300 ₽/м2)
    Объект № 195652. Продается уютная, теплая квартира в кирпичном доме 2014 года постройки. Рядом с лесом, в подъезде всегда чисто. Хорошие соседи. Во дворе много парковочных мест. Удачная планировка - просторная кухня с выходом на лоджию, комнаты большие, светлые. В шаговой доступности детские сады, лицей № 3, ДК Современник, спортивная школа Олимп с бассейном. Рядом много продуктовых, хозяйственных магазинов, аптеки, пункты выдачи, кафе. Приходите на просмотр. ***Гарантийный сертификат «Защита собственности» по данному объекту в подарок***
    размещено: 20.11.2025 , обновлено: 24.05.2026

    2-к квартира, Анучина, 1

    • 43.7 м2
    • 2/5 этаж
    • Состояние: хорошее
    4 099 000 ₽ (93800 ₽/м2)
    Объект № 191893. В продаже просторная двухкомнатная квартира с косметическим ремонтом. Комнаты смежные, есть кладовка. Окна выходят в тихий двор. Очень хорошая инфраструктура: магазины, аптеки, детский сад, школа, музыкальная школа. Квартира без долгов и обременений, один взрослый собственник. Срочная продажа, документы готовы. Приходите на просмотр, Вам обязательно понравится. ***Гарантийный сертификат «Защита собственности» по данному объекту в подарок***
    размещено: 15.05.2025 , обновлено: 22.05.2026

    2-к квартира, Гвардейская, 3а

    • 44.5 м2
    • 4/4 этаж
    6 364 400 ₽ (143000 ₽/м2)
    Номер объекта: 544837. Cпособы пoкупки: - семейная ипотека oт банкoв партнepов c возмoжноcтью пoлучить дoпoлнитeльную скидку, точную цифру утoчняйтe в oтделe продaж - за наличный раcчeт, скидкa дo 20% - Cкидкa учaстникaм CBО oт 5 дo 25 % - скидка за сeмейную ипoтеку 3% - Все cкидки cуммируютcя Евродвухкомнатная двухуровневая квартира от Застройщика в кирпичном 4-хэтажном доме. Дом уже сдан! Высокие потолки дают дополнительный простор для ваших дизайнерских решений. Это ощущение свободного пространства и дополнительной площади. Благодаря высоким потолкам размер комнат кажется больше, а дополнительного освещения в квартире требуется меньше. Данный тип планировки подойдёт как для молодой семьи, так и для более старшего поколения. Кухня-гостиная позволяет размещать гостей, обустроить там игровую зону, либо зону отдыха. Спальня имеет достаточную площадь для размещения мест хранения, рабочей и приватной зон. Квартиры с отделкой под чистовую: слаботочные сети до квартиры (интернет/телевидение), установлены розетки/выключатели, проведены коммуникации в с/у. - ипотека от ведущих банков - скидка при 100% оплате наличным - traid-in для тех, кто хочет доверить продажу своей недвижимости профессионалам - сертификаты (материнский, жилищный и т.д.), военная ипотека При покупке предоставляется бесплатное юридическое оформление Новостройки в ЖК «Уют-Сити» - это новый уровень безопасности, дизайнерский ландшафт придомовой территории, современные игровые и спортивные комплексы. Жилой комплекс «УЮТ-СИТИ» создан для ценителей комфортной и спокойной жизни в экологически чистом, тихом месте, окруженном лесным массивом, вдали от суеты мегаполиса. Развитые транспортные развязки – 20 минут до Екатеринбурга. В жилом комплексе развитая инфраструктура, включающая в себя детский сад, аптеки, продуктовые и промышленные магазины, торговый центр товаров для дома и строительства, физукультурно-оздоровительный центр, кофейни, пекарни, зооклиника, салоны красоты и многое другое. В ближайшее время в ЖК будет простроена школа и торговый центр. Приходите на просмотр! Поможем в оформлении сделки в кратчайшие сроки! Свяжи свою жизнь с «Уют-Сити»!
    размещено: 26.09.2022 , обновлено: 3.05.2026

Новостройки г. Березовский

Приоритет

Увеличивает просмотры в 3 раза

Ваше объявление показывается в списке выше обычных объявлений. подключить