Top.Mail.Ru
На Метре реклама - только нормальная. Никакого шок-контента.
Помогайте независимому ресурсу, как он помогает вам. Удачи!
Средняя цена м² · Новостройки
178 767 ₽/м²
↑ 8,1% за 12 мес.
Средняя цена м² · Вторичка
140 468 ₽/м²
↑ 10,65% за 12 мес.
Продажи новостроек · Фев 2026
2 548 сделок
↓ 12,7% к январю
Вторичка, сделки · Фев 2026
10 138 сделок
↑ 63,9% к январю
Ключевая ставка ЦБ РФ
15 %
↓ снижение
Новостройки Котт. посёлки Объявления Динамика цен и сделок

Продажа квартиры: Екатеринбург, ул. Трамвайный, 2/1 (Пионерский)

  • опубликовано 3.04.2026 , обновлено 4.04.2026
  • 9
  •  
Рынок:вторичный
Срок сдачи: 2017 года
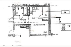
Количество комнат:3
Общая площадь:96 м2
Жилая площадь:52 м2
Площадь кухни:14 м2
Этаж/Этажность дома:23 / 28
Санузел:раздельный
Отделка:евроремонт
Год постройки:2017
Мебель:есть мебель
Балкон/лоджия:2 лоджии
Состояние:идеальное
Цена:
14 970 000
Коммунальные платежи:оплачиваются отдельно

Видовая просторная семейная квартира после качественного евро ремонта, оборудована двумя лоджиями, совмещённым санузлом, вместительной гардеробной. Для вашего удобства и безопасности в доме работает консьерж, территория закрыта и охраняется, а парковка во дворе оснащена шлагбаумом и является охраняемой. Во дворе дома обустроены детская и спортивная площадки, где ваши дети смогут активно проводить время под присмотром.

Также стоит отметить развитую инфраструктуру района: рядом расположены школа, детский сад, торговый центр, парк и фитнес-клуб. Для ежедневных покупок удобно расположенные магазины: Магнит, супермаркет, Бристоль, а также кафе, рестораны и магазина хорошей еды с доставкой. Это отличный выбор для тех, кто ценит комфорт, безопасность и качество жизни.

Рассмотрим различные варианты оплаты: собственные средства, ипотека, другая недвижимость, сертификат, материнский капитал.
ID объекта в нашей базе: 5656

Юнион 570 — Елена

показать телефон

Ипотечный калькулятор

лет
%
Сумма кредита
14970000 ₽
Платеж
22 540 ₽

История предложений в этом доме

объявление снято с публикации в продаже комнат площадь этаж цена,
Екатеринбург, ул. Трамвайный, 2/1 (Пионерский) - фото квартиры 4 апреля 2026 90 дн. 3 95 23/28 16 000 000
Екатеринбург, ул. Трамвайный, 2/1 (Пионерский) - фото квартиры 21 июля 2023 90 дн. 1 41.7 21/27 6 790 000
Екатеринбург, ул. Трамвайный, 2/1 (Пионерский) - фото квартиры 14 июля 2023 90 дн. 1 45 4/27 7 500 000
Екатеринбург, ул. Трамвайный, 2/1 (Пионерский) - фото квартиры 1 июля 2023 90 дн. 1 43 4/25 7 500 000
Екатеринбург, ул. Трамвайный, 2/1 (Пионерский) - фото квартиры 15 июля 2023 90 дн. 2 66 6/27 7 100 000
Екатеринбург, ул. Трамвайный, 2/1 (Пионерский) - фото квартиры 12 апреля 2023 90 дн. 2 66 6/27 7 200 000
Екатеринбург, ул. Трамвайный, 2/1 (Пионерский) - фото квартиры 16 апреля 2023 90 дн. 1 42.8 4/27 5 090 000
Екатеринбург, ул. Трамвайный, 2/1 (Пионерский) - фото квартиры 8 июля 2023 90 дн. 1 34.6 2/26 5 700 000
Екатеринбург, ул. Трамвайный, 2/1 (Пионерский) - фото квартиры 25 августа 2022 90 дн. 2 65.8 8/27 8 300 000
Екатеринбург, ул. Трамвайный, 2/1 (Пионерский) - фото квартиры 29 апреля 2022 90 дн. 3 95 23/27 11 800 000
Екатеринбург, ул. Трамвайный, 2/1 (Пионерский) - фото квартиры 23 февраля 2022 90 дн. 2 65.6 13/27 6 950 000
Екатеринбург, ул. Трамвайный, 2/1 (Пионерский) - фото квартиры 5 апреля 2021 90 дн. 1 41.9 9/27 4 200 000
Екатеринбург, ул. Трамвайный, 2/1 (Пионерский) - фото квартиры 31 октября 2020 90 дн. 2 64.4 12/27 5 900 000
Екатеринбург, ул. Трамвайный, 2/1 (Пионерский) - фото квартиры 13 октября 2020 90 дн. 2 64.4 12/27 5 900 000
Екатеринбург, ул. Трамвайный, 2/1 (Пионерский) - фото квартиры 23 июля 2020 90 дн. 1 42.4 17/26 4 050 000
Екатеринбург, ул. Трамвайный, 2/1 (Пионерский) - фото квартиры 13 июня 2020 60 дн. 2 65 23/28 6 000 000
Екатеринбург, ул. Трамвайный, 2/1 (Пионерский) - фото квартиры 23 июня 2020 90 дн. 1 33 8/27 3 000 000
Екатеринбург, ул. Трамвайный, 2/1 (Пионерский) - фото квартиры 9 мая 2020 90 дн. 1 42 7/26 4 090 000
Екатеринбург, ул. Трамвайный, 2/1 (Пионерский) - фото квартиры 6 марта 2020 90 дн. 3 96.1 25/26 11 400 000
Екатеринбург, ул. Трамвайный, 2/1 (Пионерский) - фото квартиры 6 марта 2020 90 дн. 3 93.6 24/26 11 000 000
Екатеринбург, ул. Трамвайный, 2/1 - фото квартиры 16 октября 2019 90 дн. 3 95.2 6/27 8 300 000
8 февраля 2019 90 дн. 1 42.3 21/27 3 550 000
26 сентября 2018 92 дн. 3 100 6/27 6 590 000

Похожие предложения о продаже квартир в Екатеринбурге (Пионерский)

  • 3-к квартира, Вилонова, 22а

    • 76 м2
    • 1/18 этаж
    • Состояние: идеальное
    10 500 000 ₽ (138200 ₽/м2)
    Продается 3-комнатная квартира в самом сердце Пионерского поселкаО квартире:· В квартире остается вся необходимая техника (кроме телевизоров) — можно заезжать и жить.· Два санузла — дополнительное удобство для семьи.· По всему периметру квартиры установлен теплый пол.· Наличие гардеробной комнаты — идеальное решение для хранения вещей.О доме и локации:· Рядом с домом — детские сады и школы.· До остановок общественного транспорта — 5–10 минут пешком.· 20 минут до центра города — удобная транспортная доступность.Приходите на просмотр! Будем рады показать вам эту уютную квартиру и ждем вас как будущих счастливых владельцев! ID объекта в нашей базе: 12418
    размещено: 27.03.2026 , обновлено: 3.04.2026
  • 3-к квартира, Менделеева, 18

    • 108.2 м2
    • 7/10 этаж
    • Состояние: идеальное
    14 349 000 ₽ (132600 ₽/м2)
    ОНА ЗДЕСЬ! Если вы искали САМУЮ УДОБНУЮ КВАРТИРУ в районе конечно же.Ещё не позвонили? Что ж, Вы главное не откладывайте, звоните сразу!В продаже квартира, полностью готовая к жизни без хлопот (с ЕВРО-ремонтом). Столько фишек в квартире, которые не терпится Вам показать...Не очень любите прибираться? - Не вопрос!Любите свежий воздух? - Не вопрос!Дома важен комфорт и уют? - Тоже не вопрос!Чистый подъезд, собственное ТСЖ, которое тщательно следит за домом и двором. Закрытый двор, во дворе оборудована детская, посажены клумбы, есть парковочные места. Хорошие вежливые соседи.Идеальный вариант для тех, кто любит домашнее спокойствие.ИНФРАСТРУКТУРА:В шаговой доступности все виды общественного транспорта с выездом без пересадок в любую часть города.- Рядом находятся продуктовые МАГАЗИНЫ и супермаркеты («Пятёрочка», «Кировский», «Магнит», «Монетка», «Светофор» и т.д.)- Детские сады и школы у дома- Поликлиники и Горбольница №7 (3 минуты пешком)- Кафе и рестораны- ТРЦ Парк Хаус 10 минут- Площадки для занятия спортомЮРИДИЧЕСКАЯ ЧИСТОТА:Возможен быстрый выход на сделку. Документы все в порядке, квартира без обременений. Ипотека возможна в любом банке.Все интересующие вопросы просьба задавать по телефону, всё обговаривается!Ждём Вас, приходите на просмотр! ID объекта в нашей базе: 13226
    размещено: 16.01.2026 , обновлено: 1.04.2026
  • 3-к квартира, Ирбитская, 13

    • 86.6 м2
    • 2/15 этаж
    • Состояние: идеальное
    13 990 000 ₽ (161500 ₽/м2)
    Продаем отличную классическую трехкомнатную квартиру с 2-мя лоджиями, в новом доме спец.планировки 2019 года постройки, по адресу г. Екатеринбург, ул. Ирбитская, д. 13, общей площадью 86,6 м2. В квартире выполнен новый, современный, качественный, стильный ремонт, с использованием дорогих и исключительно качественных материалов. Установлена дорогая, функциональная, продуманная кухня, вместительный большой шкаф купе с раздвижными, стеклянными дверями – в коридоре. Реализован стильный санузел с несколькими сценариями освещения и вентиляции. Установлена дорогая входная сейф дверь. Подъезд идеально чистый, в нем никогда не бывает посторонних, на площадке минимальное количество квартир 4 – что лишь добавит комфорта и спокойствия, и проживают в них интеллигентные, доброжелательные и чистоплотные соседями без вредных привычек. Территория двора закрыта - что обеспечит вам дополнительную защиту и уверенность. Просторный и зеленый двор со “звонким пением птиц” и игровыми детскими площадками порадует маленьких жителей дома и их родителей. В шаговой доступности гимназия № 47, детские сады № 352, 459, 468, культурный центр “Урал”, супермаркеты, аптеки и магазины, пункты выдачи, медицинский центр, лингвистический центр и т.д. . Один взрослый собственник. Ни каких детских долей и обременений. Приглашаю на просмотр, лучше увидеть все своими глазами! ID объекта в нашей базе: 1545
    размещено: 11.06.2025 , обновлено: 3.04.2026
  • 3-к квартира, Блюхера, 97

    • 97.5 м2
    • 24/26 этаж
    • Состояние: идеальное
    13 500 000 ₽ (138500 ₽/м2)
    Продается видовая просторная квартира с дизайнерским проектом на 24 этаже в ЖК «Уральский» Идеальный вариант для ценителей комфорта и современных решений: в квартире никто не проживал — все новое.Планировка и метраж:- Просторная кухня-гостиная 42 м² — сердце дома для семейных ужинов и приема гостей.- Мастер-спальня 14 м² с отдельной гардеробной 4,4 м² — личная зона комфорта.- Детская 13 м² — продуманное пространство для отдыха и учебы.- Кабинет 4 м² — уютное место для уединения и работы.- Два санузла и прачечная — максимум удобства для повседневной жизни.- На этаже всего 4 квартиры — тишина и приватность.- Панорамные окна на восток: в квартире много естественного света и при этом не жарко; из окон открываются великолепные виды.- Высота потолков 2,7 м — ощущение воздуха и пространства.- Профессиональный дизайнерский проект.- Премиальные светильники согласно дизайн-проекту.- Никто не проживал — чистота и свежесть нового дома.- Закрытая территория под охраной и круглосуточным видеонаблюдением.- Во дворе — детские и спортивные площадки.- В пешей доступности супермаркеты «Магнит» и «Пятёрочка», детские сады и школы № 165, 125, 47, остановки общественного транспорта.- Рядом лесопарк с озером Шарташ — отличное место для прогулок и спорта.- Парковочные решения: гостевая парковка и места вокруг комплекса, удобный доступ к лифтам. Торг возможен. Готовы показать квартиру в удобное для вас время, по предварительной договоренности. Никакой комиссии по данному обьекту. Юридическая чистота. ID объекта в нашей базе: 8481
    размещено: 18.04.2025 , обновлено: 25.03.2026
  • 3-к квартира, Уральская, 75

    • 70 м2
    • 3/25 этаж
    • Состояние: идеальное
    12 200 000 ₽ (174300 ₽/м2)
    Квартира с мебелью, техникой, текстилем - "под тапочки" прямо напротив Гимназии номер 47,в сердце Пионерского поселка, очень ждет новую семью. В квартире просторная кухня гостиная и две изолированных спальни. В бОльшей - выход на лоджию и открытый балкончик. В этой же комнате установлен шкаф-камин авторской работы из натурального дерева.В квартире остается вся мебель и техника (включая посудомоечную машину, кондиционер,ТВ и проч.)Дом 2011 г. постройки, с защищенным от машин двором, детской площадкой, консъержами.Обмен найден! Ключи на сделке. Готовность выхода на сделку 4 дня (необходимы нотариусу для запросов).Ждем на просмотр. ID объекта в нашей базе: 17163
    размещено: 01.04.2025 , обновлено: 27.03.2026

Новостройки Екатеринбург, мкр-н. Пионерский

Приоритет

Увеличивает просмотры в 3 раза

Ваше объявление показывается в списке выше обычных объявлений. подключить