3-к квартира, Колмогорова, 56
Объект № 195861. Продаётся уютная трехкомнатная квартира площадью 52 квадратных метра в самом сердце Екатеринбурга, расположенная по адресу: микрорайон Заречный, улица Колмогорова, дом 56.
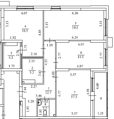
Жилые помещения занимают 34 квадратных метра, а кухня 6 квадратных метров, предоставляя достаточно места как для приготовления пищи, так и для семейных ужинов. Квартира расположена на третьем этаже девятиэтажного кирпичного дома, построенного в 1976 году. Здесь царит приятная атмосфера спокойствия и уюта, благодаря тому, что окна выходят во двор, где также находятся детская и спортивная площадки – идеальное место для отдыха и игр детей. Жильё оборудовано раздельным санузлом и имеет удобное планирование пространства, включая одну изолированную комнату, которая может стать детской, спальней или рабочим кабинетом.
В квартире выполнен косметический ремонт, что позволит новым владельцам сразу же заселиться без дополнительных вложений.
Для автовладельцев предусмотрена парковка во дворе дома. Безопасность жителей обеспечивает стандартный домофон.
Расположение дома позволяет быстро добраться до ключевых точек города: пешеходная доступность до станций Уральская и Динамо всего за четверть часа, а до площади 1905 года – чуть более получаса. Это значительно упрощает перемещение по городу и делает проживание здесь максимально комфортным. Выбирая эту квартиру, вы выбираете комфортное и размеренное проживание в одном из лучших районов Екатеринбурга, с развитой инфраструктурой и всеми необходимыми удобствами поблизости.
Выгода при работе с ГК Новосел: полная организационная поддержка, как продавца, так и покупателя (все документы за вас соберем, оформим ипотеку), присутствие на сделке на всех этапах, юридическое сопровождение всех участников, подготовка документов и консультирование.
ГК Новосел 25 лет на рынке, члены Уральской палаты недвижимости и Российской гильдии риелторов. ***Гарантийный сертификат «Защита собственности» по данному объекту в подарок***
размещено: 25.11.2025
, обновлено: 10.03.2026
