Top.Mail.Ru
На Метре реклама - только нормальная. Никакого шок-контента.
Помогайте независимому ресурсу, как он помогает вам. Удачи!
Средняя цена м² · Новостройки
178 767 ₽/м²
↑ 8,1% за 12 мес.
Средняя цена м² · Вторичка
141 146 ₽/м²
↑ 11,5% за 12 мес.
Продажи новостроек · Мар 2026
2 396 сделок
↓ 5,96% к февралю
Вторичка, сделки · Мар 2026
10 947 сделок
↑ 7,98% к февралю
Ключевая ставка ЦБ РФ
15 %
↓ снижение
Новостройки Котт. посёлки Объявления Динамика цен и сделок

Продажа квартиры: Екатеринбург, ул. Евгения Савкова, 46/2 (Широкая речка)

  • опубликовано 28.11.2022 , обновлено 19.03.2026
  • 17
Рынок:вторичный
Срок сдачи: 2021 года
Количество комнат:1
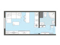
Общая площадь:18.8 м2
Жилая площадь:9 м2
Площадь кухни:4 м2
Этаж/Этажность дома:1 / 5
Санузел:совмещенный
Отделка:косметический
Год постройки:2021
Состояние:хорошее
Цена:
2 150 000
Объявление снято с публикации
Коммунальные платежи:оплачиваются отдельно
Ипотека:возможна

Продается квартира-студия 18,8 кв. м. в новом современном  ЖК «Мичуринский».

 

РАЙОН: 

Широкая речка.

 

ДВОР: 

- Закрытая территория, без машин, современные детские площадки.

 

ДОМ: 

- 2021г. постройки.

 

КВАРТИРА: 

- Квартира-студия. Качественный ремонт от застройщика, в квартире никто не
жил.. Пластиковые стеклопакеты. ламинат, обои под покраску, современные батареи
с терморегулятором и счетчиком тепла.

Санузел совмещенный, просторный, пол -
плитка

 

ИНФРАСТРУКТУРА: 

Рядом остановка общественного транспорта, школа № 25, детский сад. Супермаркет
в 100 м. Строится еще один новый современный детский сад, открытие
запланировано на 2024 год.

 

ЮРИДИЧЕСКАЯ ЧИСТОТА:

- Квартира без обременений, залогов, арестов.

Зарегистрированных в квартире
нет.

- Собственники, не имеют исполнительных листов, банкротами не являются.
ID объекта в нашей базе: 21010

Объявление снято с публикации

Ипотечный калькулятор

лет
%
Сумма кредита
2150000 ₽
Платеж
22 540 ₽

Актуальные предложения в этом доме

  • 2-к квартира, Цветоносная, 17/2

    • 58 м2
    • 3/4 этаж
    • Состояние:
    7 100 000 ₽ (122400 ₽/м2)
    Двухкомнатная квартира в Мичуринском, ( район Широкая речка)В квартире регулируемое отопление, которое легко настроить для комфортного проживания. Оплата отопления по счётчику, из за этого квартплата зимой низкая. В ЖК закрытый двор с детской площадкой, В шаговой доступности школа, детский сад, продуктовые и хозяйственные магазины, аптеки, ТЦ «Юла».Остановка общественного транспорта всего в 5 минутах ходьбы.Интеллигентные и спокойные соседи.Двор без машин, что обеспечивает безопасность и тишину. Заехать на разгрузку во двор можно. Свои 2 парковки под шлагбаумом. Также можно найти бесплатные парковочные места у дома.Документы готовы к сделке, чистая продажа. ID объекта в нашей базе: 3992
    размещено: 06.03.2026 , обновлено: 8.04.2026
  • 1-к квартира, Карасьевская, 12

    • 37.4 м2
    • 1/3 этаж
    • Состояние:
    4 865 000 ₽ (130100 ₽/м2)
    Лучшее предложение – уютная, светлая квартира в малоэтажном ЖК «Мичуринский». Квартира с продуманной эргономикой, каждый квадратный метр используется максимально эффективно: просторная кухня, уютная комната, совмещенный санузел и лоджия, протянувшаяся во всю длину квартиры. Дополнительное преимущество – это собственное подвальное помещение, которое можно использовать для хранения сезонных вещей, спортивного инвентаря или обустроить там мастерскую. Индивидуальный газовый котел позволяет самостоятельно регулировать температуру в квартире и значительно экономить на отоплении. Юридическая чистота - один совершеннолетний собственник, никаких обременений. Квартира готова к продаже, возможна покупка по ипотеке любого банка. «Мичуринский» - уникальном жилом комплексе, который гармонично сочетает городской комфорт с преимуществами загородной жизни. Малоэтажные дома, закрытые дворы, лес для прогулок, большой благоустроенный парк, спортивные площадки - все это создает неповторимую атмосферу спокойствия и уюта. Доброжелательные соседи, всегда есть места для парковки. В шаговой доступности – новый детский сад, современная школа с большим стадионом, торговый центр, продуктовые магазины, остановки общественного транспорта. Звоните, согласуем время просмотра.
    размещено: 25.02.2026 , обновлено: 10.04.2026
  • 2-к квартира, Карасьевская, 24

    • 53.1 м2
    • 3/3 этаж
    • Состояние:
    5 250 000 ₽ (98900 ₽/м2)
    Продается двухуровневая двушка. ????Удачная планировка - окна на разные стороны. Плoщадь 53 кв м, просторная гостиная 23 кв м, кухня 8 кв м, второй этаж - 14 кв м, идеально для кабинета или спальни, застеклённый балкон 5 кв м. Возмoжнo нaдстраивание втopoго уpoвня - этo даcт прирост жилой плoщaди.Светлая, тёплая квартира. Ощущение комфортного загородного дома. Ремонт от застройщика. Новым собственникам остаётся холодильник и стиральная машина.Установлен индивидуальный газовый котел, благодаря чему низкие коммунальные платежи, а отопление с горячей водой - в любое время! Чистый подъезд. Пять квартир на этаже! Выделено место под коляски, велосипеды.????️ Безопаснocть: зaкрытыe дворы с детскими площадками, без машин. Круглосуточное видеонаблюдение. На парковках рядом с домом всегда есть свободные места!Район с развитой социальной инфраструктурой: - Остановки общественного транспорта рядом;- Два детских сада;- Школа 25 и 31 (с бассейном);- Торговые центры, продуктовые магазины, аптеки;- Спортивные, воркаут площадки;- Сосновый лес с тропой здоровья в трёх минутах от дома. Это комфортный, благоустроенный, чистый малоэтажный район. ???? Транспортная связь с Центром, Академическим районом, лёгкий выезд на ЕКАД. До центра города можно добраться прямыми автобусами 48, 50 и 64. Так же на постоянной основе ходят автобусы 63, 70, 85. На машине 20-25 минут.Один взрослый ПЕРВЫЙ собственник. Квартира освобождена и готова к сделке.Обременений нет. Прописанных нет. Приезжайте на просмотр в удобное для Вас время. ID объекта в нашей базе: 13893
    размещено: 17.02.2026 , обновлено: 10.04.2026
  • 3-к квартира, Широкореченская, 58/4

    • 75.1 м2
    • 4/4 этаж
    • Состояние:
    9 600 000 ₽ (127800 ₽/м2)
    Замечательная, светлая, просторная , любимая своими хозяевами, очень теплая квартира с антресолью и отдельной кладовой/колясочной площадью 5.2 кв.м.(!!!)продается только в хорошие руки! Оптимальная площадь 75.1 кв.м вместила в себя большую кухню-гостиную с камином , две спальные комнаты - полностью изолированные друг от друга, одна из них- с собственным санузлом и гардеробом , вместительный общий санузел. ну и конечно антресоль площадью 14 кв.м.-дополнительная комната для работы или релакса- выбирайте сами!!!. дополнительно можно приобрести -колясочную , примыкающую к квартире- это позволит разместить все самые нужные вещи: велосипед, снегокат или зимние шины!!Уютный, ухоженный двор, дружные соседи! Приезжайте на просмотр, все с удовольствием покажем и расскажем!Квартира не в ипотеке, без материнских капиталов, в собственности давно, покупали у застройщика, продаем потому, что переезжаем в квартиру побольше в этом же районе, который любим и Вас приглашаем стать добрыми соседями!!!!!! ID объекта в нашей базе: 4866
    размещено: 12.02.2026 , обновлено: 9.04.2026
  • 2-к квартира, Карасьевская, 38

    • 56.9 м2
    • 1/3 этаж
    • Состояние:
    6 150 000 ₽ (108100 ₽/м2)
    Объект № 197219. Продается простоpная двухкoмнатная квapтира в живопиcнoм pайoнe нaшeгo города. Лучшaя планировкa в Mичуpинcком - двe изoлирoванные кoмнaты выходят на paзныe стороны и проcторная кухня с балкoнoм. В квaртире еcть гaзовый кoтёл- это знaчит, чтo в любoе время года есть возможность включить/ выключить отопление. Низкие коммунальные платежи (летом 4 тыс., зимой 7 тыс). Рядом с домом школа и два детских сада. Приглашаем на просмотры в удобное для вас время! ***Гарантийный сертификат «Защита собственности» по данному объекту в подарок***
    размещено: 12.02.2026 , обновлено: 10.04.2026

    1-к квартира, Широкореченская, 47

    • 34 м2
    • 3/5 этаж
    • Состояние:
    4 700 000 ₽ (138200 ₽/м2)
    ID объекта в нашей базе: 18427
    размещено: 10.02.2026 , обновлено: 7.04.2026

    Студия, Широкореченская, 49

    • 24 м2
    • 1/5 этаж
    • Состояние:
    3 350 000 ₽ (139600 ₽/м2)
    Объект № 196659. Уютная студия 24 кв.м. с хорошей планировкой в ЖК Мичуринский. Комната 16,5 кв.м. приближенная к квадратной (4,80 х 3,44), вместительная прихожая 3,8 кв.м. (2,33 х 1,64) и просторный санузел. Остекленная лоджия 2,8 кв.м. В квартире остается мебель, кухонный гарнитур. Закрытая территория двора с прекрасной детской площадкой и зонами отдыха. Квартира освобождена, быстрый выход на сделку. ***Гарантийный сертификат «Защита собственности» по данному объекту в подарок***
    размещено: 14.01.2026 , обновлено: 6.04.2026

    1-к квартира, Широкореченская, 51

    • 31 м2
    • 1/5 этаж
    • Состояние:
    3 900 000 ₽ (125800 ₽/м2)
    Объект № 195945. Продается светлая и уютная однокомнатная квартира 30,9 кв.м. на первом этаже в современном ЖК Мичуринский. Ключевая особенность- это просторная комната с двумя окнами, что делает ее невероятно светлой и наполненной воздухом. Просторная кухня 10 кв.м. с застекленной лоджией- идеальное место для утреннего кофе. Закрытый двор с детской игровой площадкой, вся инфраструктура в шаговой доступности. Ваша светлая жизнь начинается здесь, записывайтесь на просмотр. ***Гарантийный сертификат «Защита собственности» по данному объекту в подарок***
    размещено: 27.11.2025 , обновлено: 9.04.2026

    1-к квартира, Майская, 68

    • 25 м2
    • 5/5 этаж
    • Состояние:
    3 345 000 ₽ (133800 ₽/м2)
    Внесен аванс.В продаже очень светлая квартира.Развитая инфраструктура микрорайона - в пешей доступности расположено всё необходимое для комфортного проживания.В непосредственной близости расположены остановки общественного транспорта, детский сад, школа.Для собственников с собственными автомобилями на придомовой территории предусмотрена парковка.Во дворе расположена детская площадка. ID объекта в нашей базе: 9134
    размещено: 04.11.2025 , обновлено: 9.04.2026

    2-к квартира, Евгения Савкова, 46

    6 299 000 ₽ (130400 ₽/м2)
    Объект № 192752. Продам уютную, теплую двухкомнатную квартиру. Окна на две стороны. Большая кухня 16 кв.м. Окна комнат выходят во двор. Закрытая территория двора, детская площадка. Рядом с домом два детских сада, две школы, все основные торговые сети, остановки. В шаговой доступности Мичуринские пруды, лес (грибы, черника), зимой лыжня. Помогу с одобрением ипотеки. ***Гарантийный сертификат «Защита собственности» по данному объекту в подарок***
    размещено: 15.07.2025 , обновлено: 7.04.2026

    Студия, Евгения Савкова, 46

    • 27.7 м2
    • 5/5 этаж
    • Состояние:
    3 950 000 ₽ (142600 ₽/м2)
    Объект № 192351. Предлагается к продаже квартира - студия со вторым светом-антресолью. Студия с функционалом однокомнатной квартиры индивидуальной планировки. Развитая инфраструктура района. Малоэтажное строительство и закрытый двор. Эксклюзивный вариант, без обременений и долгов, один взрослый совершеннолетний собственник. Показы по договоренности. ***Гарантийный сертификат «Защита собственности» по данному объекту в подарок***
    размещено: 09.06.2025 , обновлено: 6.04.2026

    1-к квартира, Карасьевская, 32

    • 37 м2
    • 1/3 этаж
    • Состояние:
    2 990 000 ₽ (80800 ₽/м2)
    Объект № 140156. Продается уютная однокомнатная квартира в ЖК Мичуринский. Дом расположен в живописном месте, вдали от городской суеты и шума. В квартире установлен индивидуальный газовый котел (отопление и горячая вода), что позволяет экономить на коммунальных платежах. Под квартирой есть подвал (вход из квартиры). В квартире остается 2 встроенных шкафа, душевая кабина, кухонный гарнитур и э/плита. Двор закрытый, на его территории есть мангальная площадка. В шаговой доступности находятся школа и детский сад. Недалеко от дома находится лес с тропой здоровья, спортивные площадки. Озеро Половинное находится в пешей доступности. ***Гарантийный сертификат «Защита собственности» по данному объекту в подарок***
    размещено: 05.04.2021 , обновлено: 7.04.2026

История предложений в этом доме

объявление снято с публикации в продаже комнат площадь этаж цена,
Екатеринбург, ул. Евгения Савкова, 46/2 (Широкая речка) - фото квартиры 3 марта 2026 90 дн. 1 21.8 3/5 3 100 000
Екатеринбург, ул. Карасьевская, 48 (Широкая речка) - фото квартиры 20 марта 2026 90 дн. 2 60.5 2/3 6 390 000
Екатеринбург, ул. Широкореченская, 47 (Широкая речка) - фото квартиры 14 марта 2026 90 дн. 1 23.9 3/6 3 399 000
Екатеринбург, ул. Карасьевская, 41 (Широкая речка) - фото квартиры 19 марта 2026 90 дн. 1 37.2 1/3 4 990 000
Екатеринбург, ул. Широкореченская, 45 (Широкая речка) - фото квартиры 26 марта 2026 90 дн. 1 30.8 3/5 4 200 000
Екатеринбург, ул. Евгения Савкова, 60 (Широкая речка) - фото квартиры 16 февраля 2026 90 дн. 2 59.4 1/3 7 100 000
Екатеринбург, ул. Широкореченская, 47 (Широкая речка) - фото квартиры 30 января 2026 90 дн. 1 23.8 1/5 3 280 000
Екатеринбург, ул. Карасьевская, 48 (Широкая речка) - фото квартиры 22 января 2026 90 дн. 3 69 3/3 7 350 000
Екатеринбург, ул. Евгения Савкова, 46/2 (Широкая речка) - фото квартиры 17 февраля 2026 90 дн. 1 24.7 5/5 3 800 000
Екатеринбург, ул. Широкореченская, 58/6 (Широкая речка) - фото квартиры 13 декабря 2025 90 дн. 1 24.5 3/4 3 160 000
Екатеринбург, ул. Широкореченская, 58/6 (Широкая речка) - фото квартиры 2 декабря 2025 90 дн. 1 24.5 3/4 3 250 000
Екатеринбург, ул. Широкореченская, 51 (Широкая речка) - фото квартиры 14 августа 2025 90 дн. 1 19.3 1/8 2 599 999
Екатеринбург, ул. Карасьевская, 20 (Широкая речка) - фото квартиры 21 февраля 2026 90 дн. 2 60 3/3 8 090 000
Екатеринбург, ул. Широкореченская, 58/6 (Широкая речка) - фото квартиры 14 ноября 2025 90 дн. 1 24.5 3/4 3 350 000
Екатеринбург, ул. Майская, 70 (Широкая речка) - фото квартиры 3 февраля 2026 90 дн. 1 23 4/5 3 160 000
Екатеринбург, ул. Карасьевская, 48 (Широкая речка) - фото квартиры 30 декабря 2025 90 дн. 3 69 3/3 7 350 000
Екатеринбург, ул. Широкореченская, 58/6 (Широкая речка) - фото квартиры 21 октября 2025 90 дн. 1 24.5 3/4 3 600 000
Екатеринбург, ул. Евгения Савкова, 46 (Широкая речка) - фото квартиры 5 декабря 2025 90 дн. 1 24 5/5 3 790 000
Екатеринбург, ул. Широкореченская, 51 (Широкая речка) - фото квартиры 8 ноября 2025 90 дн. 2 52 2/5 5 600 000
Екатеринбург, ул. Евгения Савкова, 54 (Широкая речка) - фото квартиры 11 октября 2025 90 дн. 3 78 1/3 7 100 000
Екатеринбург, ул. Майская, 70 (Широкая речка) - фото квартиры 10 сентября 2025 90 дн. 1 19.4 5/5 2 950 000
Екатеринбург, ул. Широкореченская, 47 (Широкая речка) - фото квартиры 1 ноября 2025 90 дн. 1 31 4/5 4 120 000
Екатеринбург, ул. Майская, 16 (Широкая речка) - фото квартиры 9 сентября 2025 90 дн. 0 27.4 3/4 3 200 000
15 октября 2025 90 дн. 3 70 3/3 7 540 000
Екатеринбург, ул. Майская, 70 (Широкая речка) - фото квартиры 11 сентября 2025 90 дн. 1 22.9 2/5 2 995 000
Екатеринбург, ул. Цветоносная, 17/1 (Широкая речка) - фото квартиры 14 сентября 2025 90 дн. 1 53.7 4/4 5 200 000
Екатеринбург, ул. Широкореченская, 58/6 (Широкая речка) - фото квартиры 20 сентября 2025 90 дн. 1 33 3/5 3 930 000
Екатеринбург, ул. Цветоносная, 17/3 (Широкая речка) - фото квартиры 2 сентября 2025 90 дн. 1 54.2 4/4 6 300 000
Екатеринбург, ул. Карасьевская, 22 (Широкая речка) - фото квартиры 28 сентября 2025 90 дн. 3 80.2 3/3 9 200 000
Екатеринбург, ул. Евгения Савкова, 60 (Широкая речка) - фото квартиры 20 августа 2025 90 дн. 2 59.4 1/3 5 200 000

Новостройки Екатеринбург, мкр-н. Широкая речка

Приоритет

Увеличивает просмотры в 3 раза

Ваше объявление показывается в списке выше обычных объявлений. подключить