Top.Mail.Ru
На Метре реклама - только нормальная. Никакого шок-контента.
Помогайте независимому ресурсу, как он помогает вам. Удачи!
Средняя цена м² · Новостройки
178 767 ₽/м²
↑ 8,1% за 12 мес.
Средняя цена м² · Вторичка
141 146 ₽/м²
↑ 11,5% за 12 мес.
Продажи новостроек · Мар 2026
2 396 сделок
↓ 5,96% к февралю
Вторичка, сделки · Мар 2026
10 947 сделок
↑ 7,98% к февралю
Ключевая ставка ЦБ РФ
15 %
↓ снижение
Новостройки Котт. посёлки Объявления Динамика цен и сделок

Продажа квартиры: Екатеринбург, ул. переулок Рижский, 2, ЖК "Рижский" (Очередь 1)

  • опубликовано 1.04.2023 , обновлено 19.11.2025
  • 36
Рынок:строящееся жилье
Срок сдачи:2 квартал 2024 года
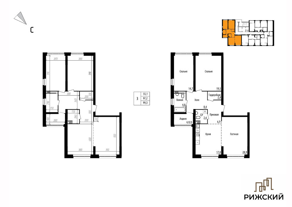
Количество комнат:3
Общая площадь:97.2 м2
Жилая площадь:55.1 м2
Площадь кухни:55.1 м2
Этаж/Этажность дома:3 / 24
Отделка:Без отделки
Цена:
12 000 000
Объявление снято с публикации
Условия продажи:«чистая» продажа
Объявление снято с публикации

Ипотечный калькулятор

лет
%
Сумма кредита
12000000 ₽
Платеж
22 540 ₽

История предложений в этом доме

объявление снято с публикации в продаже комнат площадь этаж цена,
Екатеринбург, ул. Титова, 2 (Горный щит) - фото квартиры 13 мая 2025 90 дн. 1 36.5 5/21 6 350 000
1 августа 2024 90 дн. 2 62.6 13/24 7 900 000
Екатеринбург, ул. Титова, 2 (Вторчермет) - фото квартиры 14 сентября 2024 90 дн. 2 54 5/16 6 900 000
Екатеринбург, ул. Титова, 2 (Вторчермет) - фото квартиры 14 августа 2024 90 дн. 3 56 5/17 6 700 000
24 октября 2023 90 дн. 2 56.8 10/24 6 077 600
18 августа 2023 90 дн. 1 37.8 11/24 4 536 000
14 марта 2023 90 дн. 1 37.8 7/24 4 536 000
1 ноября 2023 90 дн. 2 71.5 24/24 7 293 000
30 декабря 2023 90 дн. 2 65.1 24/24 6 965 700
29 ноября 2023 90 дн. 2 71.3 23/24 7 272 600
6 октября 2023 90 дн. 1 37.5 23/24 4 687 500
19 мая 2023 90 дн. 3 81.5 23/24 7 742 500
12 июля 2023 90 дн. 1 44.6 23/24 5 352 000
23 августа 2023 90 дн. 2 64.1 23/24 6 730 500
30 января 2024 90 дн. 2 71.3 22/24 7 272 600
28 октября 2023 90 дн. 1 37.5 22/24 4 687 500
19 июля 2023 90 дн. 3 81.5 22/24 7 742 500
18 августа 2023 90 дн. 1 44.6 22/24 5 352 000
6 декабря 2023 90 дн. 2 64.1 22/24 6 858 700
27 июля 2023 90 дн. 2 71.3 21/24 7 130 000
15 ноября 2023 90 дн. 1 37.5 21/24 4 687 500
14 сентября 2023 90 дн. 3 81.5 21/24 7 742 500
29 августа 2023 90 дн. 1 44.6 21/24 5 352 000
29 марта 2024 90 дн. 2 64.1 21/24 7 051 000
22 сентября 2023 90 дн. 1 37.5 20/24 4 500 000
12 октября 2023 90 дн. 1 39.1 20/24 4 887 500
2 сентября 2023 90 дн. 2 57.6 20/24 6 048 000
8 июня 2023 90 дн. 2 70.9 20/24 7 090 000
31 марта 2023 90 дн. 1 39.8 20/24 4 577 000
25 ноября 2023 90 дн. 3 80.8 20/24 7 756 800

Новостройки Екатеринбург, мкр-н. Вторчермет

Приоритет

Увеличивает просмотры в 3 раза

Ваше объявление показывается в списке выше обычных объявлений. подключить