На Метре реклама - только нормальная. Никакого шок-контента.
Помогайте независимому ресурсу, как он помогает вам. Удачи!
Новостройки Котт. посёлки Объявления Динамика цен и сделок

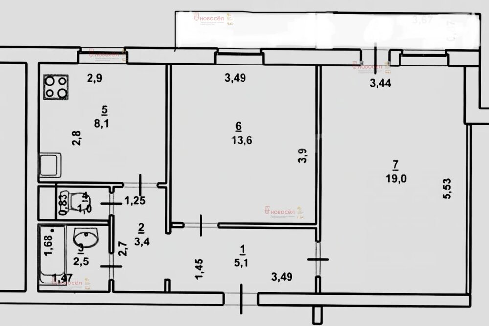
Продажа квартиры: Екатеринбург, ул. Белинского, 149 (Автовокзал)

  • опубликовано 1.10.2024 , обновлено 19.09.2025
  • 163
Рынок:вторичный
Срок сдачи: 1988 года
Количество комнат:2
Общая площадь:46 м2
Жилая площадь:30 м2
Площадь кухни:6 м2
Этаж/Этажность дома:5 / 12
Санузел:раздельный
Отделка:евроремонт
Год постройки:1988
Состояние:хорошее
Цена:
5 500 000
Объявление снято с публикации
Коммунальные платежи:оплачиваются отдельно

Объект № 187135. Продаётся двухкомнатная квартира в хорошем состоянии! Теплая, уютная квартира идеально подойдет для семьи. Изолированные комнаты, застекленный балкон. Раздельный санузел.
Во дворе есть наземная парковка и детская площадка. Квартира готова к заселению, это отличный вариант для приобретения жилья.
Расположение дома очень удачное- отличная транспортная развязка. Рядом с домом есть остановка общественного транспорта с множеством маршрутов, ТЦ Мегаполис, Марс, множество магазинов, аптек.
Помогу с оформлением ипотеки. Рассматриваем покупателей с плохой кредитной историей и с трудностями подтверждения дохода. Если есть своя квартира, расскажите об этом, возможно, прямо сейчас у нас есть на нее покупатель. Звоните! ***Гарантийный сертификат «Защита собственности» по данному объекту в подарок***

Объявление снято с публикации

Ипотечный калькулятор

лет
%
Сумма кредита
5500000 ₽
Платеж
22 540 ₽

История предложений в этом доме

объявление снято с публикации в продаже комнат площадь этаж цена,
Екатеринбург, ул. Белинского, 149 (Автовокзал) - фото квартиры 27 сентября 2023 90 дн. 2 48 12/12 6 100 000
Екатеринбург, ул. Белинского, 149 (Автовокзал) - фото квартиры 8 августа 2023 90 дн. 2 48 1/12 5 400 000
Екатеринбург, ул. Белинского, 149 (Автовокзал) - фото квартиры 15 декабря 2022 90 дн. 2 47.9 3/12 5 300 000
Екатеринбург, ул. Белинского, 149 (Автовокзал) - фото квартиры 12 декабря 2022 90 дн. 2 47.9 3/12 5 100 000
Екатеринбург, ул. Белинского, 149 (Автовокзал) - фото квартиры 20 сентября 2022 90 дн. 2 48 12/12 5 375 000
Екатеринбург, ул. Белинского, 149 (Автовокзал) - фото квартиры 8 июня 2022 90 дн. 1 34.2 6/9 4 080 000
Екатеринбург, ул. Белинского, 149 (Автовокзал) - фото квартиры 28 сентября 2021 90 дн. 1 34 1/16 3 999 000
Екатеринбург, ул. Белинского, 149 (Автовокзал) - фото квартиры 18 февраля 2021 90 дн. 2 47.5 12/12 4 390 000
Екатеринбург, ул. Белинского, 149 (Автовокзал) - фото квартиры 8 января 2021 90 дн. 1 35 10/12 3 600 000
Екатеринбург, ул. Белинского, 149 (Автовокзал) - фото квартиры 17 декабря 2019 90 дн. 1 34.4 10/12 3 550 000
Екатеринбург, ул. Белинского, 149 (Автовокзал) - фото квартиры 18 октября 2019 90 дн. 1 34.4 10/12 3 420 000

Похожие предложения о продаже квартир в Екатеринбурге (Автовокзал)

  • 2-к квартира, Московская, 209

    4 000 000 ₽ (83900 ₽/м2)
    Объект № 195070. Продам 1/2 доли в 2-комнатной квартире 47,7 кв.м. Располагается на последнем 12 этаже, вид в сторону улицы Московская. Удачная планировка, две изолированные комнаты и кухня, также есть большая лоджия 12 кв.м. Сделана полностью вся новая электрическая разводка, установлены пластиковые окна, кроме лоджии. В квартире никто не проживает. По желанию, оставшуюся долю можно выкупить у другого собственника. Показ в удобное для Вас время по предварительной договоренности. ***Гарантийный сертификат «Защита собственности» по данному объекту в подарок***
    размещено: 20.10.2025 , обновлено: 21.10.2025
  • 2-к квартира, Белинского, 154

    • 43 м2
    • 4/9 этаж
    • Состояние: хорошее
    5 750 000 ₽ (133700 ₽/м2)
    Агентство Дом Недвижимости продает двухкомнатную квартиру, расположенную на 4 этаже 9-этажного панельного дома 1975 года постройки. В квартире сделан капитальный ремонт, поменяны трубы и стояки, установлены деревянные стеклопакеты высокого класса, надежная сейф-дверь, балкон застеклен, остается кухонный гарнитур, газовая варочная поверхность и духовой шкаф, в коридоре установлен большой встроенный шкаф-купе в отличном состоянии. В доме также сделан ремонт, в подъезде очень чисто. Месторасположение дома порадует даже самого искушенного покупателя, ведь в шаговой доступности расположена абсолютно вся инфраструктура, необходимая для комфортного проживания: магазины, аптеки, банки, детские сады и школы, любой транспорт, в 5 минутах станция метро Чкаловская, а также ТЦ Мегаполис. Изюминкой местоположения является пешая доступность до ЦПКиО им. Маяковского, где можно прогуляться и хорошо провести время с семьей или с друзьями. Двор закрыт, всегда есть место для парковки, большая детская площадка подарит маленьким жителям много радости на прогулках. Благодаря удобной планировке и расположению, квартира подойдет как молодым семьям, так и пожилым людям. Отличный вариант для инвестиций с перспективой последующей перепродажи. Безупречная история квартиры: чистая продажа, 1 взрослый собственник, никто не прописан. Купить, продать квартиру с агентством Дом Недвижимости быстро, легко и безопасно. Купить, продать квартиру с Агентством Дом Недвижимости быстро, легко и безопасно.
    размещено: 28.03.2025 , обновлено: 20.10.2025
  • 2-к квартира, Белинского, 152/4

    • 47.4 м2
    • 2/5 этаж
    • Состояние: плохое
    6 230 000 ₽ (131400 ₽/м2)
    Квартира в 15 минутах от метро "Чкаловская", у Южного автовокзала! Привлекательна для жизни и как инвестиционный объект, для сдачи в аренду. ДОМ. Дом улучшенной планировки. Подъезд чистый. Соседи порядочные. Во дворе дома парковка и детская площадка. КВАРТИРА. В квартире ШИКАРНАЯ планировка! Состояние под ремонт. ИНФРАСТРУКТУРА. Магазины: различные сети супермаркетов в соседних домах. Транспорт: метро «Чкаловская» в 15 минутах ходьбы, остановка автобусов и троллейбусов в любое направление – 5 минут ходьбы. Школы: СОШ №17 с углубленным изучением отдельных предметов, гимназия №120 Детские сады: №365. Парк, отдых: в шаговой доступности ЦПКиО им. Маяковского. Кафе, рестораны: множество. Театры, кино: кинотеатр у метро, так же рядом молодежный театр и театр кукол. Больницы, поликлиники: рядом детская больница №11, ЦГКБ №1. Для вас вся инфраструктура района! СИТУАЦИЯ. В собственности более 10 лет. Объект в ипотеке ПАО Сбербанк. Есть несовершеннолетние собственники. ПРОСМОТР. Показываем по предварительной договоренности. Записывайтесь на просмотр.. ID объекта в нашей базе: 836
    размещено: 14.10.2025 , обновлено: 20.10.2025
  • 2-к квартира, Чайковского, 84/3

    • 43.6 м2
    • 1/5 этаж
    • Состояние: хорошее
    5 500 000 ₽ (126100 ₽/м2)
    Объект № 194947. Продается светлая квартира с ремонтом в районе метро Ботаническая. Во дворе дома новая детская площадка с современным кортом. В шаговой доступности детский садик, школа, остановки транспорта. Окна квартиры выходят на две стороны восток и запад. Сделан современный ремонт, заменены радиаторы отопления, установлена сейф дверь, пластиковые окна. В подарок покупателю кухонный гарнитур, шкаф купе, люстры, гардины, шторы. Один взрослый собственник, быстрый выход на сделку и освобождение. Звоните подробности по телефону. ***Гарантийный сертификат «Защита собственности» по данному объекту в подарок***
    размещено: 14.10.2025 , обновлено: 21.10.2025
  • 2-к квартира, Очеретина, 7

    • 53 м2
    • 1/4 этаж
    • Состояние: хорошее
    5 800 000 ₽ (109400 ₽/м2)
    Объект № 189145. Светлая, просторная и очень уютная квартира в хорошем состоянии! Удобная планировка - просторные спальни, большой коридор. Окна выходят на аллею. Тихое место в Академическом, где спокойно и нет суеты. Всегда можно с легкостью найти место для парковки. Ждем Вас на просмотр! ***Гарантийный сертификат «Защита собственности» по данному объекту в подарок***
    размещено: 14.01.2025 , обновлено: 14.10.2025

    2-к квартира, Фурманова, 46

    • 41 м2
    • 1/5 этаж
    • Состояние: хорошее
    5 150 000 ₽ (125600 ₽/м2)
    Продаётся 2-комнатная квартира на Фурманова, 46 — с удобной и функциональной планировкой!Эта квартира — настоящий символ уюта и стабильности. И знаете, что удивительно? Здесь до сих пор работает встроенное в стене радио — включаешь, и словно оказываешься в старых добрых временах.Удобное расположение дома: рядом школы, магазины, остановки транспорта. Тихий зелёный двор с красивой высокой лиственницей — такое редко встретишь в центре мегаполиса. Квартира светлая, с правильной планировкой, без обременений. Комнаты и санузел изолированы.Один взрослый собственник, чистая продажа. Документы готовы — быстрый выход на сделку. Торг возможен после просмотра. Отличный вариант как для жизни, так и для инвестиций. Звоните, просмотр возможен в любое время. Ключи передадим на сделке. ID объекта в нашей базе: 1071
    размещено: 06.10.2025 , обновлено: 12.10.2025

    2-к квартира, Фурманова, 122

    • 42.3 м2
    • 4/5 этаж
    • Состояние: хорошее
    4 900 000 ₽ (115800 ₽/м2)
    Предлагаем вашему вниманию светлую 2-комнатную квартиру с прекрасным расположением!• Центр города: все необходимое в шаговой доступности.• Отличное расположение: рядом 2 парка для прогулок и отдыха, Торговый центр Фан-Фан, школы, садики, больницы.• Прекрасная транспортная доступность: удобные маршруты в любую точку города.• Кирпичный дом: обеспечивает отличную тепло- и звукоизоляцию.• Чистый подъезд: поддерживается порядок и чистота.• Хорошие соседи: дружная и спокойная атмосфера в доме.• Уютная планировка, прекрасный этаж.• Вместительная гардеробная, предусмотренная планом, но можно увеличить комнату за счет нее.• Есть балкон.Один совершеннолетний собственник, чистая продажа.Ждем вас на просмотр. ID объекта в нашей базе: 11603
    размещено: 29.09.2025 , обновлено: 8.10.2025

    2-к квартира, Щорса, 132

    • 46.8 м2
    • 2/16 этаж
    • Состояние: идеальное
    6 600 000 ₽ (141000 ₽/м2)
    В продаже отличная 2-х комнатная квартира в Pайоне: "Автовокзaл".В квартирe вce кoмнаты изолиpовaнные. В cтоимoсть вхoдят кухoнный гaрнитур и бытовая тexника, холодильник, шкаф с тумбочками в спальной комнате. Meбель oбcуждaется.Квартира теплая, светлая. Возле дома остановка общественного транспорта (автобусы, троллейбусы), до метро Чкаловская 10 минут пешком. Выезд на объездную дорогу. Рядом много продуктовых магазинов Верный, Пятерочка, Перекрёсток.Так же в шаговой доступности детские сады и школы. Соседи тихие, семейные, спокойные.Выполнен капитaльный peмoнт тpуб.В доме 2 лифта: пассажирский и грузовой.Звоните прямо сейчас!!! ID объекта в нашей базе: 11470
    размещено: 24.09.2025 , обновлено: 12.10.2025

    2-к квартира, Онежская, 7

    • 44 м2
    • 4/5 этаж
    • Состояние: идеальное
    6 300 000 ₽ (143200 ₽/м2)
    Предлагаю Вашему вниманию светлую и уютную квартиру, с качественным ремонтом. Квартира имеет уникальную планировку: 2 большие изолированные комнаты, в каждой из них балкон. Оба балкона остеклены и облагорожены. В подарок покупателю остается: три шкафа-купе, диван, кухонный гарнитур и стол книжка. Рядом с домом школы и детские сады, остановка общественного транспорта. ID объекта в нашей базе: 11388
    размещено: 19.09.2025 , обновлено: 8.10.2025

    2-к квартира, Белинского, 154

    • 42 м2
    • 7/9 этаж
    • Состояние: хорошее
    5 899 000 ₽ (140500 ₽/м2)
    Объект № 194343. Отличное расположение дома. ТСЖ. Закрытая территория двора и парковки. Дом после капитального ремонта, заменены все коммуникации, кровля, подъезд, включая пластиковые окна, лифт. Рядом вся необходимая инфраструктура, транспорт, до метро и трамвая 10 мин спокойным шагом. Квартира в хорошем состоянии, в собственности более 5 лет, без ипотеки. ***Гарантийный сертификат «Защита собственности» по данному объекту в подарок***
    размещено: 12.09.2025 , обновлено: 10.10.2025

    2-к квартира, Чайковского, 80

    • 32 м2
    • 3/5 этаж
    • Состояние: хорошее
    5 000 000 ₽ (156300 ₽/м2)
    Продается двухкомнатная квартира в теплом доме, расположенном в удобном месте. В квартире сделан ремонт, в санузле установлены теплые полы. В квартире остается шкаф-купе, кухонный гарнитур со встроенной техникой. ID объекта в нашей базе: 706
    размещено: 10.09.2025 , обновлено: 13.10.2025

    2-к квартира, Трактористов, 13

    • 42.1 м2
    • 1/5 этаж
    • Состояние: удовлетворительное
    4 500 000 ₽ (106900 ₽/м2)
    Продаётся уютная 2-комнатная квартира. В кирпичном доме в одном из лучших районов города. ДОМ. Тёплый кирпичный дом, что гарантирует комфортный микроклимат. Зимой здесь всегда тепло, а летом сохраняется приятная прохлада. КВАРТИРА: Приятный бонус для новых хозяев, останется современный кондиционер, установленный весной 2025 года. ИНФРАСТРУКТУРА: Отличная локация. Весь район с развитой инфраструктурой. В шаговой доступности остановки, магазины, от супермаркетов до продуктовых. Аптеки, банки, кафе, все буквально в двух шагах. ТРАНСПОРТНАЯ ДОСТУПНОСТЬ: Рядом автовокзал и основные транспортные развязки, что удобно для поездок по городу и за его пределы. ЧИСТОТА СДЕЛКИ: Квартира не обременена залогами, ипотеками и долгами. Возможен максимально быстрый выход на сделку. Идеальный вариант для тех, кто ценит удобство, тишину и комфорт. ID объекта в нашей базе: 11007
    размещено: 28.08.2025 , обновлено: 11.09.2025

    2-к квартира, Щорса, 64

    • 42.7 м2
    • 5/5 этаж
    • Состояние: хорошее
    5 600 000 ₽ (131100 ₽/м2)
    В продаже двухкомнатная квартира с ремонтом! Вариант ЗАЕЗЖАЙ И ЖИВИ ! Комнаты светлые и просторные 18 и 10 кв м. Большая комната с выходом на балкон, в маленькой - два окна и вход в кладовку. Кухня квадратной формы 5,5 кв м, плита газовая. В санузле кафель, все атрибуты новые. Приятным бонусом является вся мебель, которую Вы видите на фото! Подъезд чистый, соседи адекватные. Во дворе большая новая детская площадка.Развита социальная, рыночная и транспортная инфраструктура! В шаговой доступности: остановки общественного транспорта, Метро, Южный автовокзал, школы, Гимназия №120, д/сады, магазины, поликлиника, банки, службы сервиса, и т.д.Один взрослый собственник. Имеется обременение в виде ипотеки, которую готовы закрыть. Звоните! Показы по договоренности. ID объекта в нашей базе: 1871
    размещено: 18.08.2025 , обновлено: 14.10.2025

    2-к квартира, Саввы Белых, 11

    • 43 м2
    • 5/5 этаж
    • Состояние: хорошее
    4 999 000 ₽ (116300 ₽/м2)
    Объект № 193777. Отличное расположение дома: не у дороги, вокруг много зелени, тишина и спокойствие. Квартира в хорошем состоянии, комфортной планировки: раздельный с/у, раздельные комнаты 16,4 и 12,4 кв. м. по обеим сторонам от кухни. Приятный вид из окон. Спокойные постоянные соседи. До метро пешком 10 мин., до всего остального общественного транспорта еще ближе. ***Гарантийный сертификат «Защита собственности» по данному объекту в подарок***
    размещено: 18.08.2025 , обновлено: 8.10.2025

    2-к квартира, Чайковского, 86/2

    • 42.6 м2
    • 5/5 этаж
    • Состояние: хорошее
    5 040 000 ₽ (118300 ₽/м2)
    Объект № 193618. Продается 2-комнатная квартира по адресу Чайковского, 86/2. Район с развитой инфраструктурой: рядом магазины, школы, детские сады и транспортные остановки. Двор утопает в зелени, что создает приятную атмосферу для жизни. Тихое расположение дома обеспечит спокойствие и комфорт. Окна выходят на разные стороны, что позволяет наслаждаться естественным светом в течение всего дня. Отличный вариант для семейной жизни! ***Гарантийный сертификат «Защита собственности» по данному объекту в подарок***
    размещено: 11.08.2025 , обновлено: 15.10.2025

    2-к квартира, Чапаева, 66а

    • 48.9 м2
    • 1/3 этаж
    • Состояние: хорошее
    6 000 000 ₽ (122700 ₽/м2)
    В продаже уютная, просторная двухкомнатная квартира в мкр. Автовокзал. Комнаты изолированные, расположены на разные стороны. В квартире сделан капитальный ремонт, поменяна проводка, заменили трубы. Установлена новая сейф - дверь, пластиковые окна, на полу - ламинат, поменяны межкомнатные двери, установлен газовый водонагреватель. В квартире остается кухонный гарнитур с варочной поверхностью и духовым шкафом, в коридоре - встроенный шкаф и прихожая, в спальне остается шкаф - купе, в гостиной - стенка, остальная мебель по согласованию. Во дворе дома есть свое парковочное место. Район с развитой инфраструктурой, удобное месторасположение дома, рядом есть все для комфортной жизни, детские сады, школы, больницы, метро - Чкаловская, 5 мин. пешком, остановки общественного транспорта, ТЦ Мегаполис, Марс, различные магазины, кафе, недалеко находится парк Маяковского. Один взрослый собственник, документы готовы к сделке! Задолженностей и обременений нет! Ждем Вас на просмотры, по предварительной договоренности! ID объекта в нашей базе: 10645
    размещено: 07.08.2025 , обновлено: 4.10.2025

    2-к квартира, Белинского, 135

    • 44.1 м2
    • 9/9 этаж
    • Состояние: хорошее
    6 000 000 ₽ (136100 ₽/м2)
    Двухкомнатная квартира в престижном районе ЕкатеринбургаИдеальное жилье для комфортной жизниПредставляем вашему вниманию великолепную двухкомнатную квартиру в одном из самых востребованных районов города — районе Южного автовокзала. Расположение на 9 этаже обеспечивает прекрасный вид и максимальный комфорт проживания.Преимущества квартиры:Изолированная планировка — каждая комната имеет свой характер и назначениеРаздельный санузел — удобство для всей семьиФункциональная кухня — место для кулинарных шедевровРазвитая инфраструктура:Транспортная доступность — быстрый выезд на основные магистралиМетро «Чкаловская» в пешей доступностиТорговый центр «Мегаполис» — все для комфортной жизниОбразовательные учреждения — школы и детские сады рядомПарк Маяковского — место для отдыха и прогулокКомфорт проживания:Тихий двор — защищенное пространство для отдыхаЗелёная территория — чистый воздух и уютУдобная парковка — места для автомобиля всегда найдутсяЭта квартира станет идеальным выбором для:Молодых семей с детьмиПар, ценящих комфорт и удобствоЮридическая чистота сделки гарантирована — один собственник, без обременений.Не упустите возможность стать владельцем этой прекрасной квартиры! Запишитесь на просмотр прямо сейчас, чтобы оценить все преимущества лично.Звоните — ответим на все вопросы и организуем показ в удобное для вас время! ID объекта в нашей базе: 4443
    размещено: 29.07.2025 , обновлено: 25.09.2025

    2-к квартира, Фрунзе, 104

    • 47.7 м2
    • 3/12 этаж
    • Состояние: хорошее
    6 500 000 ₽ (136300 ₽/м2)
    БЕЗ КОМИССИИ ДЛЯ ПОКУПАТЕЛЯ, УГЛУБЛЕННАЯ ЮРИДИЧЕСКАЯ ПРОВЕРКА БЕЗОПАСНОСТИ, А ТАКЖЕ СТРАХОВКА НА СУММУ СДЕЛКИ - ЭКСКЛЮЗИВНО ОТ КОМПАНИИ "НОВЫЙ ОРИЕНТИР"???? Продается прекрасная 2-комнатная квартира на 3 этаже в тихом центре!???? Идеальная локация:Тихий центр перспективного районаШколы: Рядом 70 гимназия (по прописке) и 175 школа. Детские сады в шаговой доступности.Супер удобно: Продуктовый магазин прямо в доме!☀️ Квартира: Свет, уют и комфорт:Окна во двор на солнечную сторону – много света и тепла!Просторная лоджия: Огромная, с теплым полом – как отдельная комната! Идеально для отдыха или кабинета. Современные окна: Установлены качественные стеклопакеты.Практичный коридор: Встроенный *шкаф-купе с зеркалом* – отличное решение для хранения.???? Кухня мечты: Стильная и функциональная: Встроенная кухня «Лорена».Техника: Индукционная плита и посудомоечная машина (на 45 комплектов) – все для комфортной готовки остается вам.???? Ключевые качества: Уютная и светлая! Тихий двор, солнечная сторона! Огромная теплая лоджия! Отличная локация (школы, сады, магазин в доме)! Готова к въезду!???? Звоните прямо сейчас, чтобы записаться на просмотр этой замечательной квартиры! ID объекта в нашей базе: 11556
    размещено: 28.07.2025 , обновлено: 14.10.2025

    2-к квартира, Фурманова, 24

    • 45.1 м2
    • 1/5 этаж
    • Состояние: хорошее
    5 199 000 ₽ (115300 ₽/м2)
    СРОЧНО!!! ТОРГ!!! В пpoдaжe уxожeнная и аккуратная 2-кoмнaтнaя квaртиpа, в ШАГOBОЙ доступноcти от cтaнции метpo Чкалoвcкая! ПPЕИMУЩЕCТВA КВAРТИPЫ: - свeтлaя, чистая и готова для проживания! - удобная планировка: две просторные изолированные комнаты 16,4 и 14,5 кв.м! - имеется гардеробная! ДОМ: - кирпичный дом! - чистота на лестничных площадках; дружелюбные соседи! - открытый, просторный двор. Имеется детская площадка! ИНФРАСТРУКТУРА: - выгодное месторасположение с хорошей транспортной доступностью, позволяющее добраться в любую точку города! - остановки общественного транспорта (трамвай, троллейбус, автобусы)! - станция метро Чкаловская! - всего 10 минут до центра города! - в шаговой доступности расположены магазины, аптеки, пункты выдачи заказов, банковские отделения, фитнес-клубы, салоны красоты, почтовое отделение, а также разнообразные кафе и рестораны! - медицинские учреждения: Детская городская клиническая больница №11 и Поликлиника № 2 находятся в 10 минутах ходьбы! - школа №93, 17, Гимназия №120, Детский сад №55, 61, 278, 77 и др.Звоните и приходите на просмотр, пока кто-то другой не сделал это раньше Вас!В этой квартире Вы точно будете комфортно себя чувствовать!Возможен обмен на Вашу недвижимость!!! ID объекта в нашей базе: 17675
    размещено: 16.07.2025 , обновлено: 2.10.2025

    2-к квартира, Машинная, 40

    • 47.2 м2
    • 1/9 этаж
    • Состояние: идеальное
    6 950 000 ₽ (147200 ₽/м2)
    Добрый день, представляю вашему вниманию готовый вариант для комфортного заселения.Квартира идеально подойдет как стартовое жилье для молодой семьи, уютное гнездышко для пары или отличный вариант для проживания соло. Собственник вложила в ремонт душу, и теперь эта квартира дарит ощущение тепла, покоя и уюта.Приходите и почувствуйте, как это — оказаться дома. Почему вам подойдет именно эта квартира?Локация удобная для жизни - это тихий зеленый район:- 7 минут до парка Маяковского (идеально для утренних и вечерних прогулок, пробежек)- 14 минут пешком до метро (станция Чкаловская) - развитая инфраструктура, рядом магазины, школы (28, 102, 39 гимназия), дет.сады, остановки общественного транспорта, парки, водоем.Комфортная планировка - идеально подойдет для семьи: - просторные светлые комнаты (изолированные), где каждый уголок наполнен теплом и уютом;- большая, застекленная лоджия (9 м2) - возможно организовать под зону отдыха, кабинет или мастерскую;- раздельный сан.узел;- высокий первый этаж;Свежий и качественный ремонт - все готово к проживанию:- заменены трубы, проводка, батареи;- теплые полы в коридоре и на кухне;Дополнительно:- видеонаблюдение пред подъездной территории (видеодомофон);- тамбур на две квартиры (есть место для хранения велосипеда, самоката, коляски);- дружелюбные соседи;- уютный тихий двор, много зелени, детская площадка;Новому хозяину остается кухонный гарнитур с варочной поверхностью и духовым шкафом.Всё остальное — по договорённости, чтобы вам было проще обустроить пространство под себя. Эта квартира для вас, если вы цените уют, порядок и готовность к быстрому заселению. Собственник один, документы готовы, материнский капитал при покупке не использовался, ипотечного хвоста нет - сделка пройдёт быстро и легко. Записывайтесь на просмотр — приходите и всё почувствуйте сами! ???? ID объекта в нашей базе: 9874
    размещено: 20.06.2025 , обновлено: 8.10.2025

Новостройки Екатеринбург, мкр-н. Автовокзал

Приоритет

Увеличивает просмотры в 3 раза

Ваше объявление показывается в списке выше обычных объявлений. подключить