Дом - д. Ключи (г.о. Сысертский), ул. Осенняя, 19
городской округ Сысертский
(Челябинское направление)
Центр Екатеринбурга → 57 км
Центр Екатеринбурга → 57 км
Объект №636.
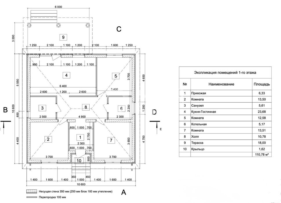
Дом в деревне Ключи – простота, уют и природа! Площадь дома: 110,78 м². Участок: 7,13 соток.Уютный дом в деревне Ключи – это ваш шанс приобрести комфортное жилье в окружении природы с возможностью создать интерьер под себя.Что внутри:Три спальни – отличное решение для большой семьи или приема гостей.Просторная кухня-гостиная – место для теплых вечеров и семейных обедов.Совмещенный санузел – компактно и удобно.Уютная терраса, где можно наслаждаться свежим воздухом и видом на природу.Особенности:Предчистовая отделка, чтобы вы могли воплотить свои дизайнерские мечты.Участок 7,13 соток, идеально подходящий для обустройства зоны отдыха, сада или игровой площадки.Окружение:Поселок окружен сосновым лесом, который подарит вам здоровую экологию, тишину и уединение. Это место, где можно забыть о городской суете и насладиться спокойствием.???? Деревня Ключи – идеальный выбор для тех, кто хочет жить в гармонии с природой, но с комфортом.???? Позвоните прямо сейчас, чтобы уточнить детали и договориться о просмотре!???? Ваш дом в Ключах ждет вас – начните новую жизнь в гармонии и уюте! ???? ????
размещено: 15.04.2026








