PepsiCo пытается уменьшить площадь предполагаемой жилой застройки на месте «Уралпластика»
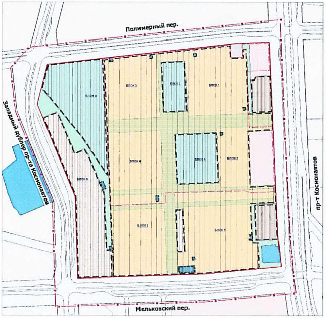
Компания «Пепсико холдингс» подала в Арбитражный суд Свердловской области иск к региональному минстрю. Истец просит признать незаконным приказ министерства № 1022-П (от 27.09.17) утвердивший проект планировки и межевания территории в границах переулка Полимерного – проспекта Космонавтов и улицы Завокзальной.
Фактически в приказе речь идёт о постройке жилого комплекса на бывшей территории завода «Уралпластик». Как ранее сообщалось, застройкой указанной территории займётся московский девелопер ГК «ПИК».
По мнению «Пепсико холдингс», предусмотренное приказом расширение переулка Полимерного потребует изъятия части земель, на которых располагается завод PepsiCo. Что противоречит российскому законодательству. Предварительное заседание по данному иску запланировано на 10 января 2018 года.
Согласно упомянутому приказу № 1022-П общая площадь застройки на месте бывшей территории завода «Уралпластик» составит 26,86 га, в том числе 25,34 га – площадь многоэтажной жилой застройки. Высотность домов – от 16 до 25 этажей. Ожидается, что проживать здесь будет 10 тыс. человек.
Как ранее сообщал METRTV.ru, в приказе сделана опечатка – в графе с указанием площади жилого фонда прописано следующее: «300000 тыс. кв. м.». То есть формально речь идёт о строительстве 300 миллионов квадратных метров нового жилья. Хотя фактически здесь, конечно же, будет возведено на три порядка меньше «квадратов» – то есть 300 тыс. кв. м.
Ранее по теме: На бывшей территории «Уралпластика» построят 300 миллионов (!) квадратных метров жилья
.jpg)











