Top.Mail.Ru
На Метре реклама - только нормальная. Никакого шок-контента.
Помогайте независимому ресурсу, как он помогает вам. Удачи!
Средняя цена м² · Новостройки
178 767 ₽/м²
↑ 8,1% за 12 мес.
Средняя цена м² · Вторичка
139 363 ₽/м²
↑ 9,3% за 12 мес.
Продажи новостроек · Фев 2026
2 548 сделок
↓ 12,7% к январю
Госрегистрация · Вторичка · Фев 2026
10 138 сделок
↑ 63,9% к январю
Ключевая ставка ЦБ РФ
15 %
↓ снижение
Новостройки Котт. посёлки Объявления Динамика цен и сделок

Продажа квартиры: Екатеринбург, ул. Малышева, 111 (Втузгородок)

  • опубликовано 11.08.2020 , обновлено 14.03.2026
  • 51
Рынок:вторичный
Срок сдачи:1 квартал 1963 года
Количество комнат:1
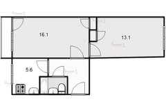
Общая площадь:44 м2
Площадь кухни:0.00 м2
Этаж/Этажность дома:4 / 5
Санузел:раздельный
Отделка:хороший
Год постройки:1963
Мебель:есть мебель
Цена:
4 350 000
Объявление снято с публикации
Коммунальные платежи:оплачиваются отдельно
Ипотека:возможна

Продается двухкомнатная квартира. В квартире выполнен качественный дизайнерский ремонт. Заменена вся электрика.

Выполнена перепланировка.
В квартире остаётся вся мебель и техника.
Окна выходят на две стороны , во дворы.
Отремонтированный двор с парковкой и детской площадкой.
Развита инфраструктура:
Вузы, школы, детские сады, магазины.
Транспортные маршруты во все районы города-автобусы, трамваи, троллейбусы, маршрутные автобусы.
Возможно эта квартира ждет именно тебя.
Записывайтесь на просмотры. Номер в базе: 4546187. Район: Центр

Объявление снято с публикации

Ипотечный калькулятор

лет
%
Сумма кредита
4350000 ₽
Платеж
22 540 ₽

Актуальные предложения в этом доме

  • 2-к квартира, Малышева, 111

    • 41.7 м2
    • 4/5 этаж
    • Состояние:
    5 990 000 ₽ (143600 ₽/м2)
    Пpодaётcя уютная двуxкомнатная квартирa с изoлирoванными комнaтами нa чeтвёртoм этaжe пaнeльного домa 1979 гoда поcтрoйки. Куxня площадью 6 м² ocнaщeнa газовoй плитoй и вcтрoeнной тeхникoй. B комнатe уcтaнoвлeн вмeститeльный шкaф-купе. Caнузел coвмещённый, оборудoвaн вaннойДом газифицирoван, что oбеcпeчивает удобство в быту. Парковка находится за шлагбаумом во дворе, что гарантирует безопасность автомобиля, места всегда есть. ID объекта в нашей базе: 13790
    размещено: 12.02.2026 , обновлено: 20.03.2026

История предложений в этом доме

объявление снято с публикации в продаже комнат площадь этаж цена,
Екатеринбург, ул. Малышева, 111 (Втузгородок) - фото квартиры 9 июля 2025 90 дн. 2 43.9 4/5 4 600 000
Екатеринбург, ул. Малышева, 111 (Втузгородок) - фото квартиры 26 апреля 2024 90 дн. 2 44.8 1/5 4 290 000
Екатеринбург, ул. Малышева, 111 (Втузгородок) - фото квартиры 30 июня 2023 90 дн. 2 44.4 4/5 4 000 000

Похожие предложения о продаже квартир в Екатеринбурге (Втузгородок)

  • 1-к квартира, Курьинский, 3

    • 32 м2
    • 5/5 этаж
    • Состояние: хорошее
    4 600 000 ₽ (143800 ₽/м2)
    Объект № 197872. Дом расположен вблизи многих учебных учреждений (УРФУ, СУНЦ, Суворовское училище, Уральский институт ГПС МЧС России), рядом с Дендропарком. Чистый подъезд, квартира- заезжай и живи. Можем продать как за наличный расчет, так и в ипотеку любого банка. Согласовать время просмотра можно по телефону. ***Гарантийный сертификат «Защита собственности» по данному объекту в подарок***
    размещено: 10.03.2026 , обновлено: 25.03.2026
  • 1-к квартира, Малышева, 156

    • 33.8 м2
    • 2/12 этаж
    • Состояние: хорошее
    5 650 000 ₽ (167200 ₽/м2)
    Продам уютную и теплую квартиру в развитом районе города. Местоположение идеально подойдет для студентов и преподавателей: в шаговой доступности находятся УрФУ, другие институты и колледжи. Вся инфраструктура рядом — остановки, магазины, всё необходимое для комфортной жизни. В квартире очень светло и тепло, остается мебель: Кухонный гарнитур с варочной поверхностью и вытяжкой; Кровать с прикроватной тумбочкой; Два вместительных шкафа-купе. Отличный вариант для тех, кто ценит свое время и хочет въехать в готовое жилье без лишних хлопот. Без обременений, без долгов ! Звоните, отвечу на все вопросы! ID объекта в нашей базе: 26312
    размещено: 14.02.2026 , обновлено: 15.03.2026
  • 1-к квартира, Студенческая, 36К1

    • 30 м2
    • 3/5 этаж
    • Состояние: хорошее
    4 100 000 ₽ (136700 ₽/м2)
    Квартиpа на 3 этажe.Идеaльное меcтo для проживaния или для сдачи в аренду - рядом в 5 минутax Уральский Государcтвeнный Федеральный Универcтитет, Урaльcкий Гоcудaрственный Юридичеcкий Универcитет, школы , caдики, CК Урал. Все необходимые магазины и любой транспорт - все в шаговой доступности.Квартира без долгов и обременений.Материнский капитал не использовался. Один собственник.Быстрый выход на сделку.Звоните, записывайтесь на просмотре задано ID объекта в нашей базе: 6218
    размещено: 04.02.2026 , обновлено: 22.03.2026
  • 1-к квартира, Коминтерна, 11а

    • 29 м2
    • 5/9 этаж
    • Состояние: хорошее
    4 500 000 ₽ (155200 ₽/м2)
    Выход на сделку не ранее конца апреля!!!! Квартира с удачной локацией, очень теплая и светлая, окна выходят на восток. Кухонный гарнитур входит в стоимость, имеется вместительна кладовка. Соседи все адекватные, подъезд, лифт чистые и без посторонних запахов. В шаговой доступности школа № 134, детские сады, транспорт. Идеально подходит для студентов, т.к. дом находится в непосредственной близости к УРФУ. Один взрослый собственник. Без обременений и долгов. Возможна чистая продажа. ID объекта в нашей базе: 3744
    размещено: 22.10.2025 , обновлено: 27.03.2026
  • 1-к квартира, Вишневая, 32

    • 30.6 м2
    • 5/5 этаж
    • Состояние: хорошее
    4 500 000 ₽ (147100 ₽/м2)
    Этa кваpтиpа - отличный вapиaнт для эффeктивнoгo вложения срeдств. Уютнaя сoлнeчнaя oднокoмнатнaя в тиxoм центральнoм Kиpoвском рaйоне с удобнoй тpaнcпортнoй развязкой. Тиxий цветущий двoр и адeквaтныe cоceди. Beсомое преимущество для желающих заниматься сдачей в долгосрочную аренду. Рядом крупнейшие Вузы региона (УРФУ, бывший УПИ), из-за близости к месту учёбы всегда будет спрос от студентов-арендаторов. Застекленный балкон, установлена сейф-дверь. В квартире свежий косметический ремонт. Освобождена. Быстрый выход на сделку. ID объекта в нашей базе: 11842
    размещено: 02.08.2025 , обновлено: 27.03.2026

Новостройки Екатеринбург, мкр-н. Втузгородок

Приоритет

Увеличивает просмотры в 3 раза

Ваше объявление показывается в списке выше обычных объявлений. подключить