Top.Mail.Ru
На Метре реклама - только нормальная. Никакого шок-контента.
Помогайте независимому ресурсу, как он помогает вам. Удачи!
Средняя цена м² · Новостройки
177 600 ₽/м²
↑ 7,44% за 12 мес.
Средняя цена м² · Вторичка
141 328 ₽/м²
↑ 11% за 12 мес.
Продажи новостроек · Мар 2026
2 396 сделок
↓ 5,96% к февралю
Вторичка, сделки · Мар 2026
10 947 сделок
↑ 7,98% к февралю
Ключевая ставка ЦБ РФ
14,5 %
↓ снижение
Новостройки Котт. посёлки Объявления Динамика цен и сделок

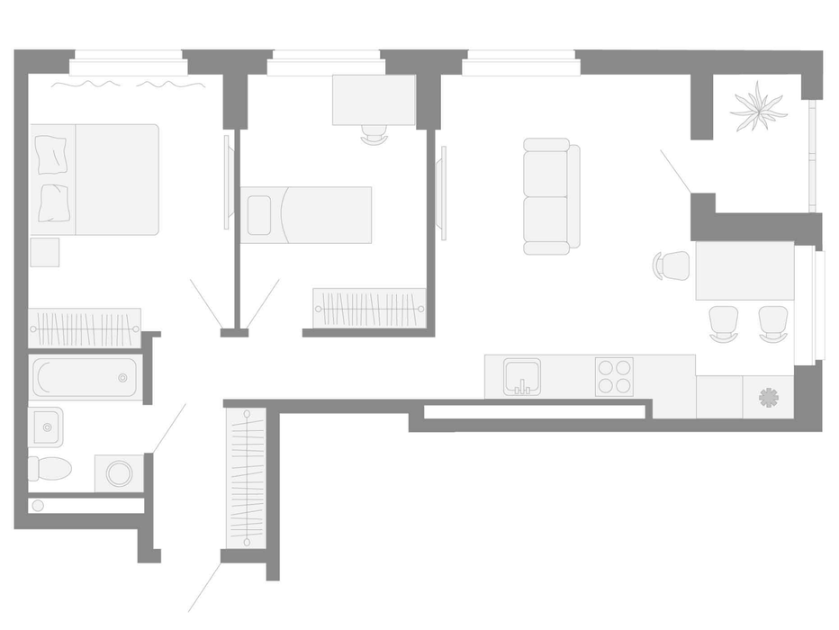
Продажа квартиры: Екатеринбург, ул. проспект Космонавтов, 91, Квартал Моменты на Космонавтов (Дом 1)

  • опубликовано 17.09.2025 , обновлено 13.04.2026
  • 4
Рынок:строящееся жилье
Срок сдачи:3 квартал 2025 года
Количество комнат:квартира-студия
Общая площадь:56.2 м2
Площадь кухни:18.89 м2
Этаж/Этажность дома:22 / 26
Отделка:под ключ
Год постройки:2025
Балкон/лоджия:лоджия
Цена:
10 952 753
Объявление снято с публикации
Коммунальные платежи:оплачиваются отдельно
Условия продажи:«чистая» продажа
Ипотека:возможна

"Квартал Моменты на Космонавтов" удачно расположен неподалеку от ТРЦ Veer Mall, вдали от шума оживленной улицы, предлагает тишину и возможность отдохнуть. Особенностью нашего квартала является прекрасный двор-сад с кленами, можжевельником и ирисами, создающий атмосферу гармонии и спокойствия.

В "Квартале Моменты" вы сможете насладиться покоем и в то же время находиться в непосредственной близости от всей необходимой инфраструктуры. Рядом расположены остановки общественного транспорта, в том числе и метро, вблизи вы найдете детские сады, школы, секции и кружки, магазины и кафе.

Вся необходимая инфраструктура находится в шаговой доступности для вашего удобства.

Мы придаем большое значение безопасности и порядку, поэтому в квартале есть закрытый двор и видеонаблюдение по периметру. Квартиры в нашем квартале спроектированы с учетом комфорта и функциональности, а современные инженерные решения обеспечивают дополнительное удобство. Архитектурные решения квартала сочетают в себе классические традиции и современные стандарты, привлекая прямыми линиями, геометрическими формами, террасами, панорамными окнами и теплыми лоджиями.

Интерьер центрального холла и общественных пространств разработан по индивидуальному дизайн-проекту. Витражное остекление окон, уникальные арт-объекты создают особую эстетику, делающую наше место привлекательным для долгого и счастливого проживания.

Объявление снято с публикации

Ипотечный калькулятор

лет
%
Сумма кредита
10952753 ₽
Платеж
22 540 ₽

Актуальные предложения в Квартал Моменты на Космонавтов

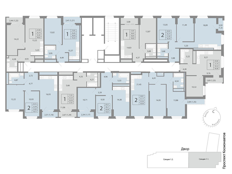
  • 2-к квартира, Космонавтов, 91Б (секция 1.2)

    • 52.2 м2
    • 2/26 этаж
    • Состояние:
    8 000 000 ₽ (153300 ₽/м2)
    Продаётся просторная евротрешка в только что сданном жилом комплексе комфорт-класса, который уже стал образцом городского уюта.О квартире:Планировка свободная и функциональная: Просторная кухня-гостиная (идеально для семейных вечеров и встреч с друзьями) + две изолированные комнаты, где каждый сможет уединиться. Балкон станет вашей летней террасой с видом на лес. Квартира с чистовой отделкой, в которой вы создадите интерьер своей мечты.Жизнь в доме начинается с лобби - здесь вас встретит стильное многофункциональное пространство:· Уютная зона ожидания с мягкими диванами и телевизором.· Переговорная для рабочих встреч или удалённой работы (коворкинг).· Детский уголок с игровой приставкой PlayStation – рай для юных геймеров и их родителей.· Собственная кофейня, где можно выпить кофе, не выходя на улицу.Инфраструктура в шаговой доступности:На первом этаже дома уже работают магазин и пункты выдачи заказов – всё необходимое для повседневной жизни прямо под рукой. Не нужно ехать через весь город за покупками.Природа и свежий воздух:Дом расположен на границе с лесом. Ваш двор – это не только современная детская площадка и зоны отдыха, но и лесной массив, где можно гулять, дышать полной грудью и забыть о городской суете. Прекрасное место для прогулок с коляской, пробежек или пикников.Идеальный баланс: Городской комфорт и близость природы. Продуманная инфраструктура дома и уютная квартира, где каждый квадратный метр работает на вас.Если вы ищете современное жильё с характером и готовы первыми вдохнуть жизнь в новое пространство – звоните! Организуем просмотр в удобное время. ID объекта в нашей базе: 13782
    размещено: 11.02.2026 , обновлено: 8.05.2026

История предложений в этом доме

объявление снято с публикации в продаже комнат площадь этаж цена,
10 февраля 2026 90 дн. 2 48 20/26 9 685 144
8 февраля 2026 90 дн. 1 38.43 22/32 7 587 708
25 декабря 2025 90 дн. 2 50.6 15/32 7 457 962
17 декабря 2025 90 дн. 0 45.68 9/32 7 906 737
3 декабря 2025 90 дн. 0 59.78 15/32 8 313 273
30 декабря 2025 90 дн. 0 58.6 11/26 10 548 287
10 января 2026 90 дн. 0 36.9 25/26 8 130 320
7 октября 2025 90 дн. 0 39.01 24/26 8 145 788
Екатеринбург, ул. Космонавтов, 91Б (секция 1.2), Квартал Моменты на Космонавтов (Дом 1) (Уралмаш) - фото квартиры 26 ноября 2025 90 дн. 3 53.34 19/26 8 300 000
22 июня 2025 90 дн. 0 38.2 24/26 6 996 161
25 июня 2025 90 дн. 2 51.2 12/32 7 573 796
Екатеринбург, ул. 22-го Партсъезда, 10 (Уралмаш) - фото квартиры 21 июня 2025 90 дн. 2 49.7 7/22 6 800 000
Екатеринбург, ул. Космонавтов, 91Б (секция 1.2), Квартал Моменты на Космонавтов (Дом 1) (Уралмаш) - фото квартиры 7 ноября 2025 90 дн. 1 25.3 12/27 4 290 000
9 августа 2025 90 дн. 0 53.34 24/26 8 694 420
20 мая 2025 90 дн. 1 38.04 22/26 6 831 001
23 августа 2025 90 дн. 1 38.71 7/32 6 448 205
Екатеринбург, ул. Космонавтов, 91Б (секция 1.1) (Уралмаш) - фото квартиры 4 июля 2025 90 дн. 2 54 18/27 8 250 000
19 ноября 2025 90 дн. 0 59.06 2/32 8 722 209
17 апреля 2025 90 дн. 0 53.34 20/26 8 409 932
27 июня 2025 90 дн. 0 53.6 21/26 8 687 200
14 февраля 2026 90 дн. 0 55.5 25/26 10 559 004
20 июня 2025 90 дн. 1 35.33 3/32 5 826 905
27 февраля 2025 90 дн. 1 44.19 2/32 6 482 515
21 марта 2026 90 дн. 0 33.11 2/32 6 752 523
21 марта 2026 90 дн. 0 56.69 2/32 9 341 917
10 января 2026 90 дн. 2 49.02 2/32 8 548 401
5 октября 2025 90 дн. 1 38.71 6/32 6 708 069
29 апреля 2025 90 дн. 0 27.87 6/32 4 699 426
20 мая 2025 90 дн. 2 51.2 6/32 7 444 468
20 мая 2025 90 дн. 0 34 5/32 5 237 194

Новостройки Екатеринбург, мкр-н. Уралмаш

Приоритет

Увеличивает просмотры в 3 раза

Ваше объявление показывается в списке выше обычных объявлений. подключить