Коттедж - г. Полевской, ул. Блюхера, 8
городской округ Полевской
(Полевское направление)
Центр Екатеринбурга → 56 км
Центр Екатеринбурга → 56 км
В 45 км от Екатеринбурга в городе Полевской продается новый, уютный, тёплый дом 2021 года постройки и площадью 400 кв.м. Участок 20 соток с домом расположены в тихом районе, в 10 мин от центра города, для семейного отдыха на свежем воздухе, вдалеке от шума и суеты.
Очень удачное расположение: с участка открывается живописный вид на пруд (до него всего 100 м неспешным шагом), за которым красуется Азов-Гора, на берегу имеется освещенный ключик с родниковой водой. С тыльной стороны прекрасный вид на Храм Троицы Живоначальной, откуда слышен звук колоколов, рядом Бажовские места. Очень широкая улица, большое расстояние между домами. Участок угловой с проулком, соседи только с тыльной стороны и слева. Есть возможность разделения участка по 10 соток плюс проезд к дому.
Для Вас всегда доступны свежий чистый воздух. Зимой: лыжи, катания на коньках по замёрзшему озеру, с гор на санях. Летом: велопрогулки или на квадроциклах, рыбалка, сапы, катание на лодке.
Асфальтированная дорога до района. До дома грунтовая дорога с освещением. Дороги регулярно чистятся в зимний период.
Характеристики дома:
-Капитальный, ленточный фундамент на сваях с шагом 1.5 - 2 метра.
-Материал стен: песко-цементный блок 1800x380x200, ООО «Юнибрик», завод г. Екатеринбург
-Перекрытия 1 и 2 этажей – плиты перекрытия.
-Утепление стен– базальтовая каменная вата пл. 135 кг/ куб. м «Евротизол», толщиной 150 мм., Система мокрый фасад
-Утепление мансарды и чердачного перекрытия - базальтовая каменная вата пл. 50 кг/ куб. м Ecover, толщиной 200мм.
-Крыша – металлочерепица «Металпрофиль» Norman 0,52 мм.
-Мансардные окна (5 шт.) и чердачная лестница FAKRO.
-Окна: пластиковые тройной стеклопакет с теплоудерживающим покрытием, 5-ти камерные.
-Межэтажная полноразмерная лестница.
-Отделка внутренних стен - штукатурка(гипс), шпаклёвка "под покраску".
-Высокий вентилируемый чердак, лестница
-Газовый котёл prohterm 25 кВт.
-Теплые водяные полы на первом этаже и радиаторы.
-Трубы отопления и водоснабжения – металлопластиковые Comap.
Все коммуникации разведены по дому.
Электричество: 380 В, 15 кВт, проводка медь «ВВГнг 3х6; 3х2,5; 3х1.5».
Водоснабжение: скважина 58м, система постоянного давления Ermangizer.
Газ: подключен на макс потребление 9 куб. м/ч.
Канализация: автономная система биоочистки Эко-бос.
Описание дома:
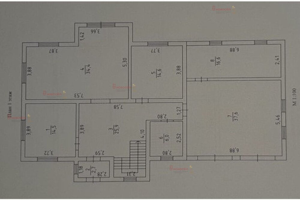
Общая площадь 400 кв.м.
Жилая - 260 кв.м.
Дизайн интерьера хорватский и подразумевает эргономичное размещение помещений:
1 этаж: просторная современная гостиная 120 м2 с зоной отдыха и кухней 80 м2., рабочий кабинет –18 кв.м., сан узел и прачечная – 9 кв.м., коридор с прихожей 26 кв. м, выход в теплый гараж на 2 машины из дома, гараж 38,5 кв. м. Котельная с отдельным входом. Имеется удобный выход с кухни на террасу 13 кв. м.
Кухня-гостиная полностью оборудованная посудой и столовыми приборами до 20 персон.
Из техники: Посудомоечная машина, Варочная поверхность, Духовой шкаф, Холодильник, Морозильник, СВЧ печь, Гриль, Соковыжималка и т.д..
Питьевая артезианская вода из скважины.
В центре кухни имеется большой стол – 10 человек.
Комнаты 2го этажа правильной формы изолированные, с удобным взаимным расположением: ванная и финская сауна –13 кв.м., 1ая спальная комната/или кинозал – 30 кв.м., 2ая спальная комната 65 кв. м с панорамными окнами, гардероб 8 кв. м, 3ая спальная комната 20 кв. м с мансардными окнами, теннисный зал с мансардными окнами пл. 27 кв. м, коридор – 27 кв. м.
Продается с мебелью и встроенной бытовой техникой. Все готово для проживания.
Финская липовая сауна.
Оптический интернет.
Камеры видеонаблюдения. Объект охраняется.
Дом очень тёплый и светлый, даже зимой периодически отключали отопление - приятная экономия средств, "коммуналка " 4000 руб. в месяц.
При строительстве дома были использованы самые современные технологии, лучшее соотношение по цене, месторасположению, площади и качеству построенного дома.
Описание территории:
1. Высокая веранда с красивым видом и вечерней подсветкой. Мебель: стол и стулья, с комфортом размещается до 8 человек
2. Есть мангальная зона, отдельно казан, решетки, шампура.
3. Территория 20 соток с деревьями и кустарниками. Детям есть где погулять.
4. Парковка на 6 машин.
Дом строился для большой и дружной семьи, спешите приобрести качественный и уютный дом, где будут проходить ваши прекрасные вечера!
Построен для себя, строили капитально.
Условия продажи: чистая продажа, торг или обмен на недвижимость в г. Екатеринбург. Продажу по ипотеке, материнский капитал рассмотрим.
Также этот дом станет привлекательным для покупки инвесторам. Дом подойдет под арендный бизнес, под сдачу помесячно в летний период, или посуточно. Стоимость сдачи посуточно – 30-35 т.р. в сутки, 120 000 рублей в месяц.
Купить, продать коттедж с Агентством Дом Недвижимости быстро, легко и безопасно.
размещено: 14.03.2026
, обновлено: 13.05.2026








