В первом доме «Совушек» можно купить квартиру с палисадником, с террасой и даже балконотеррасой
Холдинг «Партнёр» предложил несколько необычных планировок покупателям квартир в первом многоквартирном доме ГП-1, который возводится в природном жилом комплексе «Совушки» возле Горного Щита. Наряду с классическими одно- двух- трёхкомнатными, в новостройке имеются квартиры с собственными площадками для прогулок.
Квартиры «с дополнительной территорией» предлагаются двух типов. На первых этажах есть «ситихаусы» – квартиры с открытой террасой (палисадником) на уровне земли площадью от 14 до 30,8 кв. м. Стоимость таких квартир – от 4,69 до 10,38 млн руб., площадь (с учётом палисадника) – от 60 до 152 кв. м.
.jpg)
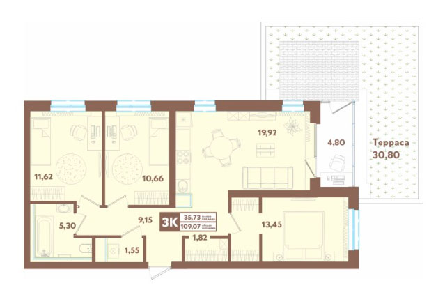
На последнем – четвёртом этаже дома ГП-1 сегодня также можно купить квартиру с террасой – площадкой под открытым небом. Площадь террас колеблется от 7,5 до 33,5 кв. м. Есть вариант совмещения террасы и балкона/лоджии, когда выйти на открытую площадку можно через застеклённый балкон. В этом случае площадь балкона с террасой может достигать 40 кв. м. Без малого полсотки.
Стоимость таких квартир с террасами – от 6,29 до 9,48 млн руб., площадь – от 77 до 128 кв. м.
.jpg)
Как ранее сообщалось, первый многоквартирный дом в «Совушках» будет четырёхэтажным. Его ввод в эксплуатацию планируется в четвёртом квартале 2023 года. В новостройке предусмотрены квартиры как классической, так и евро- планировки. Есть с гардеробными и мастер-спальнями. Квартиры будут передаваться покупателям с чистовой отделкой, обустроенными кухней и санузлом.
Также в «Совушках» сегодня можно приобрести квартиру в таунхаусе по цене от 9,16 млн руб., либо частный дом по цене от 22,5 млн руб.

Жилой комплекс «Совушки. Город и лес» находится в Чкаловском районе Екатеринбурга, в юго-восточной части города в окрестностях Полевского тракта. Сам ЖК – это комплексная застройка с собственной инфраструктурой: зонами отдыха, детскими площадками и парком. Здесь имеется клуб жильцов, в котором проходят встречи соседей, проводятся обще собрания, действуют школа танцев, развивающие секции для детей.
На территории «Совушек» есть магазины, спроектированы кафе, детские сады и школа. Здесь работают все городские службы, дома подключены к инженерным коммуникациям – электричеству, водопроводу, газу, канализации. Кроме того, в микрорайоне имеется лесной массив. Он занимает территорию 15 гектаров. Застройщик благоустраивает этот природный объект и превращает его в большую парковую зону.











